Account: R1574586
April 1, 2026
| Account | Parcel | Account Type | Tax Year | Buildings | Actual Value | Local Govt Assessed Value | School Assessed Value |
|---|---|---|---|---|---|---|---|
| R1574586 | 080721410004 | Residential | 2026 | 1 | 419,339 | 26,210 | 29,570 |
| Legal |
|---|
| WIN 2WV9-15 L15 BLK9 WINDSOR VILLAGE 2ND FILING & REPLAT OF OUTLOT A WINDSOR VILLAGE 1ST FILING |
| Subdivision | Block | Lot | Land Economic Area |
|---|---|---|---|
| WINDSOR VILLAGE 2ND FG RPLT OTLT A | 9 | 15 | CORNERSTONE |
| Property Address | Property City | Section | Township | Range |
|---|---|---|---|---|
| 957 NANTUCKET ST | WINDSOR | 21 | 06 | 67 |
| Account | Parcel | Account Type | Tax Year | Buildings | Actual Value | Local Govt Assessed Value | School Assessed Value |
|---|---|---|---|---|---|---|---|
| R1574586 | 080721410004 | Residential | 2026 | 1 | 419,339 | 26,210 | 29,570 |
| Account | Owner Name | Address |
|---|---|---|
| R1574586 | MCQUEEN COSTIN J | 957 NANTUCKET ST WINDSOR, CO 805505533 |
| R1574586 | STUNKARD KATELYN |
| Account | Parcel | Account Type | Tax Year | Buildings | Actual Value | Local Govt Assessed Value | School Assessed Value |
|---|---|---|---|---|---|---|---|
| R1574586 | 080721410004 | Residential | 2026 | 1 | 419,339 | 26,210 | 29,570 |
| Reception | Rec Date | Type | Grantor | Grantee | Doc Fee | Sale Date | Sale Price |
|---|---|---|---|---|---|---|---|
| 02057528 | 06-17-1986 | WDN | 0.00 | 01-01-1900 | 0 | ||
| 1738424 | NA | SUB | SUBDIVISION | WINDSOR VILLAGE 2ND FG & RPLT OTLT A WINDSOR VILLAGE 1ST FG | 0.00 | NA | 0 |
| 2123292 | 12-03-1987 | WD | UHRICH ALVIN L & GERALDINE L | ERBES JON C & JULIE A | 6.35 | 11-30-1987 | 63,500 |
| 2256539 | 07-17-1991 | WD | ERBES JON C & JULIE A | NYKAMP RICHARD E & JANIE K | 6.30 | 07-12-1991 | 63,000 |
| 2356131 | 10-21-1993 | WD | NYKAMP RICHARD E & JANIE K | GREEN SCOTT S & SHIRLEY M | 8.40 | 10-18-1993 | 84,000 |
| 2704536 | 07-06-1999 | WD | GREEN SCOTT S & SHIRLEY M | BRAMER JAMES D & MARIA L | 12.90 | 06-30-1999 | 129,000 |
| 3168019 | 04-06-2004 | WD | BRAMER JAMES D & MARIA L | BROWN SARA H | 16.00 | 03-31-2004 | 160,000 |
| 3502131 | 09-06-2007 | WD | BROWN SARA H | MOHN GERALD L & | 16.80 | 06-29-2007 | 168,000 |
| 3751965 | 02-23-2011 | PTD | SARE KRISTINA J | COLORADO HOUSING FINANCE AUTHORITY | 0.00 | 02-22-2011 | 0 |
| 3783406 | 08-01-2011 | SWD | COLORADO HOUSING FINANCE AUTHORITY | ROBERTS STEVE | 13.75 | 07-26-2011 | 137,500 |
| 4113823 | 06-08-2015 | WD | ROBERTS STEVE; ROBERTS JENNA | HOSKINS BRETT T; HOSKINS ANGELA M | 23.20 | 06-05-2015 | 232,000 |
| 4631351 | 09-18-2020 | SWD | HOSKINS BRETT T; HOSKINS ANGELA M | MCQUEEN COSTIN J; STUNKARD KATELYN | 32.50 | 09-17-2020 | 325,000 |
| X0003757 | 06-17-1986 | WD | LUNDBERG VIOLA M; LUNDBERG ALAN D | UHRICH ALVIN L & GERALDINE L | 5.70 | 06-17-1986 | 57,000 |
*If the hyperlink for the reception number does not work, try a manual search in the Clerk and Recorder records. Use the Grantor or Grantee in your search.
| Account | Parcel | Account Type | Tax Year | Buildings | Actual Value | Local Govt Assessed Value | School Assessed Value |
|---|---|---|---|---|---|---|---|
| R1574586 | 080721410004 | Residential | 2026 | 1 | 419,339 | 26,210 | 29,570 |
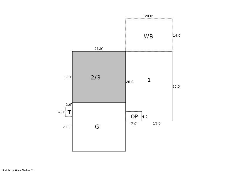
Building 1
| AccountNo | Building ID | Occupancy |
|---|---|---|
| R1574586 | 1 | Single Family Residential |
| ID | Type | NBHD | Occupancy | % Complete | Bedrooms | Baths |
|---|---|---|---|---|---|---|
| 1 | Residential | 2W1005 | Single Family Residential | 100 | 3 | 2.00 |
| ID | Exterior | Roof Cover | Interior | HVAC | Perimeter | Units | Unit Type | Make |
|---|---|---|---|---|---|---|---|---|
| 1 | Frame Hardboard | Composition Shingle | Drywall | Central Air to Air | 0 | 0 | NA | NA |
| ID | Square Ft | Condo SF | Total Basement SF | Finished Basement SF | Garage SF | Carport SF | Balcony SF | Porch SF |
|---|---|---|---|---|---|---|---|---|
| 1 | 1,584 | 0 | 0 | 0 | 483 | 0 | 280 | 12 |
| ID | Built As | Square Ft | Year Built | Stories | Length | Width |
|---|---|---|---|---|---|---|
| 1.00 | Split Level | 1,584 | 1979 | 1 | 0 | 0 |
| ID | Detail Type | Description | Units |
|---|---|---|---|
| 1 | Add On | Fireplace Wood | 1.00 |
| 1 | Balcony | Wood Wood Fin | 280.00 |
| 1 | Fixture | Full Bath | 2.00 |
| 1 | Garage | Attached | 483.00 |
| 1 | Porch | Open Slab | 12.00 |
| 1 | Porch | Slab Roof Ceil | 28.00 |
| Account | Parcel | Account Type | Tax Year | Buildings | Actual Value | Local Govt Assessed Value | School Assessed Value |
|---|---|---|---|---|---|---|---|
| R1574586 | 080721410004 | Residential | 2026 | 1 | 419,339 | 26,210 | 29,570 |
| Type | Code | Description | Actual Value | Local Govt Assessed Value | School Assessed Value | Acres | Land SqFt |
|---|---|---|---|---|---|---|---|
| Improvement | 1212 | SINGLE FAMILY RESIDENTIAL IMPROVEMENTS | 329,339 | 20,580 | 23,220 | 0.000 | 0 |
| Land | 1112 | SINGLE FAMILY RESIDENTIAL-LAND | 90,000 | 5,630 | 6,350 | 0.177 | 7,707 |
| Totals | - | - | 419,339 | 26,210 | 29,570 | 0.177 | 7,707 |
Comparable sales for your Residential or Commercial property may be found using our SALES SEARCH TOOL
Values are updated annually on May 1st for Real Property and June 15th for Personal Property and Oil and Gas.
| Account | Parcel | Account Type | Tax Year | Buildings | Actual Value | Local Govt Assessed Value | School Assessed Value |
|---|---|---|---|---|---|---|---|
| R1574586 | 080721410004 | Residential | 2026 | 1 | 419,339 | 26,210 | 29,570 |
| Tax Area | District ID | District Name | Local Govt Mill Levy |
School Mill Levy |
Estimated Taxes |
|---|---|---|---|---|---|
| 0420 | 0700 | AIMS JUNIOR COLLEGE | 6.313 | 0.000 | $165.46 |
| 0420 | 1051 | CLEARVIEW LIBRARY | 3.546 | 0.000 | $92.94 |
| 0420 | 0301 | NORTHERN COLORADO WATER (NCW) | 1.000 | 0.000 | $26.21 |
| 0420 | 0204 | SCHOOL DIST RE4-WINDSOR | 0.000 | 46.646 | $1,379.32 |
| 0420 | 0100 | WELD COUNTY | 15.956 | 0.000 | $418.21 |
| 0420 | 0428 | WINDSOR TOWN | 12.030 | 0.000 | $315.31 |
| 0420 | 0521 | WINDSOR-SEVERANCE FIRE | 8.535 | 0.000 | $223.70 |
| Total | - | - | 47.38 | 46.646 | $2,621.15 |
The estimate of tax is based on the prior year mill levy and the 2025 projected assessment rates. Mill levies and tax estimates will be updated yearly on December 22nd for the current year. Additional information can be found at https://assessor.weld.gov



