Account: R1574786

April 1, 2026

Account Parcel Account Type Tax Year Buildings Actual Value Local Govt Assessed Value School Assessed Value
R1574786 080721410013 Residential 2026 1 415,912 26,000 29,330

Legal
WIN 2WV9-6 L6 BLK9 WINDSOR VILLAGE 2ND FILING & REPLAT OF OUTLOT A WINDSOR VILLAGE 1ST FILING

Subdivision Block Lot Land Economic Area
WINDSOR VILLAGE 2ND FG RPLT OTLT A 9 6 CORNERSTONE

Property Address Property City Section Township Range
60 ROCHESTER DR WINDSOR 21 06 67




Account Parcel Account Type Tax Year Buildings Actual Value Local Govt Assessed Value School Assessed Value
R1574786 080721410013 Residential 2026 1 415,912 26,000 29,330

Account Owner Name Address
R1574786 HERNANDEZ ISRAEL L 60 ROCHESTER DR WINDSOR, CO 805505520
R1574786 HERNANDEZ COLLEEN M


Account Parcel Account Type Tax Year Buildings Actual Value Local Govt Assessed Value School Assessed Value
R1574786 080721410013 Residential 2026 1 415,912 26,000 29,330

Reception Rec Date Type Grantor Grantee Doc Fee Sale Date Sale Price
01910681 12-06-1982 WDN 0.00 01-01-1900 0
02109603 08-06-1987 PTD 0.00 08-05-1987 0
02116042 09-30-1987 SWDN 0.00 09-21-1987 0
02129475 01-29-1988 DN 0.00 01-27-1988 0
02171963 02-28-1989 QCN 0.00 01-13-1989 0
1738424 NA SUB SUBDIVISION WINDSOR VILLAGE 2ND FG & RPLT OTLT A WINDSOR VILLAGE 1ST FG 0.00 NA 0
2673964 02-18-1999 QCN ROBINSON LANA S COZAD LANA S 0.00 02-09-1999 0
3244279 12-15-2004 WD COZAD LANA S VAN NOY DANIEL L 16.20 12-13-2004 162,000
3480268 06-01-2007 PTD VAN NOY DANIEL L WELLS FARGO BANK 0.00 06-01-2007 0
3504803 09-18-2007 SWD WELLS FARGO BANK JONES DONALD M 13.40 08-16-2007 134,000
4229607 08-19-2016 WD JONES DONALD M HERNANDEZ ISRAEL L; HERNANDEZ COLLEEN M 27.60 08-19-2016 276,000



Account Parcel Account Type Tax Year Buildings Actual Value Local Govt Assessed Value School Assessed Value
R1574786 080721410013 Residential 2026 1 415,912 26,000 29,330

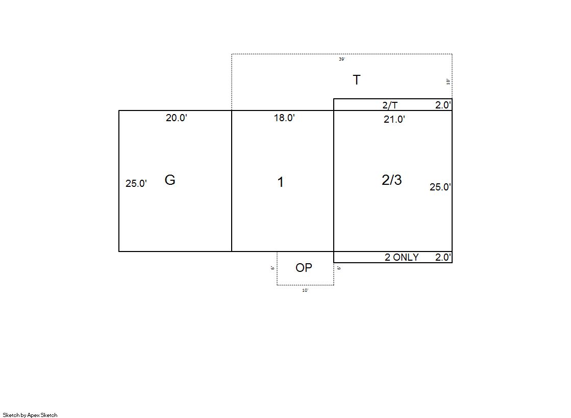
Building 1

AccountNo Building ID Occupancy
R1574786 1 Single Family Residential


ID Type NBHD Occupancy % Complete Bedrooms Baths
1 Residential 2W1005 Single Family Residential 100 4 2.00


ID Exterior Roof Cover Interior HVAC Perimeter Units Unit Type Make
1 Frame Hardboard Wood Shingle Drywall Forced Air 278 0 NA NA


ID Square Ft Condo SF Total Basement SF Finished Basement SF Garage SF Carport SF Balcony SF Porch SF
1 1,584 0 0 0 500 0 0 390


Built As Details for Building 1
ID Built As Square Ft Year Built Stories Length Width
1.00 Split Level 1,584 1978 1 0 0


Additional Details for Building 1
ID Detail Type Description Units
1 Add On Fireplace Wood 1.00
1 Fixture Full Bath 2.00
1 Garage Attached 500.00
1 Porch Open Slab 390.00
1 Porch Slab Roof Ceil 60.00





Account Parcel Account Type Tax Year Buildings Actual Value Local Govt Assessed Value School Assessed Value
R1574786 080721410013 Residential 2026 1 415,912 26,000 29,330

Type Code Description Actual Value Local Govt Assessed Value School Assessed Value Acres Land SqFt
Improvement 1212 SINGLE FAMILY RESIDENTIAL IMPROVEMENTS 325,912 20,370 22,980 0.000 0
Land 1112 SINGLE FAMILY RESIDENTIAL-LAND 90,000 5,630 6,350 0.245 10,668
Totals - - 415,912 26,000 29,330 0.245 10,668


Account Parcel Account Type Tax Year Buildings Actual Value Local Govt Assessed Value School Assessed Value
R1574786 080721410013 Residential 2026 1 415,912 26,000 29,330

Tax Area District ID District Name Local Govt
Mill Levy
School
Mill Levy
Estimated
Taxes
0420 0700 AIMS JUNIOR COLLEGE 6.313 0.000 $164.14
0420 1051 CLEARVIEW LIBRARY 3.546 0.000 $92.20
0420 0301 NORTHERN COLORADO WATER (NCW) 1.000 0.000 $26.00
0420 0204 SCHOOL DIST RE4-WINDSOR 0.000 46.646 $1,368.13
0420 0100 WELD COUNTY 15.956 0.000 $414.86
0420 0428 WINDSOR TOWN 12.030 0.000 $312.78
0420 0521 WINDSOR-SEVERANCE FIRE 8.535 0.000 $221.91
Total - - 47.38 46.646 $2,600.01


The estimate of tax is based on the prior year mill levy and the 2025 projected assessment rates. Mill levies and tax estimates will be updated yearly on December 22nd for the current year. Additional information can be found at https://assessor.weld.gov










Select Reports to Print: