Account: R1580786

April 5, 2026

Account Parcel Account Type Tax Year Buildings Actual Value Local Govt Assessed Value School Assessed Value
R1580786 080721415010 Residential 2026 1 452,097 28,260 31,880

Legal
WIN 2WVR10-10 L10 BLK10 REPLAT OF PHASE TWO & THREE WINDSOR VILLAGE 2ND FG

Subdivision Block Lot Land Economic Area
WINDSOR VILLAGE 2ND FG RPLT PHASE 2 & 3 10 10 CORNERSTONE

Property Address Property City Section Township Range
9 ORCHID CT WINDSOR 21 06 67




Account Parcel Account Type Tax Year Buildings Actual Value Local Govt Assessed Value School Assessed Value
R1580786 080721415010 Residential 2026 1 452,097 28,260 31,880

Account Owner Name Address
R1580786 SHANK CHARLES F 9 ORCHID CT WINDSOR, CO 805505515
R1580786 SHANK ASHLEY WINBY


Account Parcel Account Type Tax Year Buildings Actual Value Local Govt Assessed Value School Assessed Value
R1580786 080721415010 Residential 2026 1 452,097 28,260 31,880

Reception Rec Date Type Grantor Grantee Doc Fee Sale Date Sale Price
01828266 06-24-1980 WDN 0.00 06-24-1980 0
02143757 06-06-1988 WDN 0.00 06-03-1988 0
1771486 NA SUB SUBDIVISION WINDSOR VILLAGE 2ND FG RPLT PHASE 2 & 3 0.00 NA 0
2166699 12-30-1988 WD MINER RICHARD R & KATHLEEN A KIEL RAYMOND J & SHELLEY A 6.00 12-30-1988 60,000
2705506 07-09-1999 QCN KIEL RAYMOND J & SHELLEY A KIEL SHELLEY A 0.00 06-30-1999 0
2843175 04-25-2001 QCN KIEL SHELLEY A KIEL SHELLEY A & SIMMONS DAVID 0.00 04-18-2001 0
3020418 01-03-2003 WD KIEL SHELLEY A & SIMMONS DAVID RESIDENTIAL MORTGAGE ACQUISITION CORP 15.90 12-26-2002 159,000
3037279 02-28-2003 WD RESIDENTIAL MORTGAGE ACQUISITION CORP OCCHIATO JENNIFER M 15.90 02-13-2003 159,000
3127070 11-17-2003 QCN OCCHIATO JENNIFER M LINDBERT PROPERTIES 03 LLC 0.00 09-12-2003 0
3214716 09-01-2004 QCN LINDBERT PROPERTIES 03 LLC LINDBERG DENNIS & 0.00 07-29-2004 0
3283895 05-06-2005 QCN LINDBERG DENNIS & LINDBERG PROPERTIES 03 LLC 0.00 08-20-2004 0
3396099 06-14-2006 WD LINDBERG PROPERTIES 03 LLC WINKLEPLECK GARY EDWARD & 16.00 06-05-2006 160,000
4048537 09-25-2014 QCN WINKLEPLECK DARLIS L; WINKLEPLECK GARY EDWARD WINKLEPLECK SHAWN M 0.00 09-24-2014 0
4102022 04-27-2015 WD WINKLEPLECK GARY EDWARD DOWNTOWN FIREHOUSE LLC 16.70 03-27-2015 167,000
4152269 10-22-2015 WD THE DOWNTOWN FIREHOUSE LLC DOCKTER JOSHUA P; DOCKTER MEAGAN M 25.99 10-16-2015 259,900
4519591 09-03-2019 WD DOCKTER JOSHUA P; DOCKTER MEAGAN M DOWLAN JENNIFER MARIE; DOWLAN MICHAEL LEE JR 33.70 08-30-2019 337,000
4650216 11-12-2020 SWD DOWLAN JENNIFER MARIE; DOWLAN MICHAEL LEE JR DAVISON MICTHELL J 36.25 10-23-2020 362,500
4899794 05-23-2023 SWD DAVISON MITCHELL J SHANK CHARLES F; SHANK ASHLEY WINBY 45.20 05-16-2023 452,000



Account Parcel Account Type Tax Year Buildings Actual Value Local Govt Assessed Value School Assessed Value
R1580786 080721415010 Residential 2026 1 452,097 28,260 31,880

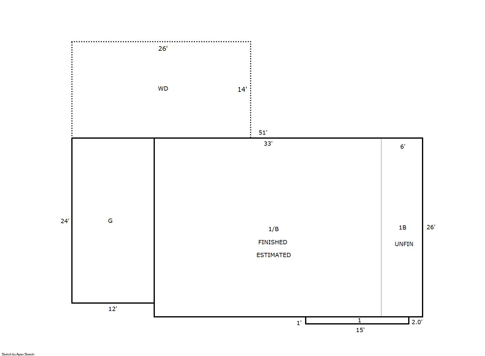
Building 1

AccountNo Building ID Occupancy
R1580786 1 Single Family Residential


ID Type NBHD Occupancy % Complete Bedrooms Baths
1 Residential 2W1005 Single Family Residential 100 4 2.00


ID Exterior Roof Cover Interior HVAC Perimeter Units Unit Type Make
1 Frame Hardboard Composition Shingle Drywall Central Air to Air 162 0 NA NA


ID Square Ft Condo SF Total Basement SF Finished Basement SF Garage SF Carport SF Balcony SF Porch SF
1 1,029 0 1,014 858 288 0 0 364


Built As Details for Building 1
ID Built As Square Ft Year Built Stories Length Width
1.00 Ranch 1 Story 1,029 1988 1 0 0


Additional Details for Building 1
ID Detail Type Description Units
1 Add On Fireplace Electric 1.00
1 Basement Finished 858.00
1 Basement Total Basement SF 1014.00
1 Fixture Full Bath 2.00
1 Garage Attached 288.00
1 Porch Wood Deck 364.00





Account Parcel Account Type Tax Year Buildings Actual Value Local Govt Assessed Value School Assessed Value
R1580786 080721415010 Residential 2026 1 452,097 28,260 31,880

Type Code Description Actual Value Local Govt Assessed Value School Assessed Value Acres Land SqFt
Improvement 1212 SINGLE FAMILY RESIDENTIAL IMPROVEMENTS 362,097 22,630 25,530 0.000 0
Land 1112 SINGLE FAMILY RESIDENTIAL-LAND 90,000 5,630 6,350 0.180 7,823
Totals - - 452,097 28,260 31,880 0.180 7,823


Account Parcel Account Type Tax Year Buildings Actual Value Local Govt Assessed Value School Assessed Value
R1580786 080721415010 Residential 2026 1 452,097 28,260 31,880

Tax Area District ID District Name Local Govt
Mill Levy
School
Mill Levy
Estimated
Taxes
0420 0700 AIMS JUNIOR COLLEGE 6.313 0.000 $178.41
0420 1051 CLEARVIEW LIBRARY 3.546 0.000 $100.21
0420 0301 NORTHERN COLORADO WATER (NCW) 1.000 0.000 $28.26
0420 0204 SCHOOL DIST RE4-WINDSOR 0.000 46.646 $1,487.07
0420 0100 WELD COUNTY 15.956 0.000 $450.92
0420 0428 WINDSOR TOWN 12.030 0.000 $339.97
0420 0521 WINDSOR-SEVERANCE FIRE 8.535 0.000 $241.20
Total - - 47.38 46.646 $2,826.03


The estimate of tax is based on the prior year mill levy and the 2025 projected assessment rates. Mill levies and tax estimates will be updated yearly on December 22nd for the current year. Additional information can be found at https://assessor.weld.gov










Select Reports to Print: