Account: R1627402

April 2, 2026

Account Parcel Account Type Tax Year Buildings Actual Value Local Govt Assessed Value School Assessed Value
R1627402 095921323006 Residential 2026 1 445,248 27,830 31,390

Legal
GR STM L6 BLK23 ST MICHAELS

Subdivision Block Lot Land Economic Area
ST MICHAELS SUB 23 6 ST MICHAELS

Property Address Property City Section Township Range
3224 W 66TH AVENUE CT GREELEY 21 05 66




Account Parcel Account Type Tax Year Buildings Actual Value Local Govt Assessed Value School Assessed Value
R1627402 095921323006 Residential 2026 1 445,248 27,830 31,390

Account Owner Name Address
R1627402 AMAR VATTAKANDY AND REENA VANIYAM KUNI REVOCABLE TRUST 5379 RETREAT CIR LONGMONT, CO 805037627


Account Parcel Account Type Tax Year Buildings Actual Value Local Govt Assessed Value School Assessed Value
R1627402 095921323006 Residential 2026 1 445,248 27,830 31,390

Reception Rec Date Type Grantor Grantee Doc Fee Sale Date Sale Price
2959147 NA SUB SUBDIVISION ST MICHAELS 0.00 NA 0
3004319 11-12-2002 QCN ASHCROFT DRAW LLC MEYER FARM DEVELOPMENT INC 0.00 11-12-2002 0
3007030 11-20-2002 WD MEYER FARM DEVELOPMENT INC GENERATION BUILDERS OF COLORADO LLC 14.70 11-15-2002 147,000
3135838 12-16-2003 WD GENERATION BUILDERS OF COLORADO LLC AMAYA DINO D & 21.05 12-12-2003 210,500
3771445 06-01-2011 PTD AMAYA DINO D USA HUD 0.00 05-31-2011 0
3796698 10-05-2011 SWD SECRETARY OF HOUSING & URBAN DEV SECCOMBE PAMELA MOSSBERG 0.00 10-04-2011 165,000
4044957 09-10-2014 PRD SECCOMBE PAMELA MOSSBERY SHERROD-MESSBERG JANET 22.80 09-05-2014 228,000
4394864 04-30-2018 WD SHERROD-MESSBERG JANET SCHMIDT KATRINA 32.50 04-30-2018 325,000
4745402 08-12-2021 WD SCHMIDT KATRINA VATTAKANDY AMAR SALAJ; KUNI REENA V 42.00 08-05-2021 420,000
4970941 07-15-2024 SWDN VATTAKANDY AMAR SALAJ; KUNI REENA V AMAR VATTAKANDY AND REENA VANIYAM KUNI REVOCABLE TRUST 0.00 07-12-2024 0



Account Parcel Account Type Tax Year Buildings Actual Value Local Govt Assessed Value School Assessed Value
R1627402 095921323006 Residential 2026 1 445,248 27,830 31,390

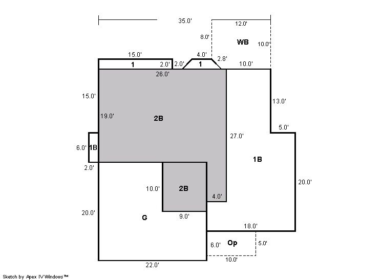
Building 1

AccountNo Building ID Occupancy
R1627402 1 Single Family Residential


ID Type NBHD Occupancy % Complete Bedrooms Baths
1 Residential 2G0060 Single Family Residential 100 3 3.00


ID Exterior Roof Cover Interior HVAC Perimeter Units Unit Type Make
1 Frame Siding Composition Shingle Drywall Central Air to Air 0 0 NA NA


ID Square Ft Condo SF Total Basement SF Finished Basement SF Garage SF Carport SF Balcony SF Porch SF
1 1,617 0 947 0 440 0 118 50


Built As Details for Building 1
ID Built As Square Ft Year Built Stories Length Width
1.00 2 Story 1,617 2003 1 0 0


Additional Details for Building 1
ID Detail Type Description Units
1 Add On Fireplace Gas 1.00
1 Balcony Wood Wood Fin 118.00
1 Basement Full Daylight 1.00
1 Basement Total Basement SF 947.00
1 Fixture Full Bath 2.00
1 Fixture Half Bath 1.00
1 Garage Attached 440.00
1 Porch Slab Roof Ceil 50.00
1 Rough In Rough In 1.00





Account Parcel Account Type Tax Year Buildings Actual Value Local Govt Assessed Value School Assessed Value
R1627402 095921323006 Residential 2026 1 445,248 27,830 31,390

Type Code Description Actual Value Local Govt Assessed Value School Assessed Value Acres Land SqFt
Improvement 1212 SINGLE FAMILY RESIDENTIAL IMPROVEMENTS 330,248 20,640 23,280 0.000 0
Land 1112 SINGLE FAMILY RESIDENTIAL-LAND 115,000 7,190 8,110 0.149 6,479
Totals - - 445,248 27,830 31,390 0.149 6,479


Account Parcel Account Type Tax Year Buildings Actual Value Local Govt Assessed Value School Assessed Value
R1627402 095921323006 Residential 2026 1 445,248 27,830 31,390

Tax Area District ID District Name Local Govt
Mill Levy
School
Mill Levy
Estimated
Taxes
0683 0700 AIMS JUNIOR COLLEGE 6.313 0.000 $175.69
0683 0411 GREELEY CITY 11.274 0.000 $313.76
0683 1050 HIGH PLAINS LIBRARY 3.044 0.000 $84.71
0683 0301 NORTHERN COLORADO WATER (NCW) 1.000 0.000 $27.83
0683 0206 SCHOOL DIST 6-GREELEY 0.000 47.615 $1,494.63
0683 0100 WELD COUNTY 15.956 0.000 $444.06
0683 1200 WEST GREELEY CONSERVATION 0.414 0.000 $11.52
Total - - 38.001 47.615 $2,552.20


The estimate of tax is based on the prior year mill levy and the 2025 projected assessment rates. Mill levies and tax estimates will be updated yearly on December 22nd for the current year. Additional information can be found at https://assessor.weld.gov










Select Reports to Print: