Account: R1635086

April 5, 2026

Account Parcel Account Type Tax Year Buildings Actual Value Local Govt Assessed Value School Assessed Value
R1635086 095731000001 Agricultural 2026 6 1,147,821 91,250 99,680

Legal
22659 N2NW4 31 5 67 EXC UPRR RES (3R)

Subdivision Block Lot Land Economic Area
JOHNSTOWN RURAL

Property Address Property City Section Township Range
6022 COUNTY ROAD 52 WELD 31 05 67




Account Parcel Account Type Tax Year Buildings Actual Value Local Govt Assessed Value School Assessed Value
R1635086 095731000001 Agricultural 2026 6 1,147,821 91,250 99,680

Account Owner Name Address
R1635086 BETZ STEVEN M 6274 COUNTY ROAD 52 JOHNSTOWN, CO 805348210
R1635086 BETZ PATRICIA L


Account Parcel Account Type Tax Year Buildings Actual Value Local Govt Assessed Value School Assessed Value
R1635086 095731000001 Agricultural 2026 6 1,147,821 91,250 99,680

Reception Rec Date Type Grantor Grantee Doc Fee Sale Date Sale Price
01752266 05-02-1978 WDN 0.00 01-01-1900 0



Account Parcel Account Type Tax Year Buildings Actual Value Local Govt Assessed Value School Assessed Value
R1635086 095731000001 Agricultural 2026 6 1,147,821 91,250 99,680

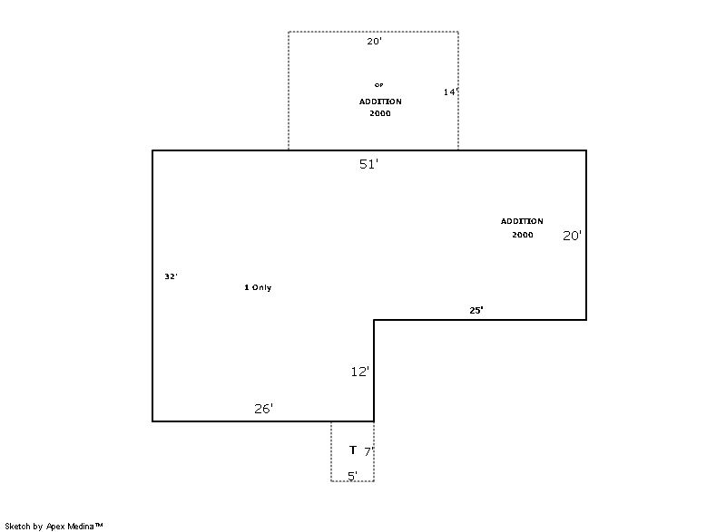
Building 1

AccountNo Building ID Occupancy
R1635086 1 Secondary Single Family Res on Ag


ID Type NBHD Occupancy % Complete Bedrooms Baths
1 Residential 0R0071 Secondary Single Family Res on Ag 100 3 1.00


ID Exterior Roof Cover Interior HVAC Perimeter Units Unit Type Make
1 Frame Hardboard Composition Shingle Drywall Central Air to Air 0 0 NA NA


ID Square Ft Condo SF Total Basement SF Finished Basement SF Garage SF Carport SF Balcony SF Porch SF
1 1,332 0 0 0 0 0 0 280


Built As Details for Building 1
ID Built As Square Ft Year Built Stories Length Width
1.00 Ranch 1 Story 1,332 1909 1 0 0


Additional Details for Building 1
ID Detail Type Description Units
1 Fixture Full Bath 1.00
1 Porch Open Slab 35.00
1 Porch Slab Roof 280.00



Building 2

AccountNo Building ID Occupancy
R1635086 2 Utility Building


ID Type NBHD Occupancy % Complete Bedrooms Baths
2 Out Building NA Utility Building 100 0 0.00


ID Exterior Roof Cover Interior HVAC Perimeter Units Unit Type Make
2 NA NA NA None 220 0 NA NA


ID Square Ft Condo SF Total Basement SF Finished Basement SF Garage SF Carport SF Balcony SF Porch SF
2 2,184 0 0 0 0 0 0 0


Built As Details for Building 2
ID Built As Square Ft Year Built Stories Length Width
2.00 Utility Building 2,184 1960 1 84 26

No Additional Details for Building 2




Building 3

AccountNo Building ID Occupancy
R1635086 3 Equipment Building


ID Type NBHD Occupancy % Complete Bedrooms Baths
3 Out Building NA Equipment Building 100 0 0.00


ID Exterior Roof Cover Interior HVAC Perimeter Units Unit Type Make
3 NA NA NA None 240 0 NA NA


ID Square Ft Condo SF Total Basement SF Finished Basement SF Garage SF Carport SF Balcony SF Porch SF
3 3,200 0 0 0 0 0 0 0


Built As Details for Building 3
ID Built As Square Ft Year Built Stories Length Width
3.00 Equipment Building 3,200 1999 1 80 40

No Additional Details for Building 3




Building 4

AccountNo Building ID Occupancy
R1635086 4 Shed - Cattle


ID Type NBHD Occupancy % Complete Bedrooms Baths
4 Out Building NA Shed - Cattle 100 0 0.00


ID Exterior Roof Cover Interior HVAC Perimeter Units Unit Type Make
4 NA NA NA None 100 0 NA NA


ID Square Ft Condo SF Total Basement SF Finished Basement SF Garage SF Carport SF Balcony SF Porch SF
4 1,200 0 0 0 0 0 0 0


Built As Details for Building 4
ID Built As Square Ft Year Built Stories Length Width
4.00 Shed - Cattle 1,200 1919 1 40 30

No Additional Details for Building 4




Building 5

AccountNo Building ID Occupancy
R1635086 5 Utility Building


ID Type NBHD Occupancy % Complete Bedrooms Baths
5 Out Building NA Utility Building 100 0 0.00


ID Exterior Roof Cover Interior HVAC Perimeter Units Unit Type Make
5 NA NA NA None 52 0 NA NA


ID Square Ft Condo SF Total Basement SF Finished Basement SF Garage SF Carport SF Balcony SF Porch SF
5 160 0 0 0 0 0 0 0


Built As Details for Building 5
ID Built As Square Ft Year Built Stories Length Width
5.00 Utility Building 160 1919 1 16 10

No Additional Details for Building 5




Building 6

AccountNo Building ID Occupancy
R1635086 6 Single Family Residential on Ag


ID Type NBHD Occupancy % Complete Bedrooms Baths
6 Residential 0R0071 Single Family Residential on Ag 100 3 3.00


ID Exterior Roof Cover Interior HVAC Perimeter Units Unit Type Make
6 Frame Stucco Composition Shingle Drywall Central Air to Air 258 0 NA NA


ID Square Ft Condo SF Total Basement SF Finished Basement SF Garage SF Carport SF Balcony SF Porch SF
6 2,416 0 2,392 1,870 1,682 0 0 442


Built As Details for Building 6
ID Built As Square Ft Year Built Stories Length Width
6.00 Ranch 1 Story 2,416 2021 1 0 0


Additional Details for Building 6
ID Detail Type Description Units
6 Add On Fireplace Gas 2.00
6 Basement Finished 1870.00
6 Basement Total Basement SF 2392.00
6 Fixture Full Bath 3.00
6 Fixture Half Bath 1.00
6 Garage Attached 1682.00
6 Porch Slab Roof Ceil 442.00





Account Parcel Account Type Tax Year Buildings Actual Value Local Govt Assessed Value School Assessed Value
R1635086 095731000001 Agricultural 2026 6 1,147,821 91,250 99,680

Type Code Description Actual Value Local Govt Assessed Value School Assessed Value Acres Land SqFt
Improvement 4277 FARM/RANCH RESIDENCE-IMPS 1,053,832 65,870 74,300 0.000 0
Improvement 4279 FARM RANCH SUPPORT BLDGS 33,697 9,100 9,100 0.000 0
Land 4117 FLOOD IRRIGATED LAND-AGRICULTURAL 59,971 16,190 16,190 67.767 2,951,917
Land 4147 GRAZING LAND-AGRICULTURAL 301 80 80 7.635 332,594
Land 4167 WASTE LAND 20 10 10 3.000 130,680
Totals - - 1,147,821 91,250 99,680 78.402 3,415,191


Account Parcel Account Type Tax Year Buildings Actual Value Local Govt Assessed Value School Assessed Value
R1635086 095731000001 Agricultural 2026 6 1,147,821 91,250 99,680

Tax Area District ID District Name Local Govt
Mill Levy
School
Mill Levy
Estimated
Taxes
2364 0700 AIMS JUNIOR COLLEGE 6.313 0.000 $576.06
2364 0510 FRONT RANGE FIRE RESCUE FIRE PROTECTION DISTRICT 11.483 0.000 $1,047.82
2364 1050 HIGH PLAINS LIBRARY 3.044 0.000 $277.77
2364 1206 LARIMER CONSERVATION DISTRICT 0.000 0.000 $0.00
2364 0306 LITTLE THOMPSON WATER (LTW) 0.000 0.000 $0.00
2364 0301 NORTHERN COLORADO WATER (NCW) 1.000 0.000 $91.25
2364 0205 SCHOOL DIST RE5J-JOHNSTOWN 0.000 36.271 $3,615.49
2364 0100 WELD COUNTY 15.956 0.000 $1,455.99
Total - - 37.796 36.271 $7,064.38


The estimate of tax is based on the prior year mill levy and the 2025 projected assessment rates. Mill levies and tax estimates will be updated yearly on December 22nd for the current year. Additional information can be found at https://assessor.weld.gov










Select Reports to Print: