Account: R1639386

April 1, 2026

Account Parcel Account Type Tax Year Buildings Actual Value Local Govt Assessed Value School Assessed Value
R1639386 095734000013 Agricultural 2026 2 560,224 38,090 42,440

Legal
MIL 22672 NE4NE4 34 5 67 (SAUTER ANNEX)

Subdivision Block Lot Land Economic Area
MILLIKEN RURAL

Property Address Property City Section Township Range
9800 COUNTY ROAD 52 MILLIKEN 34 05 67




Account Parcel Account Type Tax Year Buildings Actual Value Local Govt Assessed Value School Assessed Value
R1639386 095734000013 Agricultural 2026 2 560,224 38,090 42,440

Account Owner Name Address
R1639386 MERCADO CARLOS VALLES 9800 COUNTY ROAD 52 MILLIKEN, CO 805439629


Account Parcel Account Type Tax Year Buildings Actual Value Local Govt Assessed Value School Assessed Value
R1639386 095734000013 Agricultural 2026 2 560,224 38,090 42,440

Reception Rec Date Type Grantor Grantee Doc Fee Sale Date Sale Price
01952925 01-12-1984 WDN 0.00 01-01-1900 0
02084372 01-13-1987 QCN 0.00 01-13-1987 0
3789601 08-31-2011 PRDN SAUTER HELEN R SAUTER BRUCE A 0.00 08-29-2011 0
4085106 02-23-2015 WD SAUTER BRUCE A VALLES CONSTRUCTION LLC 39.50 02-18-2015 395,000
4173056 01-14-2016 QCN VALLES CONSTRUCTION LLC VALLES CARLOS A; DAVIS ASHLEY E 0.00 01-12-2016 0
4670586 01-13-2021 SWDN VALLES CARLOS A; DAVIS ASHLEY E MERCADO CARLOS VALLES 0.00 01-08-2021 0
X0003856 01-12-1984 WD MINER JANE SAUTER JOSEPH A 3.00 01-12-1984 30,000



Account Parcel Account Type Tax Year Buildings Actual Value Local Govt Assessed Value School Assessed Value
R1639386 095734000013 Agricultural 2026 2 560,224 38,090 42,440

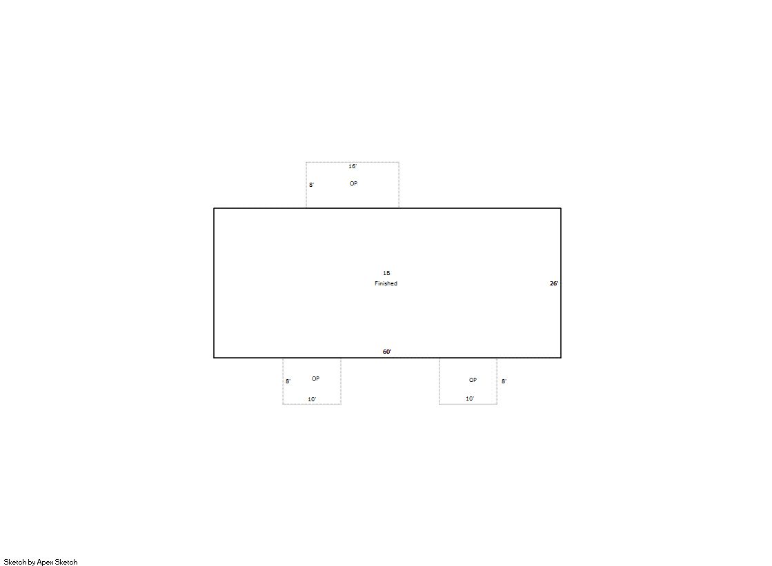
Building 1

AccountNo Building ID Occupancy
R1639386 1 Single Family Residential on Ag


ID Type NBHD Occupancy % Complete Bedrooms Baths
1 Residential 0R1009 Single Family Residential on Ag 100 2 2.00


ID Exterior Roof Cover Interior HVAC Perimeter Units Unit Type Make
1 Frame Hardboard Composition Shingle Drywall Electric Baseboard 172 0 NA NA


ID Square Ft Condo SF Total Basement SF Finished Basement SF Garage SF Carport SF Balcony SF Porch SF
1 1,560 0 1,560 1,560 0 0 0 288


Built As Details for Building 1
ID Built As Square Ft Year Built Stories Length Width
1.00 Ranch 1 Story 1,560 1984 1 0 0


Additional Details for Building 1
ID Detail Type Description Units
1 Add On Fireplace Wood 1.00
1 Basement Finished 1560.00
1 Basement Outside Entrance 2.00
1 Basement Total Basement SF 1560.00
1 Fixture Full Bath 2.00
1 Porch Slab Roof Ceil 288.00



Building 2

AccountNo Building ID Occupancy
R1639386 2 Equipment Building


ID Type NBHD Occupancy % Complete Bedrooms Baths
2 Out Building NA Equipment Building 100 0 0.00


ID Exterior Roof Cover Interior HVAC Perimeter Units Unit Type Make
2 NA NA NA None 0 0 NA NA


ID Square Ft Condo SF Total Basement SF Finished Basement SF Garage SF Carport SF Balcony SF Porch SF
2 1,600 0 0 0 0 0 0 0


Built As Details for Building 2
ID Built As Square Ft Year Built Stories Length Width
2.00 Equipment Building 1,600 1985 0 50 32

No Additional Details for Building 2






Account Parcel Account Type Tax Year Buildings Actual Value Local Govt Assessed Value School Assessed Value
R1639386 095734000013 Agricultural 2026 2 560,224 38,090 42,440

Type Code Description Actual Value Local Govt Assessed Value School Assessed Value Acres Land SqFt
Improvement 4277 FARM/RANCH RESIDENCE-IMPS 545,444 34,090 38,450 0.000 0
Improvement 4279 FARM RANCH SUPPORT BLDGS 14,437 3,900 3,900 0.000 0
Land 4147 GRAZING LAND-AGRICULTURAL 330 90 90 37.312 1,625,311
Land 4167 WASTE LAND 13 10 0 2.000 87,120
Totals - - 560,224 38,090 42,440 39.312 1,712,431


Account Parcel Account Type Tax Year Buildings Actual Value Local Govt Assessed Value School Assessed Value
R1639386 095734000013 Agricultural 2026 2 560,224 38,090 42,440

Tax Area District ID District Name Local Govt
Mill Levy
School
Mill Levy
Estimated
Taxes
5758 0700 AIMS JUNIOR COLLEGE 6.313 0.000 $240.46
5758 0510 FRONT RANGE FIRE RESCUE FIRE PROTECTION DISTRICT 11.483 0.000 $437.39
5758 1050 HIGH PLAINS LIBRARY 3.044 0.000 $115.95
5758 0306 LITTLE THOMPSON WATER (LTW) 0.000 0.000 $0.00
5758 0421 MILLIKEN TOWN 26.301 0.000 $1,001.81
5758 0301 NORTHERN COLORADO WATER (NCW) 1.000 0.000 $38.09
5758 0205 SCHOOL DIST RE5J-JOHNSTOWN 0.000 36.271 $1,539.34
5758 0901 THOMPSON RIVER REC 3.594 0.000 $136.90
5758 0100 WELD COUNTY 15.956 0.000 $607.76
5758 1200 WEST GREELEY CONSERVATION 0.414 0.000 $15.77
Total - - 68.105 36.271 $4,133.46


The estimate of tax is based on the prior year mill levy and the 2025 projected assessment rates. Mill levies and tax estimates will be updated yearly on December 22nd for the current year. Additional information can be found at https://assessor.weld.gov










Select Reports to Print: