Account: R1653186

April 1, 2026

Account Parcel Account Type Tax Year Buildings Actual Value Local Govt Assessed Value School Assessed Value
R1653186 095901105009 Residential 2026 1 330,620 20,670 23,310

Legal
GR 4WA3-4 L4 BLK3 4TH WARD ACRES

Subdivision Block Lot Land Economic Area
WARD ACRES 4TH ADD 3 4 WEST OF 23RD AVE AND NORTH OF 4TH ST

Property Address Property City Section Township Range
115 N 25TH AVENUE CT GREELEY 01 05 66




Account Parcel Account Type Tax Year Buildings Actual Value Local Govt Assessed Value School Assessed Value
R1653186 095901105009 Residential 2026 1 330,620 20,670 23,310

Account Owner Name Address
R1653186 115 N 25TH TRUST 1635 FOXTRAIL DR # 334 LOVELAND, CO 805389086


Account Parcel Account Type Tax Year Buildings Actual Value Local Govt Assessed Value School Assessed Value
R1653186 095901105009 Residential 2026 1 330,620 20,670 23,310

Reception Rec Date Type Grantor Grantee Doc Fee Sale Date Sale Price
02001511 03-12-1985 WD KINCAID PEGGY J; KINCAID DONALD D JR FERNANDEZ VIRGINIA; FERNANDEZ SAM W 4.25 03-08-1985 42,500
02402819 08-17-1994 QCN FERNANDEZ VIRGINIA; FERNANDEZ SAM W FERNANDEZ SAM W 0.00 08-15-1994 0
1218744 NA SUB SUBDIVISION WARD ACRES 4TH ADD 0.00 NA 0
4597429 06-09-2020 PRD FERNANDEZ SAM COLORADO INVESTMENT MANAGERS LLC 15.40 06-05-2020 154,000
4757230 09-17-2021 SWD COLORADO INVESTMENT MANAGERS LLC PAZ PATRICIA A; PAZ TASHA A 26.00 09-03-2020 260,000
4871388 12-09-2022 WD PAZ PATRICIA A; PAZ TASHA A 115 N 25TH TRUST 24.00 12-09-2022 240,000
X0003877 03-12-1985 WD KINCAID DONALD D JR FERNANDEZ SAM W & VIRGINIA 4.25 03-12-1985 42,500



Account Parcel Account Type Tax Year Buildings Actual Value Local Govt Assessed Value School Assessed Value
R1653186 095901105009 Residential 2026 1 330,620 20,670 23,310

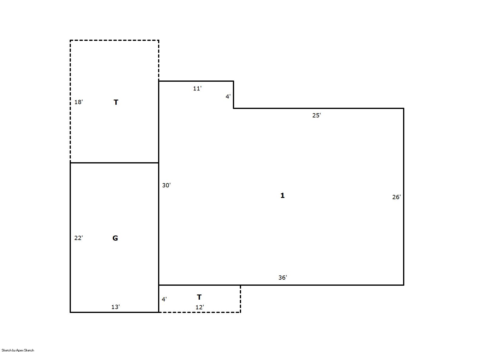
Building 1

AccountNo Building ID Occupancy
R1653186 1 Single Family Residential


ID Type NBHD Occupancy % Complete Bedrooms Baths
1 Residential 6G1038 Single Family Residential 100 3 1.00


ID Exterior Roof Cover Interior HVAC Perimeter Units Unit Type Make
1 Frame Hardboard Composition Shingle Drywall Central Air to Air 132 0 NA NA


ID Square Ft Condo SF Total Basement SF Finished Basement SF Garage SF Carport SF Balcony SF Porch SF
1 980 0 0 0 286 0 0 282


Built As Details for Building 1
ID Built As Square Ft Year Built Stories Length Width
1.00 Ranch 1 Story 980 1972 1 0 0


Additional Details for Building 1
ID Detail Type Description Units
1 Fixture Full Bath 1.00
1 Garage Attached 286.00
1 Porch Open Slab 282.00





Account Parcel Account Type Tax Year Buildings Actual Value Local Govt Assessed Value School Assessed Value
R1653186 095901105009 Residential 2026 1 330,620 20,670 23,310

Type Code Description Actual Value Local Govt Assessed Value School Assessed Value Acres Land SqFt
Improvement 1212 SINGLE FAMILY RESIDENTIAL IMPROVEMENTS 279,620 17,480 19,710 0.000 0
Land 1112 SINGLE FAMILY RESIDENTIAL-LAND 51,000 3,190 3,600 0.179 7,800
Totals - - 330,620 20,670 23,310 0.179 7,800


Account Parcel Account Type Tax Year Buildings Actual Value Local Govt Assessed Value School Assessed Value
R1653186 095901105009 Residential 2026 1 330,620 20,670 23,310

Tax Area District ID District Name Local Govt
Mill Levy
School
Mill Levy
Estimated
Taxes
0600 0700 AIMS JUNIOR COLLEGE 6.313 0.000 $130.49
0600 0411 GREELEY CITY 11.274 0.000 $233.03
0600 1050 HIGH PLAINS LIBRARY 3.044 0.000 $62.92
0600 0301 NORTHERN COLORADO WATER (NCW) 1.000 0.000 $20.67
0600 0206 SCHOOL DIST 6-GREELEY 0.000 47.615 $1,109.91
0600 0100 WELD COUNTY 15.956 0.000 $329.81
Total - - 37.587 47.615 $1,886.83


The estimate of tax is based on the prior year mill levy and the 2025 projected assessment rates. Mill levies and tax estimates will be updated yearly on December 22nd for the current year. Additional information can be found at https://assessor.weld.gov










Select Reports to Print: