Account: R1690686
April 1, 2026
| Account | Parcel | Account Type | Tax Year | Buildings | Actual Value | Local Govt Assessed Value | School Assessed Value |
|---|---|---|---|---|---|---|---|
| R1690686 | 095901113004 | Residential | 2026 | 1 | 400,919 | 25,060 | 28,270 |
| Legal |
|---|
| GR WD1-6 L6 BLK1 WEIDENKELLER SUB |
| Subdivision | Block | Lot | Land Economic Area |
|---|---|---|---|
| WEIDENKELLER SUB | 1 | 6 | WEST OF 23RD AVE AND NORTH OF 4TH ST |
| Property Address | Property City | Section | Township | Range |
|---|---|---|---|---|
| 319 26TH AVE | GREELEY | 01 | 05 | 66 |
| Account | Parcel | Account Type | Tax Year | Buildings | Actual Value | Local Govt Assessed Value | School Assessed Value |
|---|---|---|---|---|---|---|---|
| R1690686 | 095901113004 | Residential | 2026 | 1 | 400,919 | 25,060 | 28,270 |
| Account | Owner Name | Address |
|---|---|---|
| R1690686 | AGUIRRE LUZ MARIA AGUIRRE | 319 26TH AVE GREELEY, CO 806311517 |
| R1690686 | BATISTA RAYMUNDO JR |
| Account | Parcel | Account Type | Tax Year | Buildings | Actual Value | Local Govt Assessed Value | School Assessed Value |
|---|---|---|---|---|---|---|---|
| R1690686 | 095901113004 | Residential | 2026 | 1 | 400,919 | 25,060 | 28,270 |
| Reception | Rec Date | Type | Grantor | Grantee | Doc Fee | Sale Date | Sale Price |
|---|---|---|---|---|---|---|---|
| 1333248 | NA | SUB | SUBDIVISION | WEIDENKELLER | 0.00 | NA | 0 |
| 2149254 | 07-25-1988 | WD | WILSON FRED A & BOBBIE F | LINN EDWARD T & JUDITH A | 4.60 | 07-20-1988 | 46,000 |
| 2326593 | 03-26-1993 | WD | LINN EDWARD T & JUDITH A | LOFTUS MATHEW R & | 5.90 | 03-17-1993 | 59,000 |
| 2560395 | 07-29-1997 | WD | LOFTUS MATHEW R & | WEIMER CRAIG L & CYNTHIA R | 9.15 | 07-25-1997 | 91,500 |
| 4045595 | 09-12-2014 | WD | WEIMER CYNTHIA R; WEIMER CRAIG L | GARCIA PEDRO | 15.20 | 09-08-2014 | 152,000 |
| 4529952 | 10-04-2019 | WD | GARCIA PEDRO | 319 26TH TRUST | 19.40 | 10-04-2019 | 194,000 |
| 4573451 | 03-10-2020 | WD | 319 26TH TRUST | AGUIRRE LUZ MARIA AGUIRRE; BATISTA RAYMUNDO JR | 28.50 | 03-09-2020 | 285,000 |
*If the hyperlink for the reception number does not work, try a manual search in the Clerk and Recorder records. Use the Grantor or Grantee in your search.
| Account | Parcel | Account Type | Tax Year | Buildings | Actual Value | Local Govt Assessed Value | School Assessed Value |
|---|---|---|---|---|---|---|---|
| R1690686 | 095901113004 | Residential | 2026 | 1 | 400,919 | 25,060 | 28,270 |
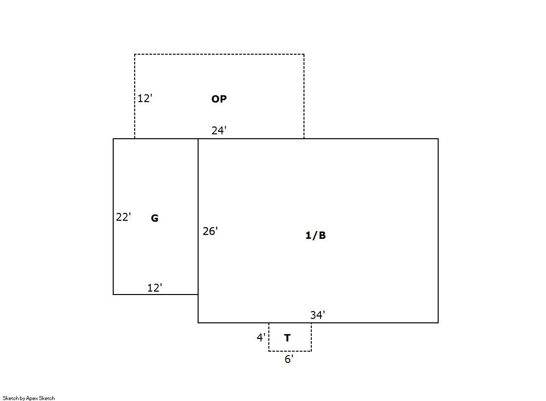
Building 1
| AccountNo | Building ID | Occupancy |
|---|---|---|
| R1690686 | 1 | Single Family Residential |
| ID | Type | NBHD | Occupancy | % Complete | Bedrooms | Baths |
|---|---|---|---|---|---|---|
| 1 | Residential | 6G1038 | Single Family Residential | 100 | 4 | 2.00 |
| ID | Exterior | Roof Cover | Interior | HVAC | Perimeter | Units | Unit Type | Make |
|---|---|---|---|---|---|---|---|---|
| 1 | Frame Hardboard | Composition Shingle | Drywall | Central Air to Air | 120 | 0 | NA | NA |
| ID | Square Ft | Condo SF | Total Basement SF | Finished Basement SF | Garage SF | Carport SF | Balcony SF | Porch SF |
|---|---|---|---|---|---|---|---|---|
| 1 | 884 | 0 | 884 | 884 | 264 | 0 | 0 | 288 |
| ID | Built As | Square Ft | Year Built | Stories | Length | Width |
|---|---|---|---|---|---|---|
| 1.00 | Ranch 1 Story | 884 | 1971 | 1 | 0 | 0 |
| ID | Detail Type | Description | Units |
|---|---|---|---|
| 1 | Add On | Fireplace Wood | 1.00 |
| 1 | Add On | Shed Alumium | 64.00 |
| 1 | Basement | Finished | 884.00 |
| 1 | Basement | Total Basement SF | 884.00 |
| 1 | Fixture | Full Bath | 2.00 |
| 1 | Garage | Attached | 264.00 |
| 1 | Porch | Open Slab | 24.00 |
| 1 | Porch | Slab Roof Ceil | 288.00 |
| Account | Parcel | Account Type | Tax Year | Buildings | Actual Value | Local Govt Assessed Value | School Assessed Value |
|---|---|---|---|---|---|---|---|
| R1690686 | 095901113004 | Residential | 2026 | 1 | 400,919 | 25,060 | 28,270 |
| Type | Code | Description | Actual Value | Local Govt Assessed Value | School Assessed Value | Acres | Land SqFt |
|---|---|---|---|---|---|---|---|
| Improvement | 1212 | SINGLE FAMILY RESIDENTIAL IMPROVEMENTS | 349,919 | 21,870 | 24,670 | 0.000 | 0 |
| Land | 1112 | SINGLE FAMILY RESIDENTIAL-LAND | 51,000 | 3,190 | 3,600 | 0.196 | 8,556 |
| Totals | - | - | 400,919 | 25,060 | 28,270 | 0.196 | 8,556 |
Comparable sales for your Residential or Commercial property may be found using our SALES SEARCH TOOL
Values are updated annually on May 1st for Real Property and June 15th for Personal Property and Oil and Gas.
| Account | Parcel | Account Type | Tax Year | Buildings | Actual Value | Local Govt Assessed Value | School Assessed Value |
|---|---|---|---|---|---|---|---|
| R1690686 | 095901113004 | Residential | 2026 | 1 | 400,919 | 25,060 | 28,270 |
| Tax Area | District ID | District Name | Local Govt Mill Levy |
School Mill Levy |
Estimated Taxes |
|---|---|---|---|---|---|
| 0600 | 0700 | AIMS JUNIOR COLLEGE | 6.313 | 0.000 | $158.20 |
| 0600 | 0411 | GREELEY CITY | 11.274 | 0.000 | $282.53 |
| 0600 | 1050 | HIGH PLAINS LIBRARY | 3.044 | 0.000 | $76.28 |
| 0600 | 0301 | NORTHERN COLORADO WATER (NCW) | 1.000 | 0.000 | $25.06 |
| 0600 | 0206 | SCHOOL DIST 6-GREELEY | 0.000 | 47.615 | $1,346.08 |
| 0600 | 0100 | WELD COUNTY | 15.956 | 0.000 | $399.86 |
| Total | - | - | 37.587 | 47.615 | $2,288.01 |
The estimate of tax is based on the prior year mill levy and the 2025 projected assessment rates. Mill levies and tax estimates will be updated yearly on December 22nd for the current year. Additional information can be found at https://assessor.weld.gov


