Account: R1717002

April 1, 2026

Account Parcel Account Type Tax Year Buildings Actual Value Local Govt Assessed Value School Assessed Value
R1717002 131315301007 Residential 2026 1 943,456 58,970 66,520

Legal
FRE 1RVR L7 BLK1 RINN VALLEY RANCH 1ST FG

Subdivision Block Lot Land Economic Area
RINN VALLEY RANCH 1ST FG 1 7 RINN VALLEY

Property Address Property City Section Township Range
9475 HOMESTEAD DR FREDERICK 15 02 68




Account Parcel Account Type Tax Year Buildings Actual Value Local Govt Assessed Value School Assessed Value
R1717002 131315301007 Residential 2026 1 943,456 58,970 66,520

Account Owner Name Address
R1717002 YAMASAKI SCOTT 9475 HOMESTEAD DR FREDERICK, CO 805045687
R1717002 YAMASAKI JULIE R


Account Parcel Account Type Tax Year Buildings Actual Value Local Govt Assessed Value School Assessed Value
R1717002 131315301007 Residential 2026 1 943,456 58,970 66,520

Reception Rec Date Type Grantor Grantee Doc Fee Sale Date Sale Price
2955826 NA SUB SUBDIVISION RINN VALLEY RANCH 1ST FG 0.00 NA 0
3122705 11-03-2003 WD CAPITAL PACIFIC HOLDINGS LLC YAMASAKI SCOTT & JULIE R 37.99 10-24-2003 379,900



Account Parcel Account Type Tax Year Buildings Actual Value Local Govt Assessed Value School Assessed Value
R1717002 131315301007 Residential 2026 1 943,456 58,970 66,520

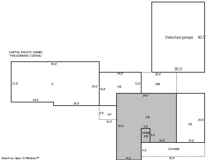
Building 1

AccountNo Building ID Occupancy
R1717002 1 Single Family Residential


ID Type NBHD Occupancy % Complete Bedrooms Baths
1 Residential 3K1060 Single Family Residential 100 5 4.00


ID Exterior Roof Cover Interior HVAC Perimeter Units Unit Type Make
1 Frame Siding Composition Shingle Drywall Central Air to Air 0 0 NA NA


ID Square Ft Condo SF Total Basement SF Finished Basement SF Garage SF Carport SF Balcony SF Porch SF
1 2,950 0 1,898 0 1,200 0 240 80


Built As Details for Building 1
ID Built As Square Ft Year Built Stories Length Width
1.00 2 Story 2,950 2003 2 0 0


Additional Details for Building 1
ID Detail Type Description Units
1 Add On Fireplace Gas 1.00
1 Balcony Cover Wood Balc 288.00
1 Balcony Wood Wood Fin 240.00
1 Basement Full Daylight 1.00
1 Basement Total Basement SF 1898.00
1 Fixture Full Bath 3.00
1 Fixture Half Bath 1.00
1 Garage Attached 1202.00
1 Garage Detached 1200.00
1 Porch Slab Roof Ceil 80.00
1 Rough In Rough In 1.00





Account Parcel Account Type Tax Year Buildings Actual Value Local Govt Assessed Value School Assessed Value
R1717002 131315301007 Residential 2026 1 943,456 58,970 66,520

Type Code Description Actual Value Local Govt Assessed Value School Assessed Value Acres Land SqFt
Improvement 1212 SINGLE FAMILY RESIDENTIAL IMPROVEMENTS 753,456 47,090 53,120 0.000 0
Land 1112 SINGLE FAMILY RESIDENTIAL-LAND 190,000 11,880 13,400 0.922 40,162
Totals - - 943,456 58,970 66,520 0.922 40,162


Account Parcel Account Type Tax Year Buildings Actual Value Local Govt Assessed Value School Assessed Value
R1717002 131315301007 Residential 2026 1 943,456 58,970 66,520

Tax Area District ID District Name Local Govt
Mill Levy
School
Mill Levy
Estimated
Taxes
3306 0900 CARBON VALLEY REC 4.427 0.000 $261.06
3306 0408 FREDERICK TOWN 6.555 0.000 $386.55
3306 0507 FREDERICK-FIRESTONE FIRE 15.559 0.000 $917.51
3306 1050 HIGH PLAINS LIBRARY 3.044 0.000 $179.50
3306 0311 LEFT HAND WATER 0.000 0.000 $0.00
3306 0301 NORTHERN COLORADO WATER (NCW) 1.000 0.000 $58.97
3306 0213 SCHOOL DIST RE1J-LONGMONT 0.000 57.717 $3,839.33
3306 0620 ST VRAIN SANITATION 0.316 0.000 $18.63
3306 0100 WELD COUNTY 15.956 0.000 $940.93
Total - - 46.857 57.717 $6,602.49


The estimate of tax is based on the prior year mill levy and the 2025 projected assessment rates. Mill levies and tax estimates will be updated yearly on December 22nd for the current year. Additional information can be found at https://assessor.weld.gov










Select Reports to Print: