Account: R1726902

April 1, 2026

Account Parcel Account Type Tax Year Buildings Actual Value Local Govt Assessed Value School Assessed Value
R1726902 096116408035 Residential 2026 1 366,481 22,900 25,840

Legal
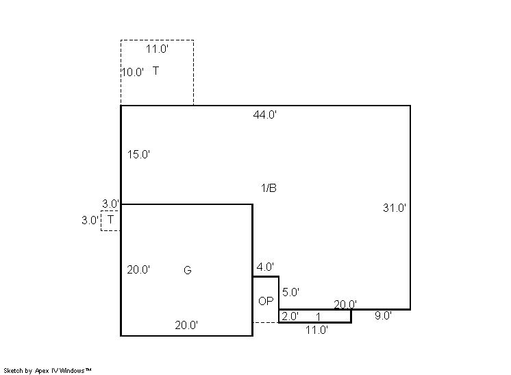
GR 2EM L35 BLK7 EAST MEADOWS 2ND FG

Subdivision Block Lot Land Economic Area
EAST MEADOWS SUB 2ND FG 7 35 EAST MEADOWS

Property Address Property City Section Township Range
933 E 25TH STREET RD GREELEY 16 05 65




Account Parcel Account Type Tax Year Buildings Actual Value Local Govt Assessed Value School Assessed Value
R1726902 096116408035 Residential 2026 1 366,481 22,900 25,840

Account Owner Name Address
R1726902 AMERICAN HOMES 4 RENT PROPERTIES FIVE ATTN: PROPERTY TAX DEPARTMENT 23975 PARK SORRENTO STE 300 CALABASAS, CA 913024012


Account Parcel Account Type Tax Year Buildings Actual Value Local Govt Assessed Value School Assessed Value
R1726902 096116408035 Residential 2026 1 366,481 22,900 25,840

Reception Rec Date Type Grantor Grantee Doc Fee Sale Date Sale Price
2962650 NA SUB SUBDIVISION EAST MEADOWS 2ND FG 0.00 NA 0
2966009 07-02-2002 SWD EAST MEADOWS CO LLC WILLOWBROOK DEVELOPMENT LLC 184.80 06-21-2002 1,848,000
2979226 08-19-2002 WD WILLOWBROOK DEVELOPMENT LLC J & J CONSTRUCTION OF NORTHERN COLO LLC 147.00 08-15-2002 1,470,000
3057999 05-01-2003 WD J & J CONSTRUCTION OF NORTHERN COLO LLC PEREZ JOSE A & 14.31 04-30-2003 143,100
3259364 02-07-2005 WD PEREZ JOSE A & PARTLOW BRANDON & 15.39 02-04-2005 153,900
3787067 08-19-2011 QCN PARTLOW BRANDON PARTLOW BRANDON 0.00 07-18-2011 0
3987974 01-06-2014 PTD PARTLOW BRANDON AMERICAN HOMES 4 RENT NINE LLC 0.00 01-03-2014 0



Account Parcel Account Type Tax Year Buildings Actual Value Local Govt Assessed Value School Assessed Value
R1726902 096116408035 Residential 2026 1 366,481 22,900 25,840

Building 1

AccountNo Building ID Occupancy
R1726902 1 Single Family Residential


ID Type NBHD Occupancy % Complete Bedrooms Baths
1 Residential 6G0035 Single Family Residential 100 4 2.00


ID Exterior Roof Cover Interior HVAC Perimeter Units Unit Type Make
1 Frame Hardboard Composition Shingle Drywall Forced Air 0 0 NA NA


ID Square Ft Condo SF Total Basement SF Finished Basement SF Garage SF Carport SF Balcony SF Porch SF
1 1,046 0 1,024 512 400 0 0 28


Built As Details for Building 1
ID Built As Square Ft Year Built Stories Length Width
1.00 Ranch 1 Story 1,046 2002 1 0 0


Additional Details for Building 1
ID Detail Type Description Units
1 Basement Finished 512.00
1 Basement Total Basement SF 1024.00
1 Fixture Full Bath 2.00
1 Garage Attached 400.00
1 Porch Open Slab 119.00
1 Porch Slab Roof Ceil 28.00





Account Parcel Account Type Tax Year Buildings Actual Value Local Govt Assessed Value School Assessed Value
R1726902 096116408035 Residential 2026 1 366,481 22,900 25,840

Type Code Description Actual Value Local Govt Assessed Value School Assessed Value Acres Land SqFt
Improvement 1212 SINGLE FAMILY RESIDENTIAL IMPROVEMENTS 309,481 19,340 21,820 0.000 0
Land 1112 SINGLE FAMILY RESIDENTIAL-LAND 57,000 3,560 4,020 0.144 6,275
Totals - - 366,481 22,900 25,840 0.144 6,275


Account Parcel Account Type Tax Year Buildings Actual Value Local Govt Assessed Value School Assessed Value
R1726902 096116408035 Residential 2026 1 366,481 22,900 25,840

Tax Area District ID District Name Local Govt
Mill Levy
School
Mill Levy
Estimated
Taxes
0600 0700 AIMS JUNIOR COLLEGE 6.313 0.000 $144.57
0600 0411 GREELEY CITY 11.274 0.000 $258.17
0600 1050 HIGH PLAINS LIBRARY 3.044 0.000 $69.71
0600 0301 NORTHERN COLORADO WATER (NCW) 1.000 0.000 $22.90
0600 0206 SCHOOL DIST 6-GREELEY 0.000 47.615 $1,230.37
0600 0100 WELD COUNTY 15.956 0.000 $365.39
Total - - 37.587 47.615 $2,091.11


The estimate of tax is based on the prior year mill levy and the 2025 projected assessment rates. Mill levies and tax estimates will be updated yearly on December 22nd for the current year. Additional information can be found at https://assessor.weld.gov










Select Reports to Print: