Account: R1736202
April 1, 2026
| Account | Parcel | Account Type | Tax Year | Buildings | Actual Value | Local Govt Assessed Value | School Assessed Value |
|---|---|---|---|---|---|---|---|
| R1736202 | 095925129009 | Residential | 2026 | 1 | 300,906 | 18,810 | 21,210 |
| Legal |
|---|
| EVS WBTH L4A BLK15 WILLOWBROOK TOWNHOUSE MINOR RPLT |
| Subdivision | Block | Lot | Land Economic Area |
|---|---|---|---|
| WILLOWBROOK SUB TWNHS MINOR RPLT L4,5 B15 | 15 | 4A | WILLOWBROOK |
| Property Address | Property City | Section | Township | Range |
|---|---|---|---|---|
| 2402 QUAY ST | EVANS | 25 | 05 | 66 |
| Account | Parcel | Account Type | Tax Year | Buildings | Actual Value | Local Govt Assessed Value | School Assessed Value |
|---|---|---|---|---|---|---|---|
| R1736202 | 095925129009 | Residential | 2026 | 1 | 300,906 | 18,810 | 21,210 |
| Account | Owner Name | Address |
|---|---|---|
| R1736202 | MATTOON STEPHANIE | 4655 WISCONSIN AVE LOVELAND, CO 805386833 |
| Account | Parcel | Account Type | Tax Year | Buildings | Actual Value | Local Govt Assessed Value | School Assessed Value |
|---|---|---|---|---|---|---|---|
| R1736202 | 095925129009 | Residential | 2026 | 1 | 300,906 | 18,810 | 21,210 |
| Reception | Rec Date | Type | Grantor | Grantee | Doc Fee | Sale Date | Sale Price |
|---|---|---|---|---|---|---|---|
| 2970688 | NA | SUB | SUBDIVISION | WILLOWBROOK TOWNHOUSE MINOR RPLT LOTS 4&5 BLK 15 | 0.00 | NA | 0 |
| 2992893 | 10-03-2002 | QCN | SPACE LINE DESIGN CONSTRUCTION LLC | MATTOON TIMOTHY M & STEPHANIE S | 0.00 | 09-19-2002 | 0 |
| 4058155 | 10-31-2014 | QCN | MATTOON STEPHANIE S; MATTOON TIMOTHY M | MATTOON STEPHANIE | 0.00 | 10-23-2014 | 0 |
| 4944708 | 02-15-2024 | BN | MATTOON STEPHANIE | MATTOON CHELSEA A | 0.00 | 02-14-2024 | 0 |
*If the hyperlink for the reception number does not work, try a manual search in the Clerk and Recorder records. Use the Grantor or Grantee in your search.
| Account | Parcel | Account Type | Tax Year | Buildings | Actual Value | Local Govt Assessed Value | School Assessed Value |
|---|---|---|---|---|---|---|---|
| R1736202 | 095925129009 | Residential | 2026 | 1 | 300,906 | 18,810 | 21,210 |
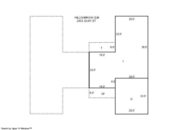
Building 1
| AccountNo | Building ID | Occupancy |
|---|---|---|
| R1736202 | 1 | Duplex |
| ID | Type | NBHD | Occupancy | % Complete | Bedrooms | Baths |
|---|---|---|---|---|---|---|
| 1 | Duplex | 6E1062 | Duplex | 100 | 3 | 2.00 |
| ID | Exterior | Roof Cover | Interior | HVAC | Perimeter | Units | Unit Type | Make |
|---|---|---|---|---|---|---|---|---|
| 1 | Frame Vinyl | Composition Shingle | Drywall | Central Air to Air | 0 | 0 | End | NA |
| ID | Square Ft | Condo SF | Total Basement SF | Finished Basement SF | Garage SF | Carport SF | Balcony SF | Porch SF |
|---|---|---|---|---|---|---|---|---|
| 1 | 1,112 | 0 | 0 | 0 | 440 | 0 | 0 | 96 |
| ID | Built As | Square Ft | Year Built | Stories | Length | Width |
|---|---|---|---|---|---|---|
| 1.00 | Duplex One Story | 1,112 | 2002 | 1 | 0 | 0 |
| ID | Detail Type | Description | Units |
|---|---|---|---|
| 1 | Fixture | Full Bath | 2.00 |
| 1 | Garage | Attached | 440.00 |
| 1 | Porch | Open Slab | 96.00 |
| 1 | Porch | Slab Roof Ceil | 96.00 |
| Account | Parcel | Account Type | Tax Year | Buildings | Actual Value | Local Govt Assessed Value | School Assessed Value |
|---|---|---|---|---|---|---|---|
| R1736202 | 095925129009 | Residential | 2026 | 1 | 300,906 | 18,810 | 21,210 |
| Type | Code | Description | Actual Value | Local Govt Assessed Value | School Assessed Value | Acres | Land SqFt |
|---|---|---|---|---|---|---|---|
| Improvement | 1212 | SINGLE FAMILY RESIDENTIAL IMPROVEMENTS | 260,906 | 16,310 | 18,390 | 0.000 | 0 |
| Land | 1112 | SINGLE FAMILY RESIDENTIAL-LAND | 40,000 | 2,500 | 2,820 | 0.100 | 4,490 |
| Totals | - | - | 300,906 | 18,810 | 21,210 | 0.100 | 4,490 |
Comparable sales for your Residential or Commercial property may be found using our SALES SEARCH TOOL
Values are updated annually on May 1st for Real Property and June 15th for Personal Property and Oil and Gas.
| Account | Parcel | Account Type | Tax Year | Buildings | Actual Value | Local Govt Assessed Value | School Assessed Value |
|---|---|---|---|---|---|---|---|
| R1736202 | 095925129009 | Residential | 2026 | 1 | 300,906 | 18,810 | 21,210 |
| Tax Area | District ID | District Name | Local Govt Mill Levy |
School Mill Levy |
Estimated Taxes |
|---|---|---|---|---|---|
| 0699 | 0700 | AIMS JUNIOR COLLEGE | 6.313 | 0.000 | $118.75 |
| 0699 | 0305 | CENTRAL WELD COUNTY WATER (CWC) | 0.000 | 0.000 | $0.00 |
| 0699 | 0405 | EVANS CITY | 3.536 | 0.000 | $66.51 |
| 0699 | 0534 | EVANS FIRE | 15.500 | 0.000 | $291.56 |
| 0699 | 1050 | HIGH PLAINS LIBRARY | 3.044 | 0.000 | $57.26 |
| 0699 | 0301 | NORTHERN COLORADO WATER (NCW) | 1.000 | 0.000 | $18.81 |
| 0699 | 0206 | SCHOOL DIST 6-GREELEY | 0.000 | 47.615 | $1,009.91 |
| 0699 | 0100 | WELD COUNTY | 15.956 | 0.000 | $300.13 |
| 0699 | 1200 | WEST GREELEY CONSERVATION | 0.414 | 0.000 | $7.79 |
| Total | - | - | 45.763 | 47.615 | $1,870.72 |
The estimate of tax is based on the prior year mill levy and the 2025 projected assessment rates. Mill levies and tax estimates will be updated yearly on December 22nd for the current year. Additional information can be found at https://assessor.weld.gov



