Account: R1736302

April 1, 2026

Account Parcel Account Type Tax Year Buildings Actual Value Local Govt Assessed Value School Assessed Value
R1736302 095925129010 Residential 2026 1 300,906 18,810 21,210

Legal
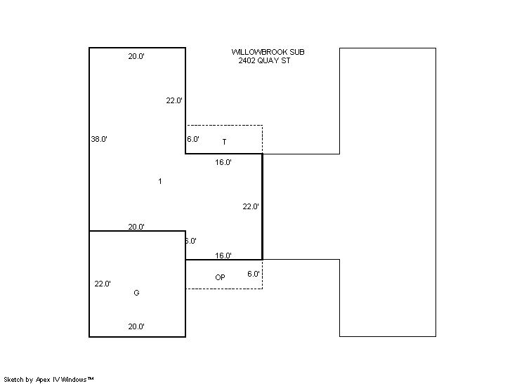
EVS WBTH L4B BLK15 WILLOWBROOK TOWNHOUSE MINOR RPLT

Subdivision Block Lot Land Economic Area
WILLOWBROOK SUB TWNHS MINOR RPLT L4,5 B15 15 4B WILLOWBROOK

Property Address Property City Section Township Range
2400 QUAY ST EVANS 25 05 66




Account Parcel Account Type Tax Year Buildings Actual Value Local Govt Assessed Value School Assessed Value
R1736302 095925129010 Residential 2026 1 300,906 18,810 21,210

Account Owner Name Address
R1736302 ROBBS JIMMIE 2400 QUAY ST EVANS, CO 806209580
R1736302 ROBBS CHRISTINA


Account Parcel Account Type Tax Year Buildings Actual Value Local Govt Assessed Value School Assessed Value
R1736302 095925129010 Residential 2026 1 300,906 18,810 21,210

Reception Rec Date Type Grantor Grantee Doc Fee Sale Date Sale Price
2970688 NA SUB SUBDIVISION WILLOWBROOK TOWNHOUSE MINOR RPLT LOTS 4&5 BLK 15 0.00 NA 0
3010228 12-02-2002 QCN SPACE LINE DESIGN CONSTRUCTION LLC NORDEN MARK S & ELIZABETH 0.00 11-21-2002 0
3136347 12-17-2003 QCN NORDEN MARK S & E & B PROPERTIES LLC 0.00 12-04-2003 0
3356127 01-19-2006 QCN E & B PROPERTIES LLC NORDEN MARK S & 0.00 01-19-2006 0
3485458 06-22-2007 QCN NORDEN MARK S & E B PROPERTIES LLC 0.00 06-20-2007 0
3675715 02-12-2010 PTD NORDEN MARK S GMAC MORTGAGE LLC 0.00 02-11-2010 0
3690379 04-30-2010 SWD GMAC MORTGAGE LLC SPOONER KENNETH R 9.05 04-02-2010 90,500
4295717 04-21-2017 WD SPOONER CONSTANCE R; SPOONER KENNETH R ROBBS JIMMIE 20.10 04-21-2017 201,000
4537524 11-01-2019 QCN ROBBS JIMMIE ROBBS CHRISTINA; ROBBS JIMMIE 0.00 10-23-2019 0



Account Parcel Account Type Tax Year Buildings Actual Value Local Govt Assessed Value School Assessed Value
R1736302 095925129010 Residential 2026 1 300,906 18,810 21,210

Building 1

AccountNo Building ID Occupancy
R1736302 1 Duplex


ID Type NBHD Occupancy % Complete Bedrooms Baths
1 Duplex 6E1062 Duplex 100 3 2.00


ID Exterior Roof Cover Interior HVAC Perimeter Units Unit Type Make
1 Frame Vinyl Composition Shingle Drywall Central Air to Air 0 0 End NA


ID Square Ft Condo SF Total Basement SF Finished Basement SF Garage SF Carport SF Balcony SF Porch SF
1 1,112 0 0 0 440 0 0 96


Built As Details for Building 1
ID Built As Square Ft Year Built Stories Length Width
1.00 Duplex One Story 1,112 2002 1 0 0


Additional Details for Building 1
ID Detail Type Description Units
1 Fixture Full Bath 2.00
1 Garage Attached 440.00
1 Porch Open Slab 96.00
1 Porch Slab Roof Ceil 96.00





Account Parcel Account Type Tax Year Buildings Actual Value Local Govt Assessed Value School Assessed Value
R1736302 095925129010 Residential 2026 1 300,906 18,810 21,210

Type Code Description Actual Value Local Govt Assessed Value School Assessed Value Acres Land SqFt
Improvement 1212 SINGLE FAMILY RESIDENTIAL IMPROVEMENTS 260,906 16,310 18,390 0.000 0
Land 1112 SINGLE FAMILY RESIDENTIAL-LAND 40,000 2,500 2,820 0.100 4,510
Totals - - 300,906 18,810 21,210 0.100 4,510


Account Parcel Account Type Tax Year Buildings Actual Value Local Govt Assessed Value School Assessed Value
R1736302 095925129010 Residential 2026 1 300,906 18,810 21,210

Tax Area District ID District Name Local Govt
Mill Levy
School
Mill Levy
Estimated
Taxes
0699 0700 AIMS JUNIOR COLLEGE 6.313 0.000 $118.75
0699 0305 CENTRAL WELD COUNTY WATER (CWC) 0.000 0.000 $0.00
0699 0405 EVANS CITY 3.536 0.000 $66.51
0699 0534 EVANS FIRE 15.500 0.000 $291.56
0699 1050 HIGH PLAINS LIBRARY 3.044 0.000 $57.26
0699 0301 NORTHERN COLORADO WATER (NCW) 1.000 0.000 $18.81
0699 0206 SCHOOL DIST 6-GREELEY 0.000 47.615 $1,009.91
0699 0100 WELD COUNTY 15.956 0.000 $300.13
0699 1200 WEST GREELEY CONSERVATION 0.414 0.000 $7.79
Total - - 45.763 47.615 $1,870.72


The estimate of tax is based on the prior year mill levy and the 2025 projected assessment rates. Mill levies and tax estimates will be updated yearly on December 22nd for the current year. Additional information can be found at https://assessor.weld.gov










Select Reports to Print: