Account: R1746702

April 1, 2026

Account Parcel Account Type Tax Year Buildings Actual Value Local Govt Assessed Value School Assessed Value
R1746702 080702205026 Residential 2026 1 432,921 27,060 30,520

Legal
SEV 1SV L26 BLK2 SUMMIT VIEW 1ST FG

Subdivision Block Lot Land Economic Area
SUMMIT VIEW SUB 1ST FG 2 26 SUMMIT VIEW

Property Address Property City Section Township Range
904 CAMERON DR SEVERANCE 02 06 67




Account Parcel Account Type Tax Year Buildings Actual Value Local Govt Assessed Value School Assessed Value
R1746702 080702205026 Residential 2026 1 432,921 27,060 30,520

Account Owner Name Address
R1746702 KARNES CHARLES ANTHONY SR 904 CAMERON DR SEVERANCE, CO 805502957
R1746702 KITZINGER-KARNES DIANNA LYNN


Account Parcel Account Type Tax Year Buildings Actual Value Local Govt Assessed Value School Assessed Value
R1746702 080702205026 Residential 2026 1 432,921 27,060 30,520

Reception Rec Date Type Grantor Grantee Doc Fee Sale Date Sale Price
2964730 NA SUB SUBDIVISION SUMMIT VIEW 1ST FG 0.00 NA 0
3017592 12-23-2002 WD SEVERANCE WEST LLC ASPEN HOMES OF COLORADO INC 4.10 12-17-2002 41,000
3049464 04-04-2003 WD ASPEN HOMES OF COLORADO INC FROHMAN ROBERT & SARITA B 20.64 03-28-2003 206,400
3445717 01-05-2007 QCN ASPEN HOMES OF COLORADO INC FROHMAN ROBERT & 0.00 12-17-2006 0
3619339 04-29-2009 DTHC FROHMAN SARITA B FROHMAN ROBERT 0.00 04-29-2009 0
4665554 12-28-2020 DTHC FROHMAN ROBERT FROHMAN BRUCE R 0.00 12-14-2020 0
4711511 05-04-2021 WD FROHMAN BRUCE R KARNES CHARLES ANTHONY SR; KITZINGER-KARNES DIANNA LYNN 34.25 04-29-2021 342,500



Account Parcel Account Type Tax Year Buildings Actual Value Local Govt Assessed Value School Assessed Value
R1746702 080702205026 Residential 2026 1 432,921 27,060 30,520

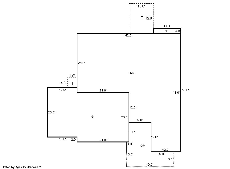
Building 1

AccountNo Building ID Occupancy
R1746702 1 Single Family Residential


ID Type NBHD Occupancy % Complete Bedrooms Baths
1 Residential 2S3051 Single Family Residential 100 3 2.00


ID Exterior Roof Cover Interior HVAC Perimeter Units Unit Type Make
1 Frame Siding Composition Shingle Drywall Central Air to Air 0 0 NA NA


ID Square Ft Condo SF Total Basement SF Finished Basement SF Garage SF Carport SF Balcony SF Porch SF
1 1,426 0 1,404 0 660 0 0 136


Built As Details for Building 1
ID Built As Square Ft Year Built Stories Length Width
1.00 Ranch 1 Story 1,426 2002 1 0 0


Additional Details for Building 1
ID Detail Type Description Units
1 Basement Total Basement SF 1404.00
1 Fixture Full Bath 2.00
1 Garage Attached 660.00
1 Porch Open Slab 136.00
1 Porch Slab Roof Ceil 226.00
1 Rough In Rough In 1.00





Account Parcel Account Type Tax Year Buildings Actual Value Local Govt Assessed Value School Assessed Value
R1746702 080702205026 Residential 2026 1 432,921 27,060 30,520

Type Code Description Actual Value Local Govt Assessed Value School Assessed Value Acres Land SqFt
Improvement 1212 SINGLE FAMILY RESIDENTIAL IMPROVEMENTS 346,921 21,680 24,460 0.000 0
Land 1112 SINGLE FAMILY RESIDENTIAL-LAND 86,000 5,380 6,060 0.247 10,747
Totals - - 432,921 27,060 30,520 0.247 10,747


Account Parcel Account Type Tax Year Buildings Actual Value Local Govt Assessed Value School Assessed Value
R1746702 080702205026 Residential 2026 1 432,921 27,060 30,520

Tax Area District ID District Name Local Govt
Mill Levy
School
Mill Levy
Estimated
Taxes
0434 0700 AIMS JUNIOR COLLEGE 6.313 0.000 $170.83
0434 1051 CLEARVIEW LIBRARY 3.546 0.000 $95.95
0434 0304 NORTH WELD COUNTY WATER (NWC) 0.000 0.000 $0.00
0434 0301 NORTHERN COLORADO WATER (NCW) 1.000 0.000 $27.06
0434 0204 SCHOOL DIST RE4-WINDSOR 0.000 46.646 $1,423.64
0434 0427 SEVERANCE TOWN 12.635 0.000 $341.90
0434 0100 WELD COUNTY 15.956 0.000 $431.77
0434 1200 WEST GREELEY CONSERVATION 0.414 0.000 $11.20
0434 0521 WINDSOR-SEVERANCE FIRE 8.535 0.000 $230.96
Total - - 48.399 46.646 $2,733.31


The estimate of tax is based on the prior year mill levy and the 2025 projected assessment rates. Mill levies and tax estimates will be updated yearly on December 22nd for the current year. Additional information can be found at https://assessor.weld.gov










Select Reports to Print: