Account: R1747186
April 1, 2026
| Account | Parcel | Account Type | Tax Year | Buildings | Actual Value | Local Govt Assessed Value | School Assessed Value |
|---|---|---|---|---|---|---|---|
| R1747186 | 095901318014 | Residential | 2026 | 2 | 512,832 | 32,050 | 36,160 |
| Legal |
|---|
| GR 17336A PT L10 MTN VIEW ACRES BEG AT A PT ON SELY LN L10 A DISTANCE OF 95.5' NELY FROM SE COR THEREOF THENCE NELY TO NE COR OF L10 THENCE NWLY ALONG NLY LN OF L10 TO NW COR OF L10 THENCE SELY ON WLY LN OF L10 A DISTANCE OF 75' THENCE ELY IN STRAIGHT LN TO ELY LN OF L10 TO POB |
| Subdivision | Block | Lot | Land Economic Area |
|---|---|---|---|
| MOUNTAIN VIEW ACRES | 10 | MOUNTAIN VIEW ACRES |
| Property Address | Property City | Section | Township | Range |
|---|---|---|---|---|
| 3045 W 8TH ST | GREELEY | 01 | 05 | 66 |
| Account | Parcel | Account Type | Tax Year | Buildings | Actual Value | Local Govt Assessed Value | School Assessed Value |
|---|---|---|---|---|---|---|---|
| R1747186 | 095901318014 | Residential | 2026 | 2 | 512,832 | 32,050 | 36,160 |
| Account | Owner Name | Address |
|---|---|---|
| R1747186 | 814 30TH AVENUE GREELEY LLC | 801 31ST AVE GREELEY, CO 806345127 |
| Account | Parcel | Account Type | Tax Year | Buildings | Actual Value | Local Govt Assessed Value | School Assessed Value |
|---|---|---|---|---|---|---|---|
| R1747186 | 095901318014 | Residential | 2026 | 2 | 512,832 | 32,050 | 36,160 |
| Reception | Rec Date | Type | Grantor | Grantee | Doc Fee | Sale Date | Sale Price |
|---|---|---|---|---|---|---|---|
| 01859489 | 06-02-1981 | WDN | 0.00 | 01-01-1900 | 0 | ||
| 4062537 | 11-19-2014 | WD | LOBMEYER DIANNE A; LOBMEYER LAWRENCE D | 814 30TH AVENUE GREELEY LLC | 21.00 | 11-17-2014 | 210,000 |
| 987855 | NA | SUB | SUBDIVISION | MOUNTAIN VIEW ACRES | 0.00 | NA | 0 |
*If the hyperlink for the reception number does not work, try a manual search in the Clerk and Recorder records. Use the Grantor or Grantee in your search.
| Account | Parcel | Account Type | Tax Year | Buildings | Actual Value | Local Govt Assessed Value | School Assessed Value |
|---|---|---|---|---|---|---|---|
| R1747186 | 095901318014 | Residential | 2026 | 2 | 512,832 | 32,050 | 36,160 |
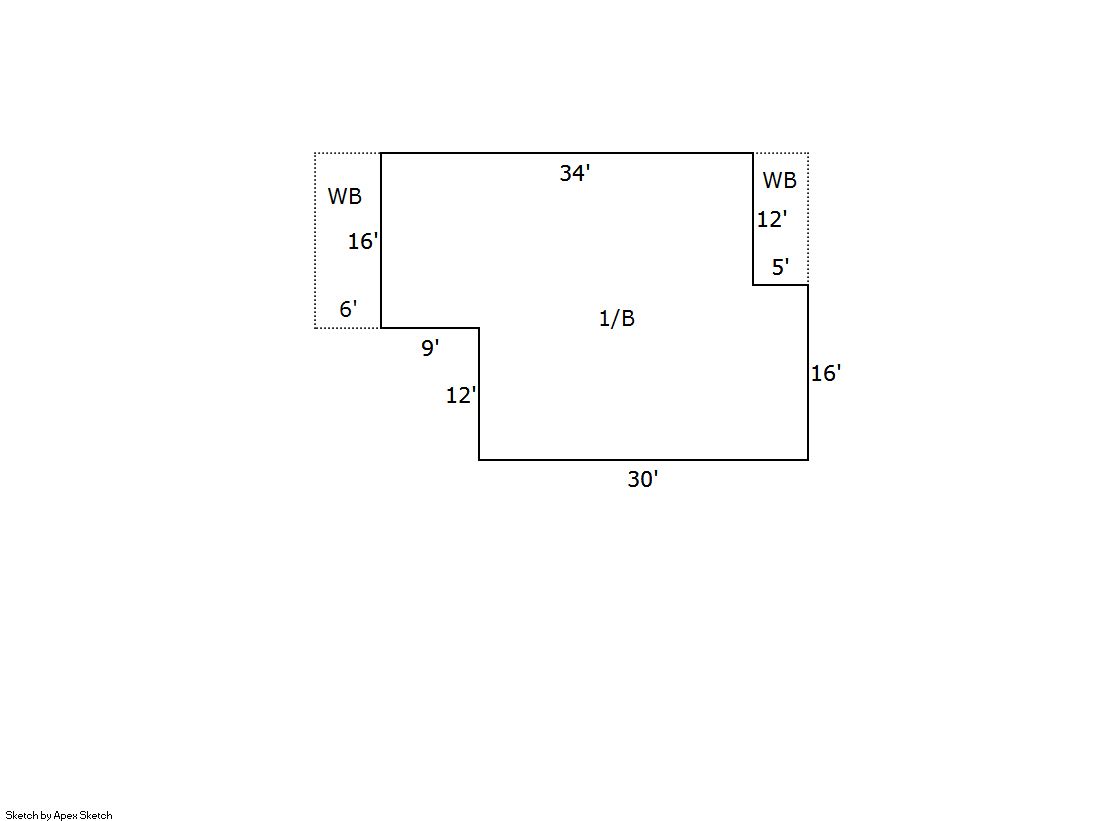
Building 1
| AccountNo | Building ID | Occupancy |
|---|---|---|
| R1747186 | 1 | Secondary Single Family Res |
| ID | Type | NBHD | Occupancy | % Complete | Bedrooms | Baths |
|---|---|---|---|---|---|---|
| 1 | Residential | 6G1038 | Secondary Single Family Res | 100 | 2 | 1.00 |
| ID | Exterior | Roof Cover | Interior | HVAC | Perimeter | Units | Unit Type | Make |
|---|---|---|---|---|---|---|---|---|
| 1 | Frame Siding | Composition Shingle | Drywall | Forced Air | 112 | 0 | NA | NA |
| ID | Square Ft | Condo SF | Total Basement SF | Finished Basement SF | Garage SF | Carport SF | Balcony SF | Porch SF |
|---|---|---|---|---|---|---|---|---|
| 1 | 768 | 0 | 0 | 0 | 308 | 0 | 0 | 24 |
| ID | Built As | Square Ft | Year Built | Stories | Length | Width |
|---|---|---|---|---|---|---|
| 1.00 | Ranch 1 Story | 768 | 1954 | 1 | 0 | 0 |
| ID | Detail Type | Description | Units |
|---|---|---|---|
| 1 | Fixture | Full Bath | 1.00 |
| 1 | Garage | Detached | 308.00 |
| 1 | Porch | Open Slab | 144.00 |
| 1 | Porch | Slab Roof Ceil | 24.00 |
Building 2
| AccountNo | Building ID | Occupancy |
|---|---|---|
| R1747186 | 2 | Single Family Residential |
| ID | Type | NBHD | Occupancy | % Complete | Bedrooms | Baths |
|---|---|---|---|---|---|---|
| 2 | Residential | 6G1038 | Single Family Residential | 100 | 2 | 1.00 |
| ID | Exterior | Roof Cover | Interior | HVAC | Perimeter | Units | Unit Type | Make |
|---|---|---|---|---|---|---|---|---|
| 2 | Frame Hardboard | Composition Shingle | Drywall | Forced Air | 134 | 0 | NA | NA |
| ID | Square Ft | Condo SF | Total Basement SF | Finished Basement SF | Garage SF | Carport SF | Balcony SF | Porch SF |
|---|---|---|---|---|---|---|---|---|
| 2 | 924 | 0 | 924 | 0 | 0 | 0 | 156 | 0 |
| ID | Built As | Square Ft | Year Built | Stories | Length | Width |
|---|---|---|---|---|---|---|
| 2.00 | Ranch 1 Story | 924 | 1946 | 1 | 0 | 0 |
| ID | Detail Type | Description | Units |
|---|---|---|---|
| 2 | Balcony | Wood Wood Fin | 156.00 |
| 2 | Basement | Total Basement SF | 924.00 |
| 2 | Fixture | Full Bath | 1.00 |
| 2 | Rough In | Rough In | 2.00 |
| Account | Parcel | Account Type | Tax Year | Buildings | Actual Value | Local Govt Assessed Value | School Assessed Value |
|---|---|---|---|---|---|---|---|
| R1747186 | 095901318014 | Residential | 2026 | 2 | 512,832 | 32,050 | 36,160 |
| Type | Code | Description | Actual Value | Local Govt Assessed Value | School Assessed Value | Acres | Land SqFt |
|---|---|---|---|---|---|---|---|
| Improvement | 1212 | SINGLE FAMILY RESIDENTIAL IMPROVEMENTS | 428,460 | 26,780 | 30,210 | 0.000 | 0 |
| Land | 1112 | SINGLE FAMILY RESIDENTIAL-LAND | 84,372 | 5,270 | 5,950 | 0.323 | 14,062 |
| Totals | - | - | 512,832 | 32,050 | 36,160 | 0.323 | 14,062 |
Comparable sales for your Residential or Commercial property may be found using our SALES SEARCH TOOL
Values are updated annually on May 1st for Real Property and June 15th for Personal Property and Oil and Gas.
| Account | Parcel | Account Type | Tax Year | Buildings | Actual Value | Local Govt Assessed Value | School Assessed Value |
|---|---|---|---|---|---|---|---|
| R1747186 | 095901318014 | Residential | 2026 | 2 | 512,832 | 32,050 | 36,160 |
| Tax Area | District ID | District Name | Local Govt Mill Levy |
School Mill Levy |
Estimated Taxes |
|---|---|---|---|---|---|
| 0600 | 0700 | AIMS JUNIOR COLLEGE | 6.313 | 0.000 | $202.33 |
| 0600 | 0411 | GREELEY CITY | 11.274 | 0.000 | $361.33 |
| 0600 | 1050 | HIGH PLAINS LIBRARY | 3.044 | 0.000 | $97.56 |
| 0600 | 0301 | NORTHERN COLORADO WATER (NCW) | 1.000 | 0.000 | $32.05 |
| 0600 | 0206 | SCHOOL DIST 6-GREELEY | 0.000 | 47.615 | $1,721.76 |
| 0600 | 0100 | WELD COUNTY | 15.956 | 0.000 | $511.39 |
| Total | - | - | 37.587 | 47.615 | $2,926.42 |
The estimate of tax is based on the prior year mill levy and the 2025 projected assessment rates. Mill levies and tax estimates will be updated yearly on December 22nd for the current year. Additional information can be found at https://assessor.weld.gov


