Account: R1748702
April 1, 2026
| Account | Parcel | Account Type | Tax Year | Buildings | Actual Value | Local Govt Assessed Value | School Assessed Value |
|---|---|---|---|---|---|---|---|
| R1748702 | 080702207006 | Residential | 2026 | 1 | 431,467 | 26,970 | 30,420 |
| Legal |
|---|
| SEV 1SV L6 BLK4 SUMMIT VIEW 1ST FG |
| Subdivision | Block | Lot | Land Economic Area |
|---|---|---|---|
| SUMMIT VIEW SUB 1ST FG | 4 | 6 | SUMMIT VIEW |
| Property Address | Property City | Section | Township | Range |
|---|---|---|---|---|
| 901 SCOTCH PINE DR | SEVERANCE | 02 | 06 | 67 |
| Account | Parcel | Account Type | Tax Year | Buildings | Actual Value | Local Govt Assessed Value | School Assessed Value |
|---|---|---|---|---|---|---|---|
| R1748702 | 080702207006 | Residential | 2026 | 1 | 431,467 | 26,970 | 30,420 |
| Account | Owner Name | Address |
|---|---|---|
| R1748702 | DRESCHER ERICK W | 229 N CHIMNEY PARK DR WINDSOR, CO 805505045 |
| Account | Parcel | Account Type | Tax Year | Buildings | Actual Value | Local Govt Assessed Value | School Assessed Value |
|---|---|---|---|---|---|---|---|
| R1748702 | 080702207006 | Residential | 2026 | 1 | 431,467 | 26,970 | 30,420 |
| Reception | Rec Date | Type | Grantor | Grantee | Doc Fee | Sale Date | Sale Price |
|---|---|---|---|---|---|---|---|
| 2964730 | NA | SUB | SUBDIVISION | SUMMIT VIEW 1ST FG | 0.00 | NA | 0 |
| 3111921 | 10-01-2003 | WD | SEVERANCE WEST LLC | SCHMIDT STEVE M & FOUTCH TRISH M | 4.10 | 09-23-2003 | 41,000 |
| 3286976 | 05-18-2005 | QCN | SCHMIDT STEVE M & | SCHMIDT STEVE M & | 0.00 | 05-09-2005 | 0 |
| 3625844 | 05-28-2009 | QCN | SCHMIDT STEVE M | SCHMIDT STEVE M | 0.00 | 05-18-2009 | 0 |
| 3780674 | 07-18-2011 | WD | SCHMIDT STEVE M | DRESCHER ERICK W | 19.52 | 07-13-2011 | 195,200 |
*If the hyperlink for the reception number does not work, try a manual search in the Clerk and Recorder records. Use the Grantor or Grantee in your search.
| Account | Parcel | Account Type | Tax Year | Buildings | Actual Value | Local Govt Assessed Value | School Assessed Value |
|---|---|---|---|---|---|---|---|
| R1748702 | 080702207006 | Residential | 2026 | 1 | 431,467 | 26,970 | 30,420 |
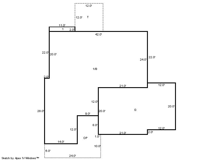
Building 1
| AccountNo | Building ID | Occupancy |
|---|---|---|
| R1748702 | 1 | Single Family Residential |
| ID | Type | NBHD | Occupancy | % Complete | Bedrooms | Baths |
|---|---|---|---|---|---|---|
| 1 | Residential | 2S3051 | Single Family Residential | 100 | 3 | 2.00 |
| ID | Exterior | Roof Cover | Interior | HVAC | Perimeter | Units | Unit Type | Make |
|---|---|---|---|---|---|---|---|---|
| 1 | Frame Siding | Composition Shingle | Drywall | Forced Air | 0 | 0 | NA | NA |
| ID | Square Ft | Condo SF | Total Basement SF | Finished Basement SF | Garage SF | Carport SF | Balcony SF | Porch SF |
|---|---|---|---|---|---|---|---|---|
| 1 | 1,482 | 0 | 1,460 | 0 | 660 | 0 | 0 | 144 |
| ID | Built As | Square Ft | Year Built | Stories | Length | Width |
|---|---|---|---|---|---|---|
| 1.00 | Ranch 1 Story | 1,482 | 2003 | 1 | 0 | 0 |
| ID | Detail Type | Description | Units |
|---|---|---|---|
| 1 | Basement | Total Basement SF | 1460.00 |
| 1 | Fixture | Full Bath | 2.00 |
| 1 | Garage | Attached | 660.00 |
| 1 | Porch | Open Slab | 144.00 |
| 1 | Porch | Slab Roof Ceil | 256.00 |
| 1 | Rough In | Rough In | 1.00 |
| Account | Parcel | Account Type | Tax Year | Buildings | Actual Value | Local Govt Assessed Value | School Assessed Value |
|---|---|---|---|---|---|---|---|
| R1748702 | 080702207006 | Residential | 2026 | 1 | 431,467 | 26,970 | 30,420 |
| Type | Code | Description | Actual Value | Local Govt Assessed Value | School Assessed Value | Acres | Land SqFt |
|---|---|---|---|---|---|---|---|
| Improvement | 1212 | SINGLE FAMILY RESIDENTIAL IMPROVEMENTS | 345,467 | 21,590 | 24,360 | 0.000 | 0 |
| Land | 1112 | SINGLE FAMILY RESIDENTIAL-LAND | 86,000 | 5,380 | 6,060 | 0.209 | 9,122 |
| Totals | - | - | 431,467 | 26,970 | 30,420 | 0.209 | 9,122 |
Comparable sales for your Residential or Commercial property may be found using our SALES SEARCH TOOL
Values are updated annually on May 1st for Real Property and June 15th for Personal Property and Oil and Gas.
| Account | Parcel | Account Type | Tax Year | Buildings | Actual Value | Local Govt Assessed Value | School Assessed Value |
|---|---|---|---|---|---|---|---|
| R1748702 | 080702207006 | Residential | 2026 | 1 | 431,467 | 26,970 | 30,420 |
| Tax Area | District ID | District Name | Local Govt Mill Levy |
School Mill Levy |
Estimated Taxes |
|---|---|---|---|---|---|
| 0434 | 0700 | AIMS JUNIOR COLLEGE | 6.313 | 0.000 | $170.26 |
| 0434 | 1051 | CLEARVIEW LIBRARY | 3.546 | 0.000 | $95.64 |
| 0434 | 0304 | NORTH WELD COUNTY WATER (NWC) | 0.000 | 0.000 | $0.00 |
| 0434 | 0301 | NORTHERN COLORADO WATER (NCW) | 1.000 | 0.000 | $26.97 |
| 0434 | 0204 | SCHOOL DIST RE4-WINDSOR | 0.000 | 46.646 | $1,418.97 |
| 0434 | 0427 | SEVERANCE TOWN | 12.635 | 0.000 | $340.77 |
| 0434 | 0100 | WELD COUNTY | 15.956 | 0.000 | $430.33 |
| 0434 | 1200 | WEST GREELEY CONSERVATION | 0.414 | 0.000 | $11.17 |
| 0434 | 0521 | WINDSOR-SEVERANCE FIRE | 8.535 | 0.000 | $230.19 |
| Total | - | - | 48.399 | 46.646 | $2,724.29 |
The estimate of tax is based on the prior year mill levy and the 2025 projected assessment rates. Mill levies and tax estimates will be updated yearly on December 22nd for the current year. Additional information can be found at https://assessor.weld.gov



