Account: R1749402

April 5, 2026

Account Parcel Account Type Tax Year Buildings Actual Value Local Govt Assessed Value School Assessed Value
R1749402 080702207013 Residential 2026 1 427,729 26,740 30,150

Legal
SEV 1SV L13 BLK4 SUMMIT VIEW 1ST FG

Subdivision Block Lot Land Economic Area
SUMMIT VIEW SUB 1ST FG 4 13 SUMMIT VIEW

Property Address Property City Section Township Range
803 SCOTCH PINE DR SEVERANCE 02 06 67




Account Parcel Account Type Tax Year Buildings Actual Value Local Govt Assessed Value School Assessed Value
R1749402 080702207013 Residential 2026 1 427,729 26,740 30,150

Account Owner Name Address
R1749402 NAFFZIGER MARTIN L 803 SCOTCH PINE DR SEVERANCE, CO 805502952
R1749402 NAFFZIGER CATHERINE E


Account Parcel Account Type Tax Year Buildings Actual Value Local Govt Assessed Value School Assessed Value
R1749402 080702207013 Residential 2026 1 427,729 26,740 30,150

Reception Rec Date Type Grantor Grantee Doc Fee Sale Date Sale Price
2964730 NA SUB SUBDIVISION SUMMIT VIEW 1ST FG 0.00 NA 0
3109554 09-24-2003 WD SEVERANCE WEST LLC COUCH REBECCA M 4.10 09-04-2003 41,000
3470409 04-20-2007 WD COUCH REBECCA M NAFFZIGER MARTIN L & 20.00 04-17-2007 200,000



Account Parcel Account Type Tax Year Buildings Actual Value Local Govt Assessed Value School Assessed Value
R1749402 080702207013 Residential 2026 1 427,729 26,740 30,150

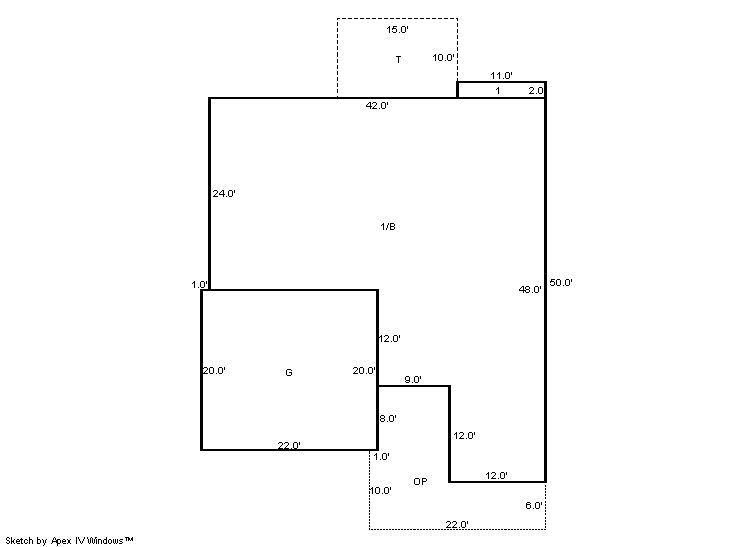
Building 1

AccountNo Building ID Occupancy
R1749402 1 Single Family Residential


ID Type NBHD Occupancy % Complete Bedrooms Baths
1 Residential 2S3051 Single Family Residential 100 3 2.00


ID Exterior Roof Cover Interior HVAC Perimeter Units Unit Type Make
1 Frame Siding Composition Shingle Drywall Central Air to Air 0 0 NA NA


ID Square Ft Condo SF Total Basement SF Finished Basement SF Garage SF Carport SF Balcony SF Porch SF
1 1,426 0 1,404 0 440 0 0 150


Built As Details for Building 1
ID Built As Square Ft Year Built Stories Length Width
1.00 Ranch 1 Story 1,426 2003 1 0 0


Additional Details for Building 1
ID Detail Type Description Units
1 Basement Total Basement SF 1404.00
1 Fixture Full Bath 2.00
1 Garage Attached 440.00
1 Porch Open Slab 150.00
1 Porch Slab Roof Ceil 244.00
1 Rough In Rough In 1.00





Account Parcel Account Type Tax Year Buildings Actual Value Local Govt Assessed Value School Assessed Value
R1749402 080702207013 Residential 2026 1 427,729 26,740 30,150

Type Code Description Actual Value Local Govt Assessed Value School Assessed Value Acres Land SqFt
Improvement 1212 SINGLE FAMILY RESIDENTIAL IMPROVEMENTS 341,729 21,360 24,090 0.000 0
Land 1112 SINGLE FAMILY RESIDENTIAL-LAND 86,000 5,380 6,060 0.213 9,289
Totals - - 427,729 26,740 30,150 0.213 9,289


Account Parcel Account Type Tax Year Buildings Actual Value Local Govt Assessed Value School Assessed Value
R1749402 080702207013 Residential 2026 1 427,729 26,740 30,150

Tax Area District ID District Name Local Govt
Mill Levy
School
Mill Levy
Estimated
Taxes
0434 0700 AIMS JUNIOR COLLEGE 6.313 0.000 $168.81
0434 1051 CLEARVIEW LIBRARY 3.546 0.000 $94.82
0434 0304 NORTH WELD COUNTY WATER (NWC) 0.000 0.000 $0.00
0434 0301 NORTHERN COLORADO WATER (NCW) 1.000 0.000 $26.74
0434 0204 SCHOOL DIST RE4-WINDSOR 0.000 46.646 $1,406.38
0434 0427 SEVERANCE TOWN 12.635 0.000 $337.86
0434 0100 WELD COUNTY 15.956 0.000 $426.66
0434 1200 WEST GREELEY CONSERVATION 0.414 0.000 $11.07
0434 0521 WINDSOR-SEVERANCE FIRE 8.535 0.000 $228.23
Total - - 48.399 46.646 $2,700.57


The estimate of tax is based on the prior year mill levy and the 2025 projected assessment rates. Mill levies and tax estimates will be updated yearly on December 22nd for the current year. Additional information can be found at https://assessor.weld.gov










Select Reports to Print: