Account: R1749786

April 5, 2026

Account Parcel Account Type Tax Year Buildings Actual Value Local Govt Assessed Value School Assessed Value
R1749786 095901319010 Residential 2026 1 391,865 24,490 27,630

Legal
GR 17326-A E2 L3 EXC S70' MTN VIEW ACRES

Subdivision Block Lot Land Economic Area
MOUNTAIN VIEW ACRES 3 MOUNTAIN VIEW ACRES

Property Address Property City Section Township Range
817 30TH AVENUE PL GREELEY 01 05 66




Account Parcel Account Type Tax Year Buildings Actual Value Local Govt Assessed Value School Assessed Value
R1749786 095901319010 Residential 2026 1 391,865 24,490 27,630

Account Owner Name Address
R1749786 CLARK DEREK R 817 30TH AVENUE PL GREELEY, CO 806345188


Account Parcel Account Type Tax Year Buildings Actual Value Local Govt Assessed Value School Assessed Value
R1749786 095901319010 Residential 2026 1 391,865 24,490 27,630

Reception Rec Date Type Grantor Grantee Doc Fee Sale Date Sale Price
02121146 11-13-1987 WDN 0.00 11-09-1987 0
2588694 01-09-1998 DTHC WHETHAM JOHN R & TILLIE L WHETHAM TILLIE L 0.00 01-01-1900 0
2657249 12-02-1998 WD WHETHAM TILLIE L WALKER MICHAEL D 10.20 11-30-1998 102,000
2972901 07-30-2002 WD WALKER MICHAEL D MILLER RUTH 13.59 07-26-2002 135,900
3656939 11-02-2009 PTD MILLER RUTH FEDERAL NATIONAL MORTGAGE ASSOCIATION 0.00 10-30-2009 0
3691241 05-04-2010 SWD FEDERAL NATIONAL MORTGAGE ASSOCIATION KIFER ROGER M 7.35 04-23-2010 73,500
3885198 10-31-2012 QCN RRK LP KIFER ROGER 0.00 10-10-2012 0
4002808 03-18-2014 QCN KIFER ROGER M 817 38TH STREET LLC 0.00 03-04-2014 0
4028846 07-08-2014 WD 817 30TH STREET LLC HENG NANCY M 14.59 07-07-2014 145,900
4042094 08-29-2014 QCN HENG NANCY M HENG NANCY M 0.00 08-11-2014 0
4202166 05-10-2016 WD HENG NANCY M PAZ PATRICIA A; PAZ TASHA A 18.75 05-09-2016 187,500
4627755 09-08-2020 SWD PAZ PATRICIA A; PAZ TASHA A CLARK DEREK R 27.30 09-04-2020 273,000
987855 NA SUB SUBDIVISION MOUNTAIN VIEW ACRES 0.00 NA 0



Account Parcel Account Type Tax Year Buildings Actual Value Local Govt Assessed Value School Assessed Value
R1749786 095901319010 Residential 2026 1 391,865 24,490 27,630

Building 1

AccountNo Building ID Occupancy
R1749786 1 Single Family Residential


ID Type NBHD Occupancy % Complete Bedrooms Baths
1 Residential 6G1038 Single Family Residential 100 5 3.00


ID Exterior Roof Cover Interior HVAC Perimeter Units Unit Type Make
1 Frame Hardboard Composition Shingle Drywall Forced Air 0 2 NA NA


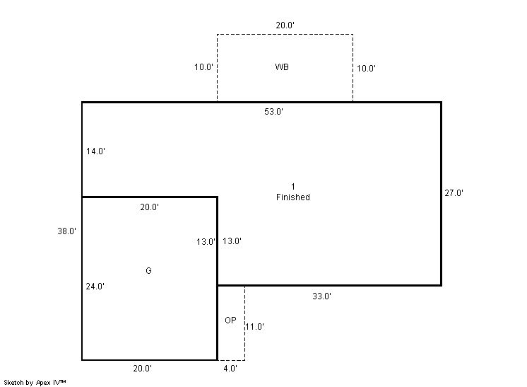
ID Square Ft Condo SF Total Basement SF Finished Basement SF Garage SF Carport SF Balcony SF Porch SF
1 1,171 0 1,171 1,171 480 0 200 44


Built As Details for Building 1
ID Built As Square Ft Year Built Stories Length Width
1.00 Ranch 1 Story 1,171 1976 1 0 0


Additional Details for Building 1
ID Detail Type Description Units
1 Balcony Wood Wood Fin 200.00
1 Basement Finished 1171.00
1 Basement Outside Entrance 1.00
1 Basement Total Basement SF 1171.00
1 Fixture Full Bath 2.00
1 Fixture Half Bath 1.00
1 Garage Attached 480.00
1 Porch Slab Roof Ceil 44.00





Account Parcel Account Type Tax Year Buildings Actual Value Local Govt Assessed Value School Assessed Value
R1749786 095901319010 Residential 2026 1 391,865 24,490 27,630

Type Code Description Actual Value Local Govt Assessed Value School Assessed Value Acres Land SqFt
Improvement 1215 DUP/TRIPLEX IMPROVEMENTS 355,595 22,220 25,070 0.000 0
Land 1115 DUP/TRIPLEX LAND 36,270 2,270 2,560 0.139 6,045
Totals - - 391,865 24,490 27,630 0.139 6,045


Account Parcel Account Type Tax Year Buildings Actual Value Local Govt Assessed Value School Assessed Value
R1749786 095901319010 Residential 2026 1 391,865 24,490 27,630

Tax Area District ID District Name Local Govt
Mill Levy
School
Mill Levy
Estimated
Taxes
0600 0700 AIMS JUNIOR COLLEGE 6.313 0.000 $154.61
0600 0411 GREELEY CITY 11.274 0.000 $276.10
0600 1050 HIGH PLAINS LIBRARY 3.044 0.000 $74.55
0600 0301 NORTHERN COLORADO WATER (NCW) 1.000 0.000 $24.49
0600 0206 SCHOOL DIST 6-GREELEY 0.000 47.615 $1,315.60
0600 0100 WELD COUNTY 15.956 0.000 $390.76
Total - - 37.587 47.615 $2,236.11


The estimate of tax is based on the prior year mill levy and the 2025 projected assessment rates. Mill levies and tax estimates will be updated yearly on December 22nd for the current year. Additional information can be found at https://assessor.weld.gov










Select Reports to Print: