Account: R1778186

April 1, 2026

Account Parcel Account Type Tax Year Buildings Actual Value Local Govt Assessed Value School Assessed Value
R1778186 095901414019 Residential 2026 1 356,353 22,270 25,130

Legal
GR 4BV7-3 L3 BLK7 4TH BROADVIEW AC

Subdivision Block Lot Land Economic Area
BROADVIEW ACRES 4TH ADD 7 3 EAST OF 35TH AVE AND SOUTH OF 4TH ST

Property Address Property City Section Township Range
2712 W 6TH ST GREELEY 01 05 66




Account Parcel Account Type Tax Year Buildings Actual Value Local Govt Assessed Value School Assessed Value
R1778186 095901414019 Residential 2026 1 356,353 22,270 25,130

Account Owner Name Address
R1778186 CRUZ DANIEL VILLASENOR 2712 W 6TH ST GREELEY, CO 806342611
R1778186 ALVAREZ ELVIRA RODRIGUEZ
R1778186 RODRIGUEZ DANIELA ALEJANDRA VILLASENOR
R1778186 RODRIGUEZ JOSE MAURO VILLASENOR
R1778186 VILLASENOR IVAN
R1778186 VILLASENOR SANDRA GUADALUPE


Account Parcel Account Type Tax Year Buildings Actual Value Local Govt Assessed Value School Assessed Value
R1778186 095901414019 Residential 2026 1 356,353 22,270 25,130

Reception Rec Date Type Grantor Grantee Doc Fee Sale Date Sale Price
01949203 12-06-1983 WDN 0.00 01-01-1900 0
1408412 NA SUB SUBDIVISION BROADVIEW ACRES 4TH ADD 0.00 NA 0
2808917 11-27-2000 DTHC SIMPSON SAMUEL S SIMPSON TERESA A 0.00 10-14-1995 0
2808919 11-27-2000 WD SIMPSON TERESA A TREVINO LISA M 11.45 11-10-2000 114,500
3324147 09-19-2005 QCN TREVINO LISA M TREVINO LISA M & 0.00 08-26-2005 0
3345274 12-07-2005 WD TREVINO LISA M & HERRERA GUADALUPE & 14.75 11-18-2005 147,500
3750572 02-15-2011 PTD PALACIOS CECILIA SECRETARY OF HOUSING AND URBAN DEVELOPMENT 0.00 02-14-2011 0
3769101 05-18-2011 SWD SECRETARY OF HOUSING AND URBAN DEVELOPMENT FALLS SARA R 8.24 05-17-2011 82,400
3909477 02-12-2013 QCN ZELLER MICHAEL B FALLS SARA 0.00 02-09-2013 0
3951132 07-26-2013 WD FALLS SARA SNYDER SHANTAY D 12.89 07-26-2013 128,900
4519573 09-03-2019 WD MARCOS MARCEL R; SNYDER SHANTAY D DAVISSON FAITH M 28.00 08-30-2019 280,000
4884139 03-01-2023 SWD DAVISSON FAITH M CRUZ DANIEL VILLASENOR 36.50 02-27-2023 365,000
4897020 05-08-2023 WDN CRUZ DANIEL VILLASENOR ALVAREZ ELVIRA RODRIGUEZ; RODRIGUEZ JOSE MAURO VILLASENOR; RODRIGUEZ DANI et al. 0.00 05-06-2023 0
X0004348 12-06-1983 WD WRIGHT RUSSELL D SIMPSON SAMUEL S & TERESA A 5.35 12-06-1983 53,500



Account Parcel Account Type Tax Year Buildings Actual Value Local Govt Assessed Value School Assessed Value
R1778186 095901414019 Residential 2026 1 356,353 22,270 25,130

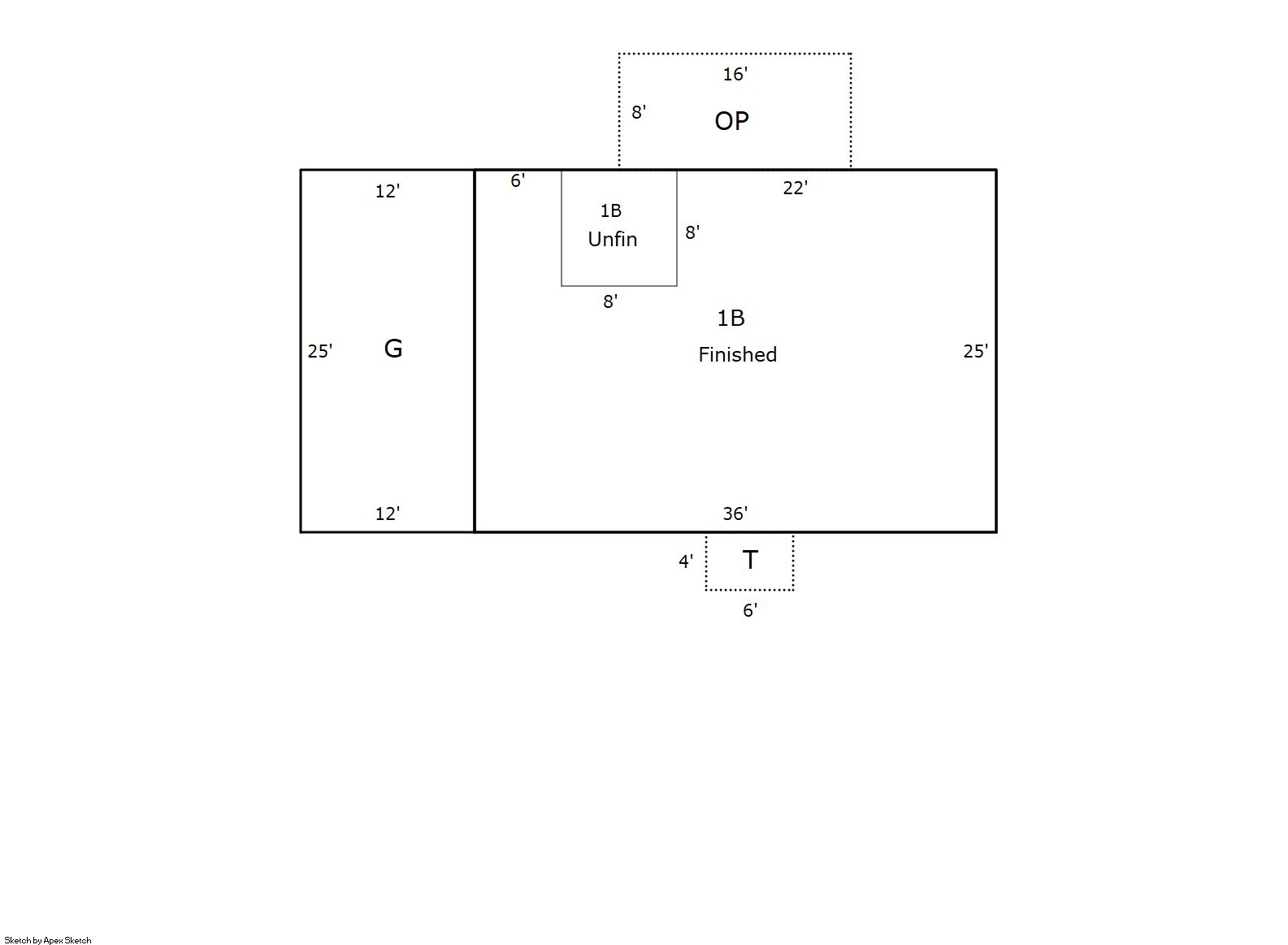
Building 1

AccountNo Building ID Occupancy
R1778186 1 Single Family Residential


ID Type NBHD Occupancy % Complete Bedrooms Baths
1 Residential 6G1038 Single Family Residential 100 5 2.00


ID Exterior Roof Cover Interior HVAC Perimeter Units Unit Type Make
1 Frame Masonry Veneer Composition Shingle Drywall Central Air to Air 122 0 NA NA


ID Square Ft Condo SF Total Basement SF Finished Basement SF Garage SF Carport SF Balcony SF Porch SF
1 900 0 900 836 300 0 0 128


Built As Details for Building 1
ID Built As Square Ft Year Built Stories Length Width
1.00 Ranch 1 Story 900 1964 1 0 0


Additional Details for Building 1
ID Detail Type Description Units
1 Add On Shed Frame 216.00
1 Basement Finished 836.00
1 Basement Total Basement SF 900.00
1 Fixture Full Bath 2.00
1 Garage Attached 300.00
1 Porch Open Slab 24.00
1 Porch Slab Roof Ceil 128.00





Account Parcel Account Type Tax Year Buildings Actual Value Local Govt Assessed Value School Assessed Value
R1778186 095901414019 Residential 2026 1 356,353 22,270 25,130

Type Code Description Actual Value Local Govt Assessed Value School Assessed Value Acres Land SqFt
Improvement 1212 SINGLE FAMILY RESIDENTIAL IMPROVEMENTS 305,353 19,080 21,530 0.000 0
Land 1112 SINGLE FAMILY RESIDENTIAL-LAND 51,000 3,190 3,600 0.210 9,150
Totals - - 356,353 22,270 25,130 0.210 9,150


Account Parcel Account Type Tax Year Buildings Actual Value Local Govt Assessed Value School Assessed Value
R1778186 095901414019 Residential 2026 1 356,353 22,270 25,130

Tax Area District ID District Name Local Govt
Mill Levy
School
Mill Levy
Estimated
Taxes
0600 0700 AIMS JUNIOR COLLEGE 6.313 0.000 $140.59
0600 0411 GREELEY CITY 11.274 0.000 $251.07
0600 1050 HIGH PLAINS LIBRARY 3.044 0.000 $67.79
0600 0301 NORTHERN COLORADO WATER (NCW) 1.000 0.000 $22.27
0600 0206 SCHOOL DIST 6-GREELEY 0.000 47.615 $1,196.56
0600 0100 WELD COUNTY 15.956 0.000 $355.34
Total - - 37.587 47.615 $2,033.63


The estimate of tax is based on the prior year mill levy and the 2025 projected assessment rates. Mill levies and tax estimates will be updated yearly on December 22nd for the current year. Additional information can be found at https://assessor.weld.gov










Select Reports to Print: