Account: R1802802
April 1, 2026
| Account | Parcel | Account Type | Tax Year | Buildings | Actual Value | Local Govt Assessed Value | School Assessed Value |
|---|---|---|---|---|---|---|---|
| R1802802 | 095921403003 | Residential | 2026 | 1 | 592,832 | 37,050 | 41,800 |
| Legal |
|---|
| EVS 1GVH L3 BLK2 GRAPEVINE HOLLOW 1ST FG |
| Subdivision | Block | Lot | Land Economic Area |
|---|---|---|---|
| GRAPEVINE HOLLOW 1ST FG | 2 | 3 | GRAPEVINE |
| Property Address | Property City | Section | Township | Range |
|---|---|---|---|---|
| 3111 BARBERA ST | EVANS | 21 | 05 | 66 |
| Account | Parcel | Account Type | Tax Year | Buildings | Actual Value | Local Govt Assessed Value | School Assessed Value |
|---|---|---|---|---|---|---|---|
| R1802802 | 095921403003 | Residential | 2026 | 1 | 592,832 | 37,050 | 41,800 |
| Account | Owner Name | Address |
|---|---|---|
| R1802802 | ADVANTAGE INCORPORATED LLC | 1816 SEASHELL CT WINDSOR, CO 805503564 |
| Account | Parcel | Account Type | Tax Year | Buildings | Actual Value | Local Govt Assessed Value | School Assessed Value |
|---|---|---|---|---|---|---|---|
| R1802802 | 095921403003 | Residential | 2026 | 1 | 592,832 | 37,050 | 41,800 |
| Reception | Rec Date | Type | Grantor | Grantee | Doc Fee | Sale Date | Sale Price |
|---|---|---|---|---|---|---|---|
| 2976800 | NA | SUB | SUBDIVISION | GRAPEVINE HOLLOW 1ST FG | 0.00 | NA | 0 |
| 3009439 | 11-27-2002 | WD | WIEDEMAN GARY W | FOX CREEK DEVEOPMENT LLC & | 69.81 | 11-22-2002 | 698,100 |
| 3009442 | 11-27-2002 | QCN | FOX CREEK DEVEOPMENT LLC & | WIEDEMAN GARY W | 0.00 | 11-22-2002 | 0 |
| 3042143 | 03-14-2003 | WDN | WIEDEMAN GARY W | FOX CREEK DEVELOPMENT LLC | 0.00 | 03-06-2003 | 0 |
| 3056674 | 04-28-2003 | WD | FOX CREEK DEVELOPMENT LLC | GEMM HOMES LLC | 74.80 | 04-18-2003 | 748,000 |
| 3232929 | 11-03-2004 | WD | GEMM HOMES LLC | D J HOMES LLC | 14.90 | 10-29-2004 | 149,000 |
| 3385324 | 05-05-2006 | QCN | D J HOMES LLC | CASTILLO JUAN | 0.00 | 04-07-2006 | 0 |
| 3528468 | 01-11-2008 | PTD | CASTILLO JUAN | NEW FRONTIER BANK | 0.00 | 01-11-2008 | 0 |
| 3549090 | 04-22-2008 | WD | NEW FRONTIER BANK | DHUPAR SCOTT K & | 25.20 | 04-15-2008 | 252,000 |
| 3562901 | 06-25-2008 | QCN | DHUPAR SCOTT K & | ADVANTAGE INCORPORATED LLC | 0.00 | 06-24-2008 | 0 |
*If the hyperlink for the reception number does not work, try a manual search in the Clerk and Recorder records. Use the Grantor or Grantee in your search.
| Account | Parcel | Account Type | Tax Year | Buildings | Actual Value | Local Govt Assessed Value | School Assessed Value |
|---|---|---|---|---|---|---|---|
| R1802802 | 095921403003 | Residential | 2026 | 1 | 592,832 | 37,050 | 41,800 |
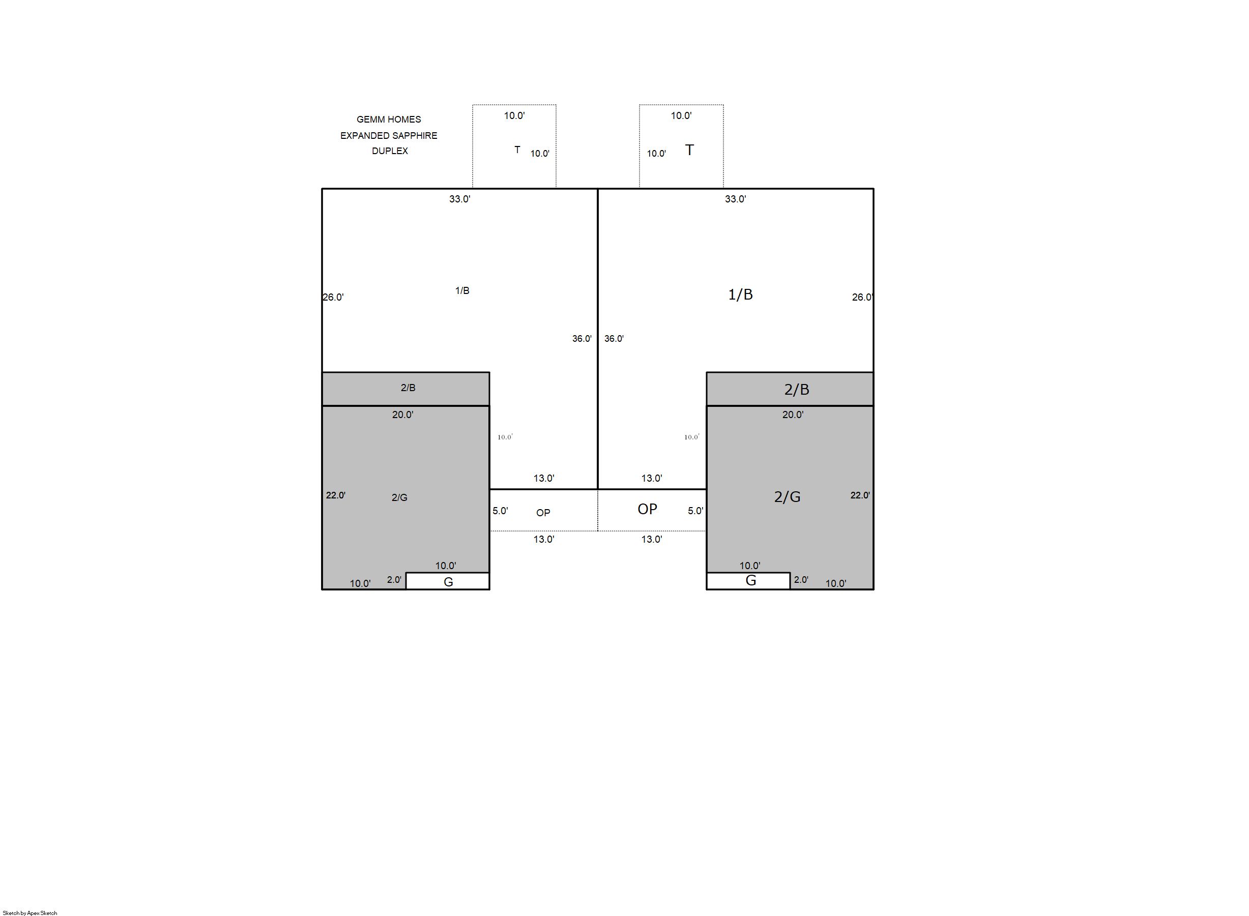
Building 1
| AccountNo | Building ID | Occupancy |
|---|---|---|
| R1802802 | 1 | Apartment Duplex |
| ID | Type | NBHD | Occupancy | % Complete | Bedrooms | Baths |
|---|---|---|---|---|---|---|
| 1 | Duplex | 2E0061 | Apartment Duplex | 100 | 6 | 6.00 |
| ID | Exterior | Roof Cover | Interior | HVAC | Perimeter | Units | Unit Type | Make |
|---|---|---|---|---|---|---|---|---|
| 1 | Frame Hardboard | Composition Shingle | Drywall | Central Air to Air | 460 | 2 | End | NA |
| ID | Square Ft | Condo SF | Total Basement SF | Finished Basement SF | Garage SF | Carport SF | Balcony SF | Porch SF |
|---|---|---|---|---|---|---|---|---|
| 1 | 2,976 | 0 | 1,976 | 0 | 880 | 0 | 0 | 130 |
| ID | Built As | Square Ft | Year Built | Stories | Length | Width |
|---|---|---|---|---|---|---|
| 1.00 | Duplex Two Story | 2,976 | 2006 | 2 | 0 | 0 |
| ID | Detail Type | Description | Units |
|---|---|---|---|
| 1 | Basement | Total Basement SF | 1976.00 |
| 1 | Fixture | Full Bath | 4.00 |
| 1 | Fixture | Half Bath | 2.00 |
| 1 | Garage | Built In | 880.00 |
| 1 | Porch | Open Slab | 200.00 |
| 1 | Porch | Slab Roof Ceil | 130.00 |
| 1 | Rough In | Rough In | 2.00 |
| Account | Parcel | Account Type | Tax Year | Buildings | Actual Value | Local Govt Assessed Value | School Assessed Value |
|---|---|---|---|---|---|---|---|
| R1802802 | 095921403003 | Residential | 2026 | 1 | 592,832 | 37,050 | 41,800 |
| Type | Code | Description | Actual Value | Local Govt Assessed Value | School Assessed Value | Acres | Land SqFt |
|---|---|---|---|---|---|---|---|
| Improvement | 1215 | DUP/TRIPLEX IMPROVEMENTS | 477,832 | 29,860 | 33,690 | 0.000 | 0 |
| Land | 1115 | DUP/TRIPLEX LAND | 115,000 | 7,190 | 8,110 | 0.349 | 15,206 |
| Totals | - | - | 592,832 | 37,050 | 41,800 | 0.349 | 15,206 |
Comparable sales for your Residential or Commercial property may be found using our SALES SEARCH TOOL
Values are updated annually on May 1st for Real Property and June 15th for Personal Property and Oil and Gas.
| Account | Parcel | Account Type | Tax Year | Buildings | Actual Value | Local Govt Assessed Value | School Assessed Value |
|---|---|---|---|---|---|---|---|
| R1802802 | 095921403003 | Residential | 2026 | 1 | 592,832 | 37,050 | 41,800 |
| Tax Area | District ID | District Name | Local Govt Mill Levy |
School Mill Levy |
Estimated Taxes |
|---|---|---|---|---|---|
| 0663 | 0700 | AIMS JUNIOR COLLEGE | 6.313 | 0.000 | $233.90 |
| 0663 | 0405 | EVANS CITY | 3.536 | 0.000 | $131.01 |
| 0663 | 0534 | EVANS FIRE | 15.500 | 0.000 | $574.28 |
| 0663 | 1050 | HIGH PLAINS LIBRARY | 3.044 | 0.000 | $112.78 |
| 0663 | 0301 | NORTHERN COLORADO WATER (NCW) | 1.000 | 0.000 | $37.05 |
| 0663 | 0206 | SCHOOL DIST 6-GREELEY | 0.000 | 47.615 | $1,990.31 |
| 0663 | 0100 | WELD COUNTY | 15.956 | 0.000 | $591.17 |
| 0663 | 1200 | WEST GREELEY CONSERVATION | 0.414 | 0.000 | $15.34 |
| Total | - | - | 45.763 | 47.615 | $3,685.83 |
The estimate of tax is based on the prior year mill levy and the 2025 projected assessment rates. Mill levies and tax estimates will be updated yearly on December 22nd for the current year. Additional information can be found at https://assessor.weld.gov


