Account: R1803686
April 5, 2026
| Account | Parcel | Account Type | Tax Year | Buildings | Actual Value | Local Govt Assessed Value | School Assessed Value |
|---|---|---|---|---|---|---|---|
| R1803686 | 095902101003 | Residential | 2026 | 2 | 687,057 | 42,940 | 48,430 |
| Legal |
|---|
| GR 1JS-14 L14 JOHNSON SUB 1ST ADD (JOHNSONS SUB SECOND ANNEX) |
| Subdivision | Block | Lot | Land Economic Area |
|---|---|---|---|
| JOHNSON SUB 1ST ADD | 14 | JOHNSON |
| Property Address | Property City | Section | Township | Range |
|---|---|---|---|---|
| 3995 B ST | GREELEY | 02 | 05 | 66 |
| Account | Parcel | Account Type | Tax Year | Buildings | Actual Value | Local Govt Assessed Value | School Assessed Value |
|---|---|---|---|---|---|---|---|
| R1803686 | 095902101003 | Residential | 2026 | 2 | 687,057 | 42,940 | 48,430 |
| Account | Owner Name | Address |
|---|---|---|
| R1803686 | PLASENCIA-HERDANDEZ CARLOS | 3995 W B ST GREELEY, CO 806341102 |
| R1803686 | PLASENCIA KARENT |
| Account | Parcel | Account Type | Tax Year | Buildings | Actual Value | Local Govt Assessed Value | School Assessed Value |
|---|---|---|---|---|---|---|---|
| R1803686 | 095902101003 | Residential | 2026 | 2 | 687,057 | 42,940 | 48,430 |
| Reception | Rec Date | Type | Grantor | Grantee | Doc Fee | Sale Date | Sale Price |
|---|---|---|---|---|---|---|---|
| 02259689 | 08-15-1991 | WDN | 0.00 | 08-09-1991 | 0 | ||
| 1540736 | NA | SUB | SUBDIVISION | JOHNSON 1ST ADD | 0.00 | NA | 0 |
| 2106053 | 07-07-1987 | WD | LARSON RAYMOND F & KATHLEEN A | ROTH JOHN W & MILDRED R | 12.35 | 07-02-1987 | 123,500 |
| 2428355 | 03-01-1995 | WD | ROTH JOHN W & MILDRED R REVOCA | GILCHRIST DANIEL JOHN & EMMA M | 18.50 | 02-28-1995 | 185,000 |
| 4527756 | 09-30-2019 | SWD | GILCHRIST EMMA MAE; GILCHRIST DANIEL JOHN | ZIEGLER LAIRA L | 48.50 | 09-26-2019 | 485,000 |
| 4958350 | 05-03-2024 | WD | ZIEGLER LAIRA L | NAF CASH LLC | 71.00 | 05-02-2024 | 710,000 |
| 4967170 | 06-21-2024 | WD | NAF CASH LLC | PLASENCIA-HERDANDEZ CARLOS; PLASENCIA KARENT | 72.07 | 06-18-2024 | 720,700 |
*If the hyperlink for the reception number does not work, try a manual search in the Clerk and Recorder records. Use the Grantor or Grantee in your search.
| Account | Parcel | Account Type | Tax Year | Buildings | Actual Value | Local Govt Assessed Value | School Assessed Value |
|---|---|---|---|---|---|---|---|
| R1803686 | 095902101003 | Residential | 2026 | 2 | 687,057 | 42,940 | 48,430 |
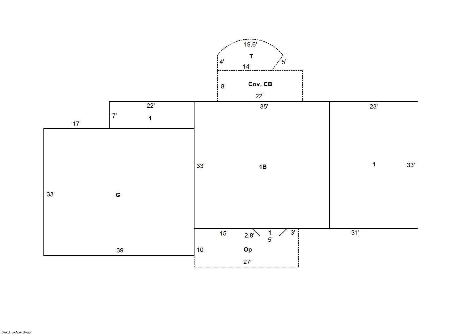
Building 1
| AccountNo | Building ID | Occupancy |
|---|---|---|
| R1803686 | 1 | Single Family Residential |
| ID | Type | NBHD | Occupancy | % Complete | Bedrooms | Baths |
|---|---|---|---|---|---|---|
| 1 | Residential | 2G3011 | Single Family Residential | 100 | 5 | 4.00 |
| ID | Exterior | Roof Cover | Interior | HVAC | Perimeter | Units | Unit Type | Make |
|---|---|---|---|---|---|---|---|---|
| 1 | Frame Vinyl | Composition Shingle | Drywall | Hot Water Baseboard | 228 | 0 | NA | NA |
| ID | Square Ft | Condo SF | Total Basement SF | Finished Basement SF | Garage SF | Carport SF | Balcony SF | Porch SF |
|---|---|---|---|---|---|---|---|---|
| 1 | 2,082 | 0 | 1,155 | 1,155 | 1,287 | 0 | 176 | 256 |
| ID | Built As | Square Ft | Year Built | Stories | Length | Width |
|---|---|---|---|---|---|---|
| 1.00 | Ranch 1 Story | 2,082 | 1986 | 1 | 0 | 0 |
| ID | Detail Type | Description | Units |
|---|---|---|---|
| 1 | Add On | Fireplace Gas | 1.00 |
| 1 | Add On | Heat Evaporative Coolers | 1.00 |
| 1 | Balcony | Cover Wood Balc | 176.00 |
| 1 | Basement | Finished | 1155.00 |
| 1 | Basement | Total Basement SF | 1155.00 |
| 1 | Fixture | Full Bath | 3.00 |
| 1 | Fixture | Half Bath | 1.00 |
| 1 | Garage | Attached | 1287.00 |
| 1 | Porch | Open Slab | 112.00 |
| 1 | Porch | Slab Roof Ceil | 256.00 |
Building 2
| AccountNo | Building ID | Occupancy |
|---|---|---|
| R1803686 | 2 | Utility Building |
| ID | Type | NBHD | Occupancy | % Complete | Bedrooms | Baths |
|---|---|---|---|---|---|---|
| 2 | Out Building | NA | Utility Building | 100 | 0 | 0.00 |
| ID | Exterior | Roof Cover | Interior | HVAC | Perimeter | Units | Unit Type | Make |
|---|---|---|---|---|---|---|---|---|
| 2 | NA | NA | NA | None | 140 | 0 | NA | NA |
| ID | Square Ft | Condo SF | Total Basement SF | Finished Basement SF | Garage SF | Carport SF | Balcony SF | Porch SF |
|---|---|---|---|---|---|---|---|---|
| 2 | 1,200 | 0 | 0 | 0 | 0 | 0 | 0 | 0 |
| ID | Built As | Square Ft | Year Built | Stories | Length | Width |
|---|---|---|---|---|---|---|
| 2.00 | Utility Building | 1,200 | 1997 | 1 | 40 | 30 |
No Additional Details for Building 2
| Account | Parcel | Account Type | Tax Year | Buildings | Actual Value | Local Govt Assessed Value | School Assessed Value |
|---|---|---|---|---|---|---|---|
| R1803686 | 095902101003 | Residential | 2026 | 2 | 687,057 | 42,940 | 48,430 |
| Type | Code | Description | Actual Value | Local Govt Assessed Value | School Assessed Value | Acres | Land SqFt |
|---|---|---|---|---|---|---|---|
| Improvement | 1212 | SINGLE FAMILY RESIDENTIAL IMPROVEMENTS | 578,057 | 36,130 | 40,750 | 0.000 | 0 |
| Land | 1112 | SINGLE FAMILY RESIDENTIAL-LAND | 109,000 | 6,810 | 7,680 | 0.869 | 37,832 |
| Totals | - | - | 687,057 | 42,940 | 48,430 | 0.869 | 37,832 |
Comparable sales for your Residential or Commercial property may be found using our SALES SEARCH TOOL
Values are updated annually on May 1st for Real Property and June 15th for Personal Property and Oil and Gas.
| Account | Parcel | Account Type | Tax Year | Buildings | Actual Value | Local Govt Assessed Value | School Assessed Value |
|---|---|---|---|---|---|---|---|
| R1803686 | 095902101003 | Residential | 2026 | 2 | 687,057 | 42,940 | 48,430 |
| Tax Area | District ID | District Name | Local Govt Mill Levy |
School Mill Levy |
Estimated Taxes |
|---|---|---|---|---|---|
| 0600 | 0700 | AIMS JUNIOR COLLEGE | 6.313 | 0.000 | $271.08 |
| 0600 | 0411 | GREELEY CITY | 11.274 | 0.000 | $484.11 |
| 0600 | 1050 | HIGH PLAINS LIBRARY | 3.044 | 0.000 | $130.71 |
| 0600 | 0301 | NORTHERN COLORADO WATER (NCW) | 1.000 | 0.000 | $42.94 |
| 0600 | 0206 | SCHOOL DIST 6-GREELEY | 0.000 | 47.615 | $2,305.99 |
| 0600 | 0100 | WELD COUNTY | 15.956 | 0.000 | $685.15 |
| Total | - | - | 37.587 | 47.615 | $3,919.98 |
The estimate of tax is based on the prior year mill levy and the 2025 projected assessment rates. Mill levies and tax estimates will be updated yearly on December 22nd for the current year. Additional information can be found at https://assessor.weld.gov



