Account: R1825702
April 5, 2026
| Account | Parcel | Account Type | Tax Year | Buildings | Actual Value | Local Govt Assessed Value | School Assessed Value |
|---|---|---|---|---|---|---|---|
| R1825702 | 105908106010 | Residential | 2026 | 1 | 494,023 | 30,870 | 34,830 |
| Legal |
|---|
| JOH 1JOHF L10 BLK3 JOHNSTOWN FARMS FG #1 |
| Subdivision | Block | Lot | Land Economic Area |
|---|---|---|---|
| JOHNSTOWN FARMS FG#1 | 3 | 10 | JOHNSTOWN FARMS |
| Property Address | Property City | Section | Township | Range |
|---|---|---|---|---|
| 495 HERITAGE LN | JOHNSTOWN | 08 | 04 | 67 |
| Account | Parcel | Account Type | Tax Year | Buildings | Actual Value | Local Govt Assessed Value | School Assessed Value |
|---|---|---|---|---|---|---|---|
| R1825702 | 105908106010 | Residential | 2026 | 1 | 494,023 | 30,870 | 34,830 |
| Account | Owner Name | Address |
|---|---|---|
| R1825702 | BIGGS CHRISTOPHER MICHAEL | 495 HERITAGE LN JOHNSTOWN, CO 805347815 |
| R1825702 | BIGGS TRICIA LOUISE |
| Account | Parcel | Account Type | Tax Year | Buildings | Actual Value | Local Govt Assessed Value | School Assessed Value |
|---|---|---|---|---|---|---|---|
| R1825702 | 105908106010 | Residential | 2026 | 1 | 494,023 | 30,870 | 34,830 |
| Reception | Rec Date | Type | Grantor | Grantee | Doc Fee | Sale Date | Sale Price |
|---|---|---|---|---|---|---|---|
| 2974635 | NA | SUB | SUBDIVISION | JOHNSTOWN FARMS FG #1 | 0.00 | NA | 0 |
| 3353774 | 01-10-2006 | SWD | JOHNSTOWN FARMS LLC | TWIN SILOS LLC | 12.75 | 12-30-2005 | 127,500 |
| 3362866 | 02-14-2006 | QCN | TWIN SILOS LLC | ADVOCATE LAND COMPANY INC | 0.00 | 01-31-2006 | 0 |
| 3384455 | 05-03-2006 | QCN | TWIN SILOS LLC | ADVOCATE LAND COMPANY INC | 0.00 | 04-21-2006 | 0 |
| 3384456 | 05-03-2006 | WD | ADVOCATE LAND COMPANY INC | BERTRON DARREN D & | 21.80 | 04-21-2006 | 218,000 |
| 3393967 | 06-06-2006 | QCN | TWIN SILOS LLC | ADVOCATE LAND COMPANY INC | 0.00 | 01-01-2006 | 0 |
| 4150203 | 10-14-2015 | WD | BERTRON KRISTI L; BERTRON DARREN D | JO ENTERPRISES LLLP | 24.00 | 10-14-2015 | 240,000 |
| 4165115 | 12-14-2015 | WD | JO ENTERPRISES LLLP | BIGGS CHRISTOPHER ; BIGGS TRICIA | 27.49 | 12-11-2015 | 274,900 |
| 4506335 | 07-17-2019 | QCN | BIGGS CHRISTOPHER ; BIGGS TRICIA | BIGGS CHRISTOPHER MICHAEL; BIGGS TRICIA LOUISE | 0.00 | 07-14-2019 | 0 |
| 4832122 | 06-02-2022 | SURV | SURVEY | SURVEY | 0.00 | 05-16-2022 | 0 |
*If the hyperlink for the reception number does not work, try a manual search in the Clerk and Recorder records. Use the Grantor or Grantee in your search.
| Account | Parcel | Account Type | Tax Year | Buildings | Actual Value | Local Govt Assessed Value | School Assessed Value |
|---|---|---|---|---|---|---|---|
| R1825702 | 105908106010 | Residential | 2026 | 1 | 494,023 | 30,870 | 34,830 |
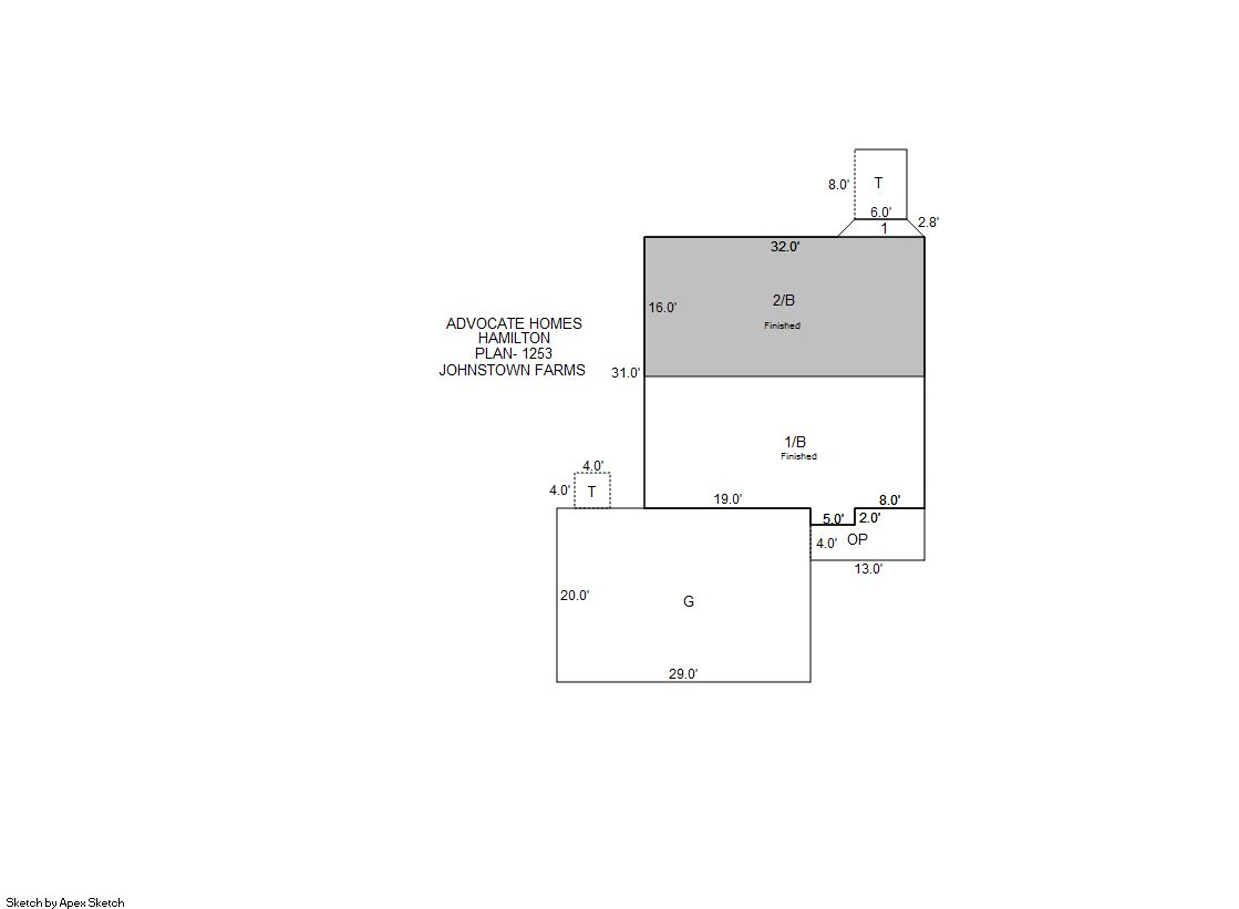
Building 1
| AccountNo | Building ID | Occupancy |
|---|---|---|
| R1825702 | 1 | Single Family Residential |
| ID | Type | NBHD | Occupancy | % Complete | Bedrooms | Baths |
|---|---|---|---|---|---|---|
| 1 | Residential | 0J1078 | Single Family Residential | 100 | 4 | 3.00 |
| ID | Exterior | Roof Cover | Interior | HVAC | Perimeter | Units | Unit Type | Make |
|---|---|---|---|---|---|---|---|---|
| 1 | Frame Hardboard | Composition Shingle | Drywall | Central Air to Air | 228 | 0 | NA | NA |
| ID | Square Ft | Condo SF | Total Basement SF | Finished Basement SF | Garage SF | Carport SF | Balcony SF | Porch SF |
|---|---|---|---|---|---|---|---|---|
| 1 | 1,530 | 0 | 1,002 | 1,002 | 580 | 0 | 0 | 64 |
| ID | Built As | Square Ft | Year Built | Stories | Length | Width |
|---|---|---|---|---|---|---|
| 1.00 | 2 Story | 1,530 | 2006 | 2 | 0 | 0 |
| ID | Detail Type | Description | Units |
|---|---|---|---|
| 1 | Add On | Fireplace Gas | 1.00 |
| 1 | Basement | Finished | 1002.00 |
| 1 | Basement | Total Basement SF | 1002.00 |
| 1 | Fixture | Full Bath | 3.00 |
| 1 | Garage | Attached | 580.00 |
| 1 | Porch | Open Slab | 64.00 |
| 1 | Porch | Slab Roof Ceil | 68.00 |
| Account | Parcel | Account Type | Tax Year | Buildings | Actual Value | Local Govt Assessed Value | School Assessed Value |
|---|---|---|---|---|---|---|---|
| R1825702 | 105908106010 | Residential | 2026 | 1 | 494,023 | 30,870 | 34,830 |
| Type | Code | Description | Actual Value | Local Govt Assessed Value | School Assessed Value | Acres | Land SqFt |
|---|---|---|---|---|---|---|---|
| Improvement | 1212 | SINGLE FAMILY RESIDENTIAL IMPROVEMENTS | 381,023 | 23,810 | 26,860 | 0.000 | 0 |
| Land | 1112 | SINGLE FAMILY RESIDENTIAL-LAND | 113,000 | 7,060 | 7,970 | 0.159 | 6,914 |
| Totals | - | - | 494,023 | 30,870 | 34,830 | 0.159 | 6,914 |
Comparable sales for your Residential or Commercial property may be found using our SALES SEARCH TOOL
Values are updated annually on May 1st for Real Property and June 15th for Personal Property and Oil and Gas.
| Account | Parcel | Account Type | Tax Year | Buildings | Actual Value | Local Govt Assessed Value | School Assessed Value |
|---|---|---|---|---|---|---|---|
| R1825702 | 105908106010 | Residential | 2026 | 1 | 494,023 | 30,870 | 34,830 |
| Tax Area | District ID | District Name | Local Govt Mill Levy |
School Mill Levy |
Estimated Taxes |
|---|---|---|---|---|---|
| 0565 | 0700 | AIMS JUNIOR COLLEGE | 6.313 | 0.000 | $194.88 |
| 0565 | 0510 | FRONT RANGE FIRE RESCUE FIRE PROTECTION DISTRICT | 11.483 | 0.000 | $354.48 |
| 0565 | 0414 | JOHNSTOWN TOWN | 23.947 | 0.000 | $739.24 |
| 0565 | 0301 | NORTHERN COLORADO WATER (NCW) | 1.000 | 0.000 | $30.87 |
| 0565 | 0205 | SCHOOL DIST RE5J-JOHNSTOWN | 0.000 | 36.271 | $1,263.32 |
| 0565 | 0901 | THOMPSON RIVER REC | 3.594 | 0.000 | $110.95 |
| 0565 | 0100 | WELD COUNTY | 15.956 | 0.000 | $492.56 |
| 0565 | 1200 | WEST GREELEY CONSERVATION | 0.414 | 0.000 | $12.78 |
| Total | - | - | 62.707 | 36.271 | $3,199.08 |
The estimate of tax is based on the prior year mill levy and the 2025 projected assessment rates. Mill levies and tax estimates will be updated yearly on December 22nd for the current year. Additional information can be found at https://assessor.weld.gov


