Account: R1831486

April 1, 2026

Account Parcel Account Type Tax Year Buildings Actual Value Local Govt Assessed Value School Assessed Value
R1831486 095902215016 Residential 2026 1 370,159 23,130 26,090

Legal
GR 2PR7-1 L1 BLK7 PHEASANT RUN SUB 2ND FILING

Subdivision Block Lot Land Economic Area
PHEASANT RUN SUB 2ND FG 7 1 PHEASANT RUN

Property Address Property City Section Township Range
286 43RD AVENUE CT GREELEY 02 05 66




Account Parcel Account Type Tax Year Buildings Actual Value Local Govt Assessed Value School Assessed Value
R1831486 095902215016 Residential 2026 1 370,159 23,130 26,090

Account Owner Name Address
R1831486 ANDERSEN ROXANNE 286 43RD AVENUE CT GREELEY, CO 806341017


Account Parcel Account Type Tax Year Buildings Actual Value Local Govt Assessed Value School Assessed Value
R1831486 095902215016 Residential 2026 1 370,159 23,130 26,090

Reception Rec Date Type Grantor Grantee Doc Fee Sale Date Sale Price
01821807 04-09-1980 WDN 0.00 01-01-1900 0
02249930 05-13-1991 QCN 0.00 05-10-1991 0
1749702 NA SUB SUBDIVISION PHEASANT RUN 2ND FG 0.00 NA 0
3882537 10-19-2012 QCN COOPER ROXANNE ANDERSEN ROXANNE 0.00 10-22-2012 0



Account Parcel Account Type Tax Year Buildings Actual Value Local Govt Assessed Value School Assessed Value
R1831486 095902215016 Residential 2026 1 370,159 23,130 26,090

Building 1

AccountNo Building ID Occupancy
R1831486 1 Single Family Residential


ID Type NBHD Occupancy % Complete Bedrooms Baths
1 Residential 2G3011 Single Family Residential 100 3 2.00


ID Exterior Roof Cover Interior HVAC Perimeter Units Unit Type Make
1 Frame Hardboard Composition Shingle Drywall Forced Air 136 0 NA NA


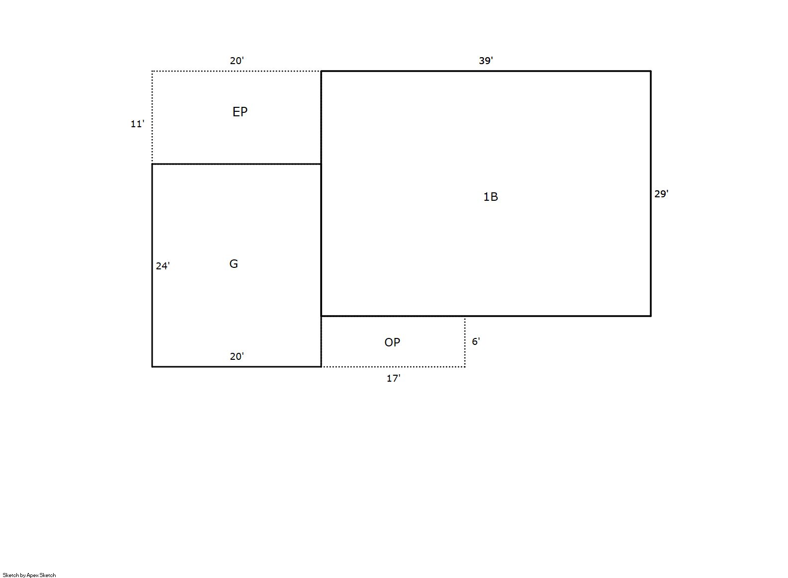
ID Square Ft Condo SF Total Basement SF Finished Basement SF Garage SF Carport SF Balcony SF Porch SF
1 1,131 0 1,131 0 480 0 0 220


Built As Details for Building 1
ID Built As Square Ft Year Built Stories Length Width
1.00 Ranch 1 Story 1,131 1979 1 0 0


Additional Details for Building 1
ID Detail Type Description Units
1 Add On Fireplace Wood 1.00
1 Basement Total Basement SF 1131.00
1 Fixture Full Bath 1.00
1 Fixture Half Bath 1.00
1 Garage Attached 480.00
1 Porch Slab Roof Ceil 102.00
1 Porch Solar Room 220.00
1 Rough In Rough In 1.00





Account Parcel Account Type Tax Year Buildings Actual Value Local Govt Assessed Value School Assessed Value
R1831486 095902215016 Residential 2026 1 370,159 23,130 26,090

Type Code Description Actual Value Local Govt Assessed Value School Assessed Value Acres Land SqFt
Improvement 1212 SINGLE FAMILY RESIDENTIAL IMPROVEMENTS 285,159 17,820 20,100 0.000 0
Land 1112 SINGLE FAMILY RESIDENTIAL-LAND 85,000 5,310 5,990 0.177 7,698
Totals - - 370,159 23,130 26,090 0.177 7,698


Account Parcel Account Type Tax Year Buildings Actual Value Local Govt Assessed Value School Assessed Value
R1831486 095902215016 Residential 2026 1 370,159 23,130 26,090

Tax Area District ID District Name Local Govt
Mill Levy
School
Mill Levy
Estimated
Taxes
0600 0700 AIMS JUNIOR COLLEGE 6.313 0.000 $146.02
0600 0411 GREELEY CITY 11.274 0.000 $260.77
0600 1050 HIGH PLAINS LIBRARY 3.044 0.000 $70.41
0600 0301 NORTHERN COLORADO WATER (NCW) 1.000 0.000 $23.13
0600 0206 SCHOOL DIST 6-GREELEY 0.000 47.615 $1,242.28
0600 0100 WELD COUNTY 15.956 0.000 $369.06
Total - - 37.587 47.615 $2,111.66


The estimate of tax is based on the prior year mill levy and the 2025 projected assessment rates. Mill levies and tax estimates will be updated yearly on December 22nd for the current year. Additional information can be found at https://assessor.weld.gov










Select Reports to Print: