Account: R1840502
April 2, 2026
| Account | Parcel | Account Type | Tax Year | Buildings | Actual Value | Local Govt Assessed Value | School Assessed Value |
|---|---|---|---|---|---|---|---|
| R1840502 | 105908113048 | Residential | 2026 | 1 | 490,255 | 30,640 | 34,570 |
| Legal |
|---|
| JOH 1JOHF L48 BLK10 JOHNSTOWN FARMS FG #1 |
| Subdivision | Block | Lot | Land Economic Area |
|---|---|---|---|
| JOHNSTOWN FARMS FG#1 | 10 | 48 | JOHNSTOWN FARMS |
| Property Address | Property City | Section | Township | Range |
|---|---|---|---|---|
| 305 DEE RD | JOHNSTOWN | 08 | 04 | 67 |
| Account | Parcel | Account Type | Tax Year | Buildings | Actual Value | Local Govt Assessed Value | School Assessed Value |
|---|---|---|---|---|---|---|---|
| R1840502 | 105908113048 | Residential | 2026 | 1 | 490,255 | 30,640 | 34,570 |
| Account | Owner Name | Address |
|---|---|---|
| R1840502 | 305 DEE ROAD LLC | 305 DEE RD JOHNSTOWN, CO 805347824 |
| Account | Parcel | Account Type | Tax Year | Buildings | Actual Value | Local Govt Assessed Value | School Assessed Value |
|---|---|---|---|---|---|---|---|
| R1840502 | 105908113048 | Residential | 2026 | 1 | 490,255 | 30,640 | 34,570 |
| Reception | Rec Date | Type | Grantor | Grantee | Doc Fee | Sale Date | Sale Price |
|---|---|---|---|---|---|---|---|
| 2974635 | NA | SUB | SUBDIVISION | JOHNSTOWN FARMS FG #1 | 0.00 | NA | 0 |
| 3158990 | 03-04-2004 | SWD | JOHNSTOWN FARMS LLC | ADARE HOMES JOHNSTOWN FARMS LLC | 142.20 | 02-25-2004 | 1,422,000 |
| 3354920 | 01-13-2006 | SWDN | JOHNSTOWN FARMS LLC | ADARE HOMES JOHNSTOWN FARMS LLC | 0.00 | 02-25-2004 | 0 |
| 3638858 | 07-28-2009 | PTD | ADARE HOMES JOHNSTOWN FARMS LLC | MILE HIGH BANKS | 0.00 | 07-27-2009 | 0 |
| 3644492 | 08-24-2009 | SWD | MILE HIGH BANKS | CRANE MARIE J | 17.99 | 08-21-2009 | 179,900 |
| 4248406 | 10-26-2016 | WD | CRANE MARIE J | LOWDERBACK CONNIE FELICIA | 29.45 | 10-26-2016 | 294,500 |
| 4853268 | 09-06-2022 | WDN | LOWDERBACK CONNIE FELICIA | 305 DEE ROAD LLC | 0.00 | 08-30-2022 | 0 |
*If the hyperlink for the reception number does not work, try a manual search in the Clerk and Recorder records. Use the Grantor or Grantee in your search.
| Account | Parcel | Account Type | Tax Year | Buildings | Actual Value | Local Govt Assessed Value | School Assessed Value |
|---|---|---|---|---|---|---|---|
| R1840502 | 105908113048 | Residential | 2026 | 1 | 490,255 | 30,640 | 34,570 |
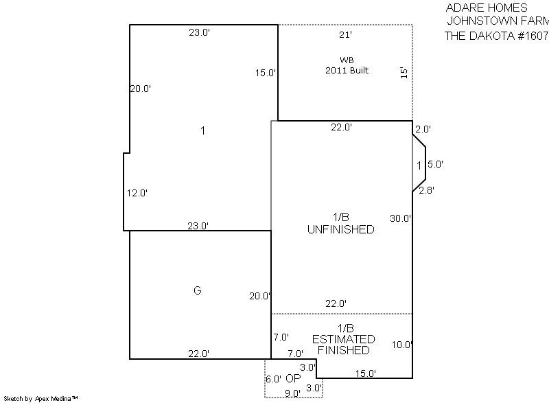
Building 1
| AccountNo | Building ID | Occupancy |
|---|---|---|
| R1840502 | 1 | Single Family Residential |
| ID | Type | NBHD | Occupancy | % Complete | Bedrooms | Baths |
|---|---|---|---|---|---|---|
| 1 | Residential | 0J1078 | Single Family Residential | 100 | 4 | 3.00 |
| ID | Exterior | Roof Cover | Interior | HVAC | Perimeter | Units | Unit Type | Make |
|---|---|---|---|---|---|---|---|---|
| 1 | Frame Hardboard | Composition Shingle | Drywall | Central Air to Air | 0 | 0 | NA | NA |
| ID | Square Ft | Condo SF | Total Basement SF | Finished Basement SF | Garage SF | Carport SF | Balcony SF | Porch SF |
|---|---|---|---|---|---|---|---|---|
| 1 | 1,604 | 0 | 859 | 199 | 440 | 0 | 315 | 51 |
| ID | Built As | Square Ft | Year Built | Stories | Length | Width |
|---|---|---|---|---|---|---|
| 1.00 | Ranch 1 Story | 1,604 | 2006 | 1 | 0 | 0 |
| ID | Detail Type | Description | Units |
|---|---|---|---|
| 1 | Balcony | Wood Wood Fin | 315.00 |
| 1 | Basement | Finished | 199.00 |
| 1 | Basement | Total Basement SF | 859.00 |
| 1 | Fixture | Full Bath | 3.00 |
| 1 | Garage | Attached | 440.00 |
| 1 | Porch | Slab Roof Ceil | 51.00 |
| Account | Parcel | Account Type | Tax Year | Buildings | Actual Value | Local Govt Assessed Value | School Assessed Value |
|---|---|---|---|---|---|---|---|
| R1840502 | 105908113048 | Residential | 2026 | 1 | 490,255 | 30,640 | 34,570 |
| Type | Code | Description | Actual Value | Local Govt Assessed Value | School Assessed Value | Acres | Land SqFt |
|---|---|---|---|---|---|---|---|
| Improvement | 1212 | SINGLE FAMILY RESIDENTIAL IMPROVEMENTS | 377,255 | 23,580 | 26,600 | 0.000 | 0 |
| Land | 1112 | SINGLE FAMILY RESIDENTIAL-LAND | 113,000 | 7,060 | 7,970 | 0.152 | 6,638 |
| Totals | - | - | 490,255 | 30,640 | 34,570 | 0.152 | 6,638 |
Comparable sales for your Residential or Commercial property may be found using our SALES SEARCH TOOL
Values are updated annually on May 1st for Real Property and June 15th for Personal Property and Oil and Gas.
| Account | Parcel | Account Type | Tax Year | Buildings | Actual Value | Local Govt Assessed Value | School Assessed Value |
|---|---|---|---|---|---|---|---|
| R1840502 | 105908113048 | Residential | 2026 | 1 | 490,255 | 30,640 | 34,570 |
| Tax Area | District ID | District Name | Local Govt Mill Levy |
School Mill Levy |
Estimated Taxes |
|---|---|---|---|---|---|
| 0565 | 0700 | AIMS JUNIOR COLLEGE | 6.313 | 0.000 | $193.43 |
| 0565 | 0510 | FRONT RANGE FIRE RESCUE FIRE PROTECTION DISTRICT | 11.483 | 0.000 | $351.84 |
| 0565 | 0414 | JOHNSTOWN TOWN | 23.947 | 0.000 | $733.74 |
| 0565 | 0301 | NORTHERN COLORADO WATER (NCW) | 1.000 | 0.000 | $30.64 |
| 0565 | 0205 | SCHOOL DIST RE5J-JOHNSTOWN | 0.000 | 36.271 | $1,253.89 |
| 0565 | 0901 | THOMPSON RIVER REC | 3.594 | 0.000 | $110.12 |
| 0565 | 0100 | WELD COUNTY | 15.956 | 0.000 | $488.89 |
| 0565 | 1200 | WEST GREELEY CONSERVATION | 0.414 | 0.000 | $12.68 |
| Total | - | - | 62.707 | 36.271 | $3,175.23 |
The estimate of tax is based on the prior year mill levy and the 2025 projected assessment rates. Mill levies and tax estimates will be updated yearly on December 22nd for the current year. Additional information can be found at https://assessor.weld.gov



