Account: R1922986

April 4, 2026

Account Parcel Account Type Tax Year Buildings Actual Value Local Govt Assessed Value School Assessed Value
R1922986 095902430005 Residential 2026 1 369,285 23,090 26,040

Legal
GR 1WM6-13 L13 BLK6 AMENDED REPLAT WESTMOOR 1ST FILING

Subdivision Block Lot Land Economic Area
WESTMOOR 1ST FG AM RPLT L9,13-16 B6 6 13 EDWARDS

Property Address Property City Section Township Range
3909 W 6TH ST GREELEY 02 05 66




Account Parcel Account Type Tax Year Buildings Actual Value Local Govt Assessed Value School Assessed Value
R1922986 095902430005 Residential 2026 1 369,285 23,090 26,040

Account Owner Name Address
R1922986 JORDAN JACOB S 3909 W 6TH ST GREELEY, CO 806341539


Account Parcel Account Type Tax Year Buildings Actual Value Local Govt Assessed Value School Assessed Value
R1922986 095902430005 Residential 2026 1 369,285 23,090 26,040

Reception Rec Date Type Grantor Grantee Doc Fee Sale Date Sale Price
01712423 02-28-1977 WDN 0.00 01-01-1900 0
1599013 NA SUB SUBDIVISION WESTMOOR 1ST FG RPLT LOTS 9 & 13-16 BLK 6 0.00 NA 0
3582887 10-07-2008 DTHC HART PAUL JOHN & HART ALICE COLEEN HART ALICE COLEEN 0.00 05-09-2008 0
3599591 01-14-2009 QCN HART ALICE COLEEN HART DANNY PAUL & HART JOANN MARY 0.00 01-14-2009 0
4331796 08-31-2017 QCN HART DANNY PAUL; HART JOANN MARY HART JOANN M 0.00 08-01-2017 0
4821310 04-25-2022 SWD HART JOANN M BREWER SAMANTHA MARIE; BOWEN BRIAN DAVID 40.60 04-22-2022 406,000
4964845 06-07-2024 SWD BREWER SAMANTHA MARIE; BOWEN BRIAN DAVID JORDAN JACOB S 39.00 06-07-2024 390,000



Account Parcel Account Type Tax Year Buildings Actual Value Local Govt Assessed Value School Assessed Value
R1922986 095902430005 Residential 2026 1 369,285 23,090 26,040

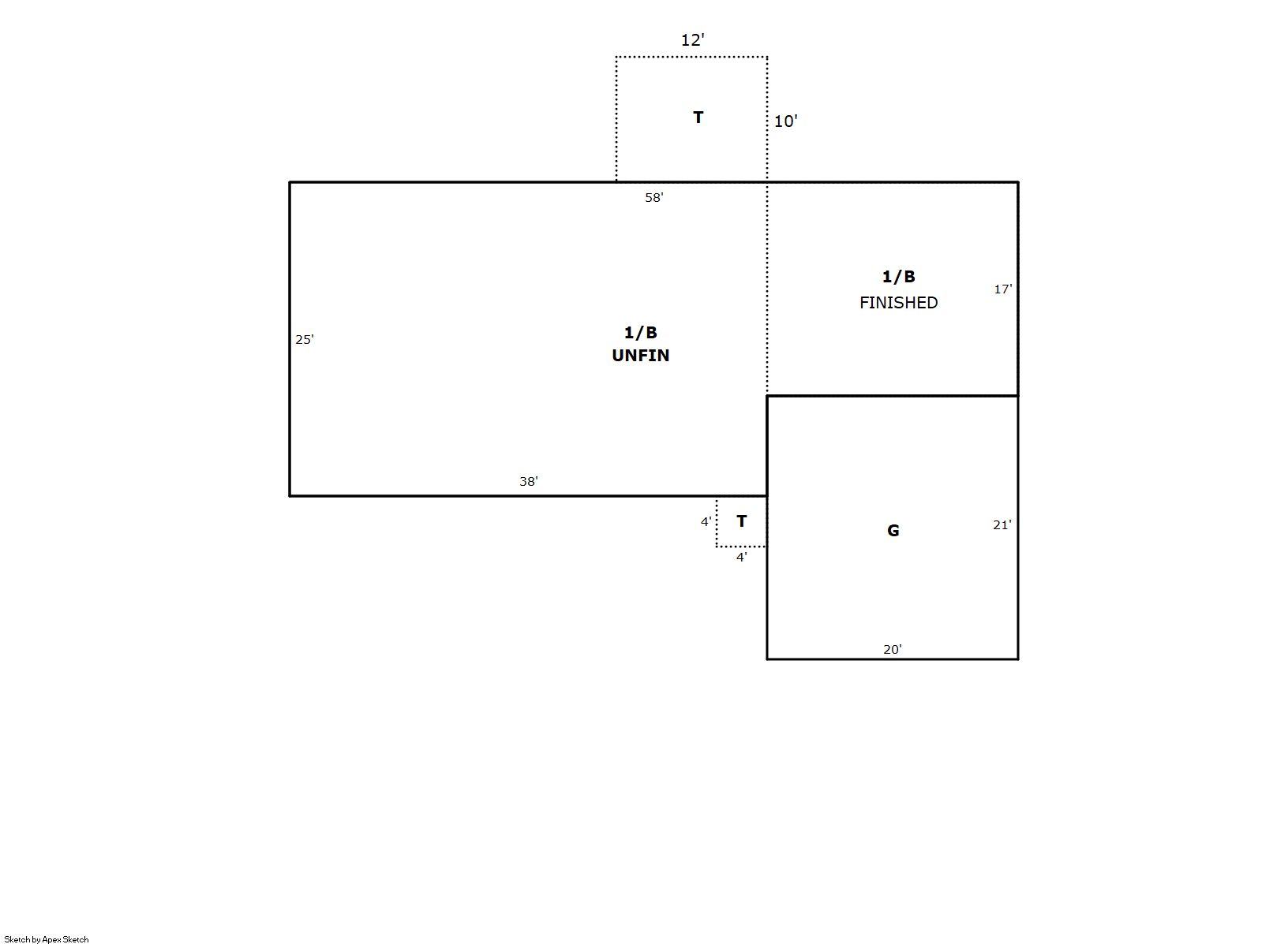
Building 1

AccountNo Building ID Occupancy
R1922986 1 Single Family Residential


ID Type NBHD Occupancy % Complete Bedrooms Baths
1 Residential 2G3011 Single Family Residential 100 3 2.00


ID Exterior Roof Cover Interior HVAC Perimeter Units Unit Type Make
1 Frame Masonry Veneer Composition Shingle Drywall Forced Air 166 0 NA NA


ID Square Ft Condo SF Total Basement SF Finished Basement SF Garage SF Carport SF Balcony SF Porch SF
1 1,290 0 1,290 340 420 0 0 136


Built As Details for Building 1
ID Built As Square Ft Year Built Stories Length Width
1.00 Ranch 1 Story 1,290 1973 1 0 0


Additional Details for Building 1
ID Detail Type Description Units
1 Add On Fireplace Wood 1.00
1 Basement Finished 340.00
1 Basement Total Basement SF 1290.00
1 Fixture Full Bath 2.00
1 Garage Attached 420.00
1 Porch Open Slab 136.00
1 Rough In Rough In 1.00





Account Parcel Account Type Tax Year Buildings Actual Value Local Govt Assessed Value School Assessed Value
R1922986 095902430005 Residential 2026 1 369,285 23,090 26,040

Type Code Description Actual Value Local Govt Assessed Value School Assessed Value Acres Land SqFt
Improvement 1212 SINGLE FAMILY RESIDENTIAL IMPROVEMENTS 311,285 19,460 21,950 0.000 0
Land 1112 SINGLE FAMILY RESIDENTIAL-LAND 58,000 3,630 4,090 0.193 8,410
Totals - - 369,285 23,090 26,040 0.193 8,410


Account Parcel Account Type Tax Year Buildings Actual Value Local Govt Assessed Value School Assessed Value
R1922986 095902430005 Residential 2026 1 369,285 23,090 26,040

Tax Area District ID District Name Local Govt
Mill Levy
School
Mill Levy
Estimated
Taxes
0600 0700 AIMS JUNIOR COLLEGE 6.313 0.000 $145.77
0600 0411 GREELEY CITY 11.274 0.000 $260.32
0600 1050 HIGH PLAINS LIBRARY 3.044 0.000 $70.29
0600 0301 NORTHERN COLORADO WATER (NCW) 1.000 0.000 $23.09
0600 0206 SCHOOL DIST 6-GREELEY 0.000 47.615 $1,239.89
0600 0100 WELD COUNTY 15.956 0.000 $368.42
Total - - 37.587 47.615 $2,107.78


The estimate of tax is based on the prior year mill levy and the 2025 projected assessment rates. Mill levies and tax estimates will be updated yearly on December 22nd for the current year. Additional information can be found at https://assessor.weld.gov










Select Reports to Print: