Account: R1943086

April 1, 2026

Account Parcel Account Type Tax Year Buildings Actual Value Local Govt Assessed Value School Assessed Value
R1943086 095903411012 Residential 2026 1 364,224 22,760 25,680

Legal
GR WMW11-12 L12 BLK11 WESTMOOR WEST

Subdivision Block Lot Land Economic Area
WESTMOOR WEST 11 12 WESTMOOR

Property Address Property City Section Township Range
4845 W 8TH ST GREELEY 03 05 66




Account Parcel Account Type Tax Year Buildings Actual Value Local Govt Assessed Value School Assessed Value
R1943086 095903411012 Residential 2026 1 364,224 22,760 25,680

Account Owner Name Address
R1943086 4845 WEST 8TH STREET LLC 6500 RABBIT MOUNTAIN RD LONGMONT, CO 805037407


Account Parcel Account Type Tax Year Buildings Actual Value Local Govt Assessed Value School Assessed Value
R1943086 095903411012 Residential 2026 1 364,224 22,760 25,680

Reception Rec Date Type Grantor Grantee Doc Fee Sale Date Sale Price
01945234 10-28-1983 WDN 0.00 01-01-1900 0
1767325 NA SUB SUBDIVISION WESTMOOR WEST 0.00 NA 0
2596983 03-02-1998 PRD LOOS STEVEN PAUL PAGE ERIC D & TAMARA J 11.35 02-27-1998 113,500
2991660 09-30-2002 WD PAGE ERIC D & TAMARA J RIOS ANTHONY J & CERVANTES-RIOS SUSANA 16.32 09-27-2002 163,200
3429614 10-24-2006 PTD RIOS ANTHONY J & SECRETARY OF HOUSING & URBAN DEV 0.00 10-24-2006 0
3461785 03-14-2007 SWD SECRETARY OF HOUSING & URBAN DEV SIGG DOULAS H 0.00 03-09-2007 125,000
3959621 08-28-2013 SWDN SIGG DOUGLAS H 4845 WEST 8TH STREET LLC 0.00 04-12-2013 0
X0004880 10-28-1983 WD ECONERGY HOMES INC LOOS STEVEN PAUL 6.22 10-28-1983 62,200



Account Parcel Account Type Tax Year Buildings Actual Value Local Govt Assessed Value School Assessed Value
R1943086 095903411012 Residential 2026 1 364,224 22,760 25,680

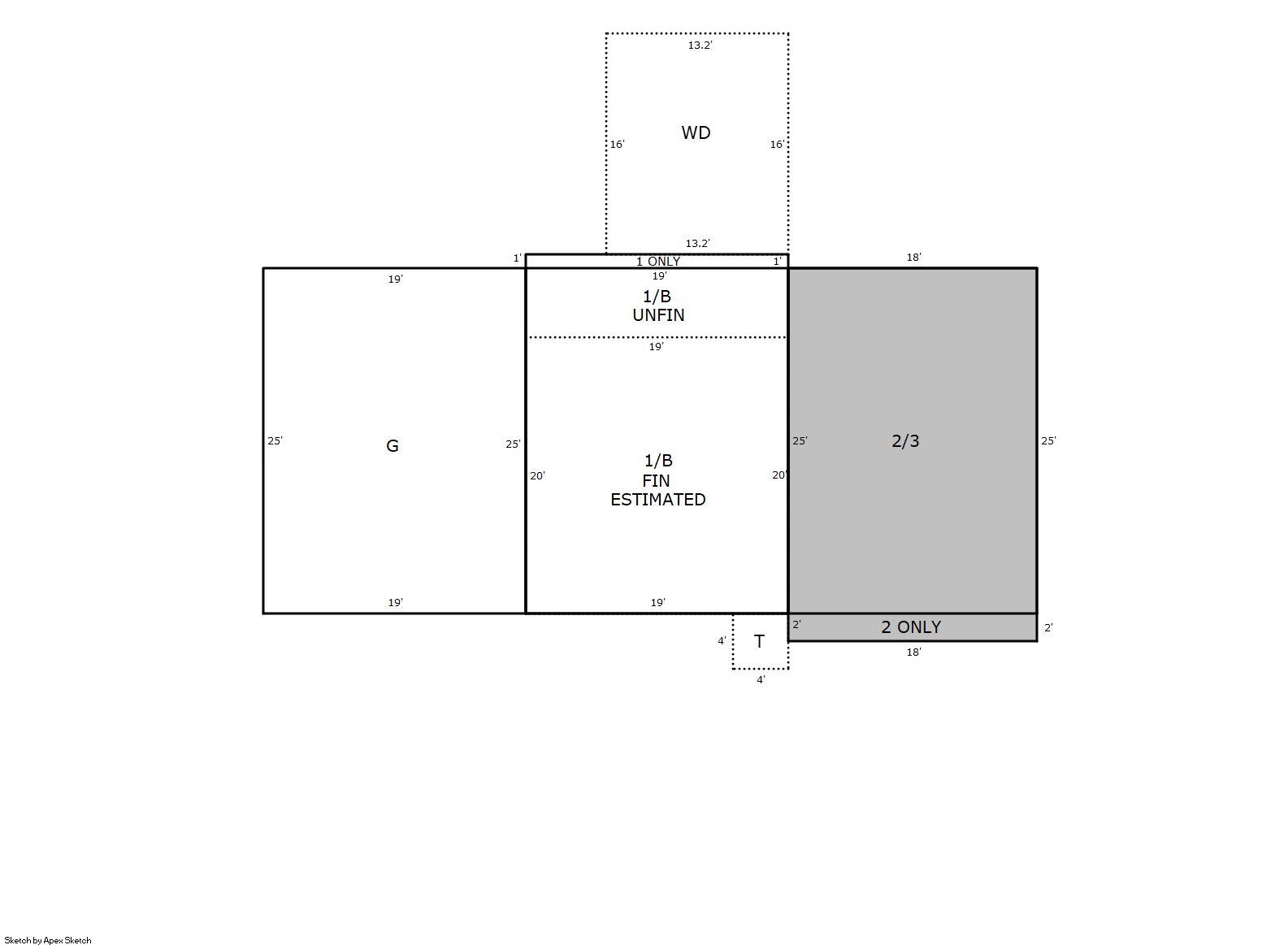
Building 1

AccountNo Building ID Occupancy
R1943086 1 Single Family Residential


ID Type NBHD Occupancy % Complete Bedrooms Baths
1 Residential 2G3011 Single Family Residential 100 4 2.00


ID Exterior Roof Cover Interior HVAC Perimeter Units Unit Type Make
1 Frame Hardboard Composition Shingle Drywall Forced Air 266 0 NA NA


ID Square Ft Condo SF Total Basement SF Finished Basement SF Garage SF Carport SF Balcony SF Porch SF
1 1,430 0 475 380 475 0 0 16


Built As Details for Building 1
ID Built As Square Ft Year Built Stories Length Width
1.00 Split Level 1,430 1983 3 0 0


Additional Details for Building 1
ID Detail Type Description Units
1 Basement Finished 380.00
1 Basement Total Basement SF 475.00
1 Fixture Full Bath 2.00
1 Garage Attached 475.00
1 Porch Open Slab 16.00
1 Porch Wood Deck 211.00





Account Parcel Account Type Tax Year Buildings Actual Value Local Govt Assessed Value School Assessed Value
R1943086 095903411012 Residential 2026 1 364,224 22,760 25,680

Type Code Description Actual Value Local Govt Assessed Value School Assessed Value Acres Land SqFt
Improvement 1212 SINGLE FAMILY RESIDENTIAL IMPROVEMENTS 279,224 17,450 19,690 0.000 0
Land 1112 SINGLE FAMILY RESIDENTIAL-LAND 85,000 5,310 5,990 0.202 8,778
Totals - - 364,224 22,760 25,680 0.202 8,778


Account Parcel Account Type Tax Year Buildings Actual Value Local Govt Assessed Value School Assessed Value
R1943086 095903411012 Residential 2026 1 364,224 22,760 25,680

Tax Area District ID District Name Local Govt
Mill Levy
School
Mill Levy
Estimated
Taxes
0600 0700 AIMS JUNIOR COLLEGE 6.313 0.000 $143.68
0600 0411 GREELEY CITY 11.274 0.000 $256.60
0600 1050 HIGH PLAINS LIBRARY 3.044 0.000 $69.28
0600 0301 NORTHERN COLORADO WATER (NCW) 1.000 0.000 $22.76
0600 0206 SCHOOL DIST 6-GREELEY 0.000 47.615 $1,222.75
0600 0100 WELD COUNTY 15.956 0.000 $363.16
Total - - 37.587 47.615 $2,078.23


The estimate of tax is based on the prior year mill levy and the 2025 projected assessment rates. Mill levies and tax estimates will be updated yearly on December 22nd for the current year. Additional information can be found at https://assessor.weld.gov










Select Reports to Print: