Account: R1996803
April 1, 2026
| Account | Parcel | Account Type | Tax Year | Buildings | Actual Value | Local Govt Assessed Value | School Assessed Value |
|---|---|---|---|---|---|---|---|
| R1996803 | 131324105016 | Residential | 2026 | 1 | 773,466 | 48,340 | 54,530 |
| Legal |
|---|
| FRE MF L16 BLK5 MOORE FARM |
| Subdivision | Block | Lot | Land Economic Area |
|---|---|---|---|
| MOORE FARM SUB | 5 | 16 | MOORE FARM |
| Property Address | Property City | Section | Township | Range |
|---|---|---|---|---|
| 8737 TRIPLE CROWN DR | FREDERICK | 24 | 02 | 68 |
| Account | Parcel | Account Type | Tax Year | Buildings | Actual Value | Local Govt Assessed Value | School Assessed Value |
|---|---|---|---|---|---|---|---|
| R1996803 | 131324105016 | Residential | 2026 | 1 | 773,466 | 48,340 | 54,530 |
| Account | Owner Name | Address |
|---|---|---|
| R1996803 | FABINI RENEE L | 8737 TRIPLE CROWN DR FREDERICK, CO 805044410 |
| R1996803 | FABINI KENNETH A |
| Account | Parcel | Account Type | Tax Year | Buildings | Actual Value | Local Govt Assessed Value | School Assessed Value |
|---|---|---|---|---|---|---|---|
| R1996803 | 131324105016 | Residential | 2026 | 1 | 773,466 | 48,340 | 54,530 |
| Reception | Rec Date | Type | Grantor | Grantee | Doc Fee | Sale Date | Sale Price |
|---|---|---|---|---|---|---|---|
| 2993778 | NA | SUB | SUBDIVISION | MOORE FARM | 0.00 | NA | 0 |
| 3248232 | 12-30-2004 | SWD | MOORE FARM PROPERTIES LLC | MSP CORPORATION | 480.00 | 12-28-2004 | 4,800,000 |
| 3308318 | 08-01-2005 | SWD | MSP CORPORATION | ADVOCATE LAND COMPANY INC | 157.50 | 07-29-2005 | 1,575,000 |
| 3480004 | 05-31-2007 | SWD | ADVOCATE LAND COMPANY INC | THOMPSON MARK & | 0.00 | 05-18-2007 | 370,619 |
| 3874055 | 09-18-2012 | WD | THOMPSON MARK | FABINI RENEE L | 34.75 | 09-13-2012 | 347,500 |
| 4860303 | 10-10-2022 | BN | FABINI RENEE L; FABINI KENNETH A | FABINI RENEE L; FABINI KENNETH A | 0.00 | 10-10-2022 | 0 |
*If the hyperlink for the reception number does not work, try a manual search in the Clerk and Recorder records. Use the Grantor or Grantee in your search.
| Account | Parcel | Account Type | Tax Year | Buildings | Actual Value | Local Govt Assessed Value | School Assessed Value |
|---|---|---|---|---|---|---|---|
| R1996803 | 131324105016 | Residential | 2026 | 1 | 773,466 | 48,340 | 54,530 |
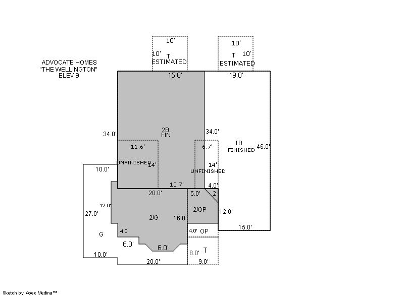
Building 1
| AccountNo | Building ID | Occupancy |
|---|---|---|
| R1996803 | 1 | Single Family Residential |
| ID | Type | NBHD | Occupancy | % Complete | Bedrooms | Baths |
|---|---|---|---|---|---|---|
| 1 | Residential | 3K2047 | Single Family Residential | 100 | 6 | 4.00 |
| ID | Exterior | Roof Cover | Interior | HVAC | Perimeter | Units | Unit Type | Make |
|---|---|---|---|---|---|---|---|---|
| 1 | Frame Hardboard | Composition Shingle | Drywall | Central Air to Air | 0 | 0 | NA | NA |
| ID | Square Ft | Condo SF | Total Basement SF | Finished Basement SF | Garage SF | Carport SF | Balcony SF | Porch SF |
|---|---|---|---|---|---|---|---|---|
| 1 | 2,972 | 0 | 1,676 | 1,420 | 710 | 0 | 0 | 118 |
| ID | Built As | Square Ft | Year Built | Stories | Length | Width |
|---|---|---|---|---|---|---|
| 1.00 | 2 Story | 2,972 | 2007 | 2 | 0 | 0 |
| ID | Detail Type | Description | Units |
|---|---|---|---|
| 1 | Add On | Fireplace Gas | 1.00 |
| 1 | Basement | Finished | 1420.00 |
| 1 | Basement | Total Basement SF | 1676.00 |
| 1 | Fixture | Full Bath | 3.00 |
| 1 | Fixture | Half Bath | 1.00 |
| 1 | Garage | Attached | 710.00 |
| 1 | Porch | Open Slab | 272.00 |
| 1 | Porch | Slab Roof Ceil | 118.00 |
| Account | Parcel | Account Type | Tax Year | Buildings | Actual Value | Local Govt Assessed Value | School Assessed Value |
|---|---|---|---|---|---|---|---|
| R1996803 | 131324105016 | Residential | 2026 | 1 | 773,466 | 48,340 | 54,530 |
| Type | Code | Description | Actual Value | Local Govt Assessed Value | School Assessed Value | Acres | Land SqFt |
|---|---|---|---|---|---|---|---|
| Improvement | 1212 | SINGLE FAMILY RESIDENTIAL IMPROVEMENTS | 658,466 | 41,150 | 46,420 | 0.000 | 0 |
| Land | 1112 | SINGLE FAMILY RESIDENTIAL-LAND | 115,000 | 7,190 | 8,110 | 0.189 | 8,217 |
| Totals | - | - | 773,466 | 48,340 | 54,530 | 0.189 | 8,217 |
Comparable sales for your Residential or Commercial property may be found using our SALES SEARCH TOOL
Values are updated annually on May 1st for Real Property and June 15th for Personal Property and Oil and Gas.
| Account | Parcel | Account Type | Tax Year | Buildings | Actual Value | Local Govt Assessed Value | School Assessed Value |
|---|---|---|---|---|---|---|---|
| R1996803 | 131324105016 | Residential | 2026 | 1 | 773,466 | 48,340 | 54,530 |
| Tax Area | District ID | District Name | Local Govt Mill Levy |
School Mill Levy |
Estimated Taxes |
|---|---|---|---|---|---|
| 2704 | 0900 | CARBON VALLEY REC | 4.427 | 0.000 | $214.00 |
| 2704 | 0408 | FREDERICK TOWN | 6.555 | 0.000 | $316.87 |
| 2704 | 0507 | FREDERICK-FIRESTONE FIRE | 15.559 | 0.000 | $752.12 |
| 2704 | 1050 | HIGH PLAINS LIBRARY | 3.044 | 0.000 | $147.15 |
| 2704 | 1202 | LONGMONT CONSERVATION | 0.000 | 0.000 | $0.00 |
| 2704 | 0301 | NORTHERN COLORADO WATER (NCW) | 1.000 | 0.000 | $48.34 |
| 2704 | 0213 | SCHOOL DIST RE1J-LONGMONT | 0.000 | 57.717 | $3,147.31 |
| 2704 | 0620 | ST VRAIN SANITATION | 0.316 | 0.000 | $15.28 |
| 2704 | 0100 | WELD COUNTY | 15.956 | 0.000 | $771.31 |
| Total | - | - | 46.857 | 57.717 | $5,412.38 |
The estimate of tax is based on the prior year mill levy and the 2025 projected assessment rates. Mill levies and tax estimates will be updated yearly on December 22nd for the current year. Additional information can be found at https://assessor.weld.gov



