Account: R2001203

April 1, 2026

Account Parcel Account Type Tax Year Buildings Actual Value Local Govt Assessed Value School Assessed Value
R2001203 131324107017 Residential 2026 1 643,194 40,200 45,350

Legal
FRE MF L17 BLK7 MOORE FARM

Subdivision Block Lot Land Economic Area
MOORE FARM SUB 7 17 MOORE FARM

Property Address Property City Section Township Range
8738 TRIPLE CROWN DR FREDERICK 24 02 68




Account Parcel Account Type Tax Year Buildings Actual Value Local Govt Assessed Value School Assessed Value
R2001203 131324107017 Residential 2026 1 643,194 40,200 45,350

Account Owner Name Address
R2001203 SIMONE ALEC 8738 TRIPLE CROWN DR FREDERICK, CO 805044409
R2001203 MEYER LAURA AMELIA


Account Parcel Account Type Tax Year Buildings Actual Value Local Govt Assessed Value School Assessed Value
R2001203 131324107017 Residential 2026 1 643,194 40,200 45,350

Reception Rec Date Type Grantor Grantee Doc Fee Sale Date Sale Price
2993778 NA SUB SUBDIVISION MOORE FARM 0.00 NA 0
3248232 12-30-2004 SWD MOORE FARM PROPERTIES LLC MSP CORPORATION 480.00 12-28-2004 4,800,000
3308318 08-01-2005 SWD MSP CORPORATION ADVOCATE LAND COMPANY INC 157.50 07-29-2005 1,575,000
3592361 12-01-2008 SWD ADVOCATE LAND COMPANY INC RYCHLUND INC 6.04 11-20-2008 60,400
3651491 09-30-2009 WD RYCHLUND INC SMITHGRAYBEAL LYLE S 27.25 09-28-2009 272,500
4617769 08-10-2020 WD SMITHGRAYBEAL LYLE S; SMITHGRAYBEAL FELICIA M SIMONE ALEC 49.00 08-04-2020 490,000
4852407 08-31-2022 QCN SIMONE ALEC SIMONE ALEC; MEYER LAURA AMELIA 0.00 07-11-2022 0
5064144 11-06-2025 BN SIMONE ALEC; MEYER LAURA AMELIA SIMONE ALEC; MEYER LAURA AMELIA 0.00 11-06-2025 0



Account Parcel Account Type Tax Year Buildings Actual Value Local Govt Assessed Value School Assessed Value
R2001203 131324107017 Residential 2026 1 643,194 40,200 45,350

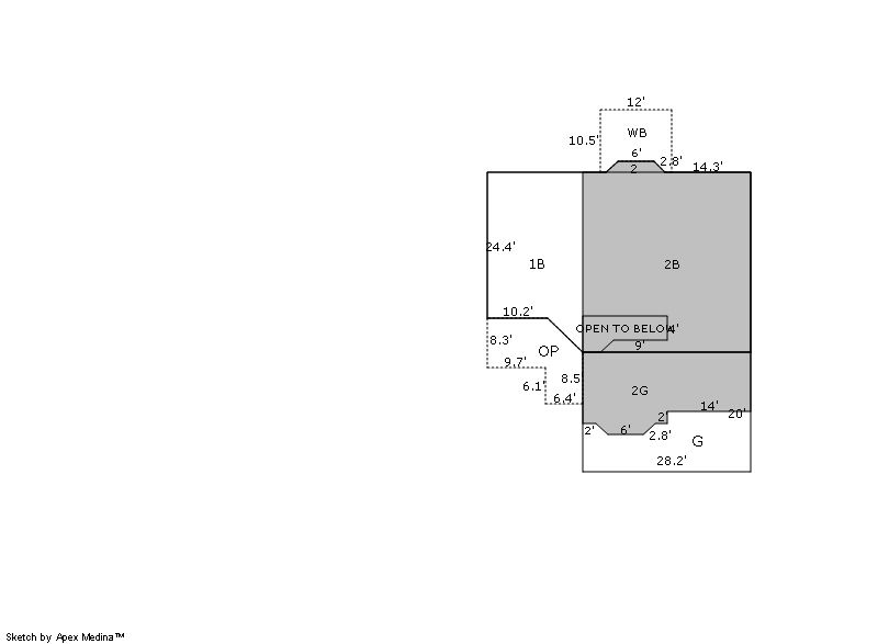
Building 3

AccountNo Building ID Occupancy
R2001203 3 Single Family Residential


ID Type NBHD Occupancy % Complete Bedrooms Baths
3 Residential 3K2047 Single Family Residential 100 4 3.00


ID Exterior Roof Cover Interior HVAC Perimeter Units Unit Type Make
3 Frame Hardboard Composition Shingle Drywall Central Air to Air 0 0 NA NA


ID Square Ft Condo SF Total Basement SF Finished Basement SF Garage SF Carport SF Balcony SF Porch SF
3 2,405 0 1,263 0 564 0 110 155


Built As Details for Building 3
ID Built As Square Ft Year Built Stories Length Width
3.00 2 Story 2,405 2009 1 0 0


Additional Details for Building 3
ID Detail Type Description Units
3 Add On Fireplace Gas 1.00
3 Balcony Wood Wood Fin 110.00
3 Basement Full Daylight 1.00
3 Basement Total Basement SF 1263.00
3 Fixture Full Bath 2.00
3 Fixture Half Bath 1.00
3 Garage Attached 564.00
3 Porch Slab Roof Ceil 155.00
3 Rough In Rough In 1.00





Account Parcel Account Type Tax Year Buildings Actual Value Local Govt Assessed Value School Assessed Value
R2001203 131324107017 Residential 2026 1 643,194 40,200 45,350

Type Code Description Actual Value Local Govt Assessed Value School Assessed Value Acres Land SqFt
Improvement 1212 SINGLE FAMILY RESIDENTIAL IMPROVEMENTS 528,194 33,010 37,240 0.000 0
Land 1112 SINGLE FAMILY RESIDENTIAL-LAND 115,000 7,190 8,110 0.169 7,338
Totals - - 643,194 40,200 45,350 0.169 7,338


Account Parcel Account Type Tax Year Buildings Actual Value Local Govt Assessed Value School Assessed Value
R2001203 131324107017 Residential 2026 1 643,194 40,200 45,350

Tax Area District ID District Name Local Govt
Mill Levy
School
Mill Levy
Estimated
Taxes
2704 0900 CARBON VALLEY REC 4.427 0.000 $177.97
2704 0408 FREDERICK TOWN 6.555 0.000 $263.51
2704 0507 FREDERICK-FIRESTONE FIRE 15.559 0.000 $625.47
2704 1050 HIGH PLAINS LIBRARY 3.044 0.000 $122.37
2704 1202 LONGMONT CONSERVATION 0.000 0.000 $0.00
2704 0301 NORTHERN COLORADO WATER (NCW) 1.000 0.000 $40.20
2704 0213 SCHOOL DIST RE1J-LONGMONT 0.000 57.717 $2,617.47
2704 0620 ST VRAIN SANITATION 0.316 0.000 $12.70
2704 0100 WELD COUNTY 15.956 0.000 $641.43
Total - - 46.857 57.717 $4,501.12


The estimate of tax is based on the prior year mill levy and the 2025 projected assessment rates. Mill levies and tax estimates will be updated yearly on December 22nd for the current year. Additional information can be found at https://assessor.weld.gov










Select Reports to Print: