Account: R2026686

April 1, 2026

Account Parcel Account Type Tax Year Buildings Actual Value Local Govt Assessed Value School Assessed Value
R2026686 095911106001 Residential 2026 1 419,728 26,240 29,600

Legal
GR BS4-11 L11 BLK4 BITTERSWEET SUB

Subdivision Block Lot Land Economic Area
BITTERSWEET SUB 4 11 BITTERSWEET

Property Address Property City Section Township Range
1434 41ST AVE GREELEY 11 05 66




Account Parcel Account Type Tax Year Buildings Actual Value Local Govt Assessed Value School Assessed Value
R2026686 095911106001 Residential 2026 1 419,728 26,240 29,600

Account Owner Name Address
R2026686 ADJEMIAN STEVAN R 1434 41ST AVE GREELEY, CO 806342743


Account Parcel Account Type Tax Year Buildings Actual Value Local Govt Assessed Value School Assessed Value
R2026686 095911106001 Residential 2026 1 419,728 26,240 29,600

Reception Rec Date Type Grantor Grantee Doc Fee Sale Date Sale Price
01877789 12-21-1981 WDN 0.00 01-01-1900 0
02226570 09-06-1990 QCN 0.00 09-06-1990 0
1691496 NA SUB SUBDIVISION BITTERSWEET 0.00 NA 0
2190664 09-01-1989 WD BLODGETT DOUGLAS V & HELEN M LITTLE TIMOTHY W 8.80 08-31-1989 88,000
2360201 11-17-1993 WD LITTLE TIMOTHY W & ANNE M TYLER LUCILE VIRGINIA 11.50 11-12-1993 115,000
2456650 09-22-1995 WD TYLER LUCILE VIRGINIA PFEIF HAROLD H & GLADYS 12.25 09-21-1995 122,500
2502966 07-26-1996 WD PFEIF HAROLD H & GLADYS BAUSWELL RONALD E & MARGARET A 14.35 07-25-1996 143,500
2674504 02-22-1999 QCN BAUSWELL RONALD E & MARGARET A BAUSWELL RONALD E 0.00 02-08-1999 0
2793852 09-14-2000 PTD BAUSWELL RONALD E CHASE MANHATTAN BANK 0.00 09-13-2000 0
2817427 01-04-2001 SWD CHASE MANHATTAN BANK KITTILSON RANDY LAVERN & DEVRA RENE 16.50 01-02-2001 165,000
4892839 04-17-2023 SWD KITTILSON DEVRA RENE; KITTILSON RANDY LAVERN ADJEMIAN STEVAN R 12.65 04-13-2023 126,500



Account Parcel Account Type Tax Year Buildings Actual Value Local Govt Assessed Value School Assessed Value
R2026686 095911106001 Residential 2026 1 419,728 26,240 29,600

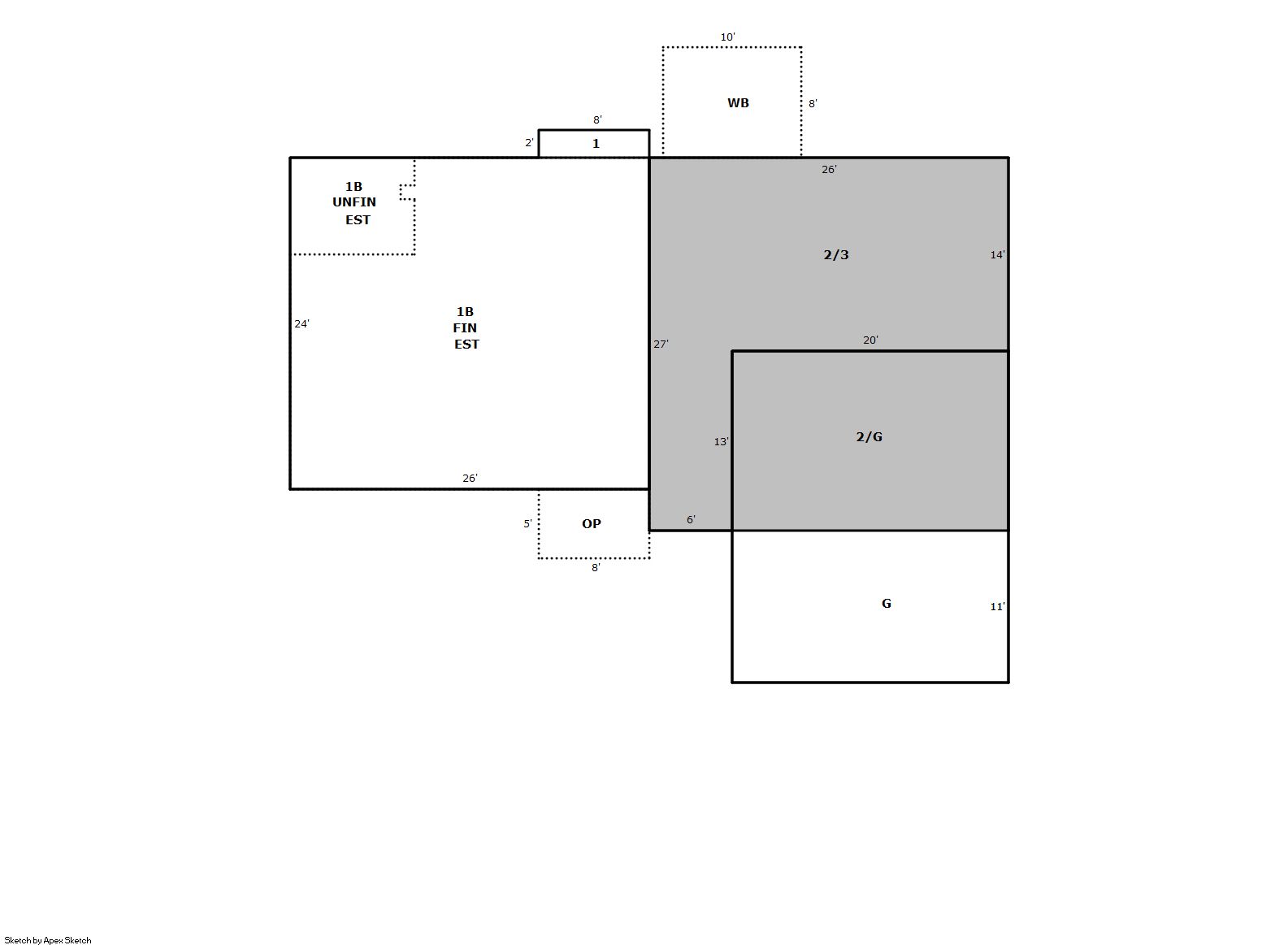
Building 1

AccountNo Building ID Occupancy
R2026686 1 Single Family Residential


ID Type NBHD Occupancy % Complete Bedrooms Baths
1 Residential 2G4012 Single Family Residential 100 3 4.00


ID Exterior Roof Cover Interior HVAC Perimeter Units Unit Type Make
1 Frame Hardboard Wood Shake Drywall Forced Air 316 0 NA NA


ID Square Ft Condo SF Total Basement SF Finished Basement SF Garage SF Carport SF Balcony SF Porch SF
1 1,784 0 624 562 480 0 80 40


Built As Details for Building 1
ID Built As Square Ft Year Built Stories Length Width
1.00 Split Level 1,784 1981 1 0 0


Additional Details for Building 1
ID Detail Type Description Units
1 Add On Fireplace Gas 1.00
1 Balcony Wood Wood Fin 80.00
1 Basement Finished 562.00
1 Basement Total Basement SF 624.00
1 Fixture Full Bath 3.00
1 Fixture Half Bath 1.00
1 Garage Attached 480.00
1 Porch Slab Roof Ceil 40.00





Account Parcel Account Type Tax Year Buildings Actual Value Local Govt Assessed Value School Assessed Value
R2026686 095911106001 Residential 2026 1 419,728 26,240 29,600

Type Code Description Actual Value Local Govt Assessed Value School Assessed Value Acres Land SqFt
Improvement 1212 SINGLE FAMILY RESIDENTIAL IMPROVEMENTS 349,728 21,860 24,660 0.000 0
Land 1112 SINGLE FAMILY RESIDENTIAL-LAND 70,000 4,380 4,940 0.184 8,000
Totals - - 419,728 26,240 29,600 0.184 8,000


Account Parcel Account Type Tax Year Buildings Actual Value Local Govt Assessed Value School Assessed Value
R2026686 095911106001 Residential 2026 1 419,728 26,240 29,600

Tax Area District ID District Name Local Govt
Mill Levy
School
Mill Levy
Estimated
Taxes
0600 0700 AIMS JUNIOR COLLEGE 6.313 0.000 $165.65
0600 0411 GREELEY CITY 11.274 0.000 $295.83
0600 1050 HIGH PLAINS LIBRARY 3.044 0.000 $79.87
0600 0301 NORTHERN COLORADO WATER (NCW) 1.000 0.000 $26.24
0600 0206 SCHOOL DIST 6-GREELEY 0.000 47.615 $1,409.40
0600 0100 WELD COUNTY 15.956 0.000 $418.69
Total - - 37.587 47.615 $2,395.69


The estimate of tax is based on the prior year mill levy and the 2025 projected assessment rates. Mill levies and tax estimates will be updated yearly on December 22nd for the current year. Additional information can be found at https://assessor.weld.gov










Select Reports to Print: