Account: R2043686

April 4, 2026

Account Parcel Account Type Tax Year Buildings Actual Value Local Govt Assessed Value School Assessed Value
R2043686 095911121001 Residential 2026 2 914,152 57,130 64,450

Legal
GR BS4R-1 L1 BITTERSWEET 4TH REPLAT

Subdivision Block Lot Land Economic Area
BITTERSWEET 4TH RPLT 1 BITTERSWEET

Property Address Property City Section Township Range
1300 POLOMAR DR GREELEY 11 05 66




Account Parcel Account Type Tax Year Buildings Actual Value Local Govt Assessed Value School Assessed Value
R2043686 095911121001 Residential 2026 2 914,152 57,130 64,450

Account Owner Name Address
R2043686 BRIGHI PAULINE F 1300 POLOMAR DR GREELEY, CO 806342414


Account Parcel Account Type Tax Year Buildings Actual Value Local Govt Assessed Value School Assessed Value
R2043686 095911121001 Residential 2026 2 914,152 57,130 64,450

Reception Rec Date Type Grantor Grantee Doc Fee Sale Date Sale Price
01844462 12-16-1980 PLT 0.00 01-01-1900 0
02147282 07-07-1988 QCN 0.00 07-07-1988 0
02242046 02-22-1991 AFFD 0.00 02-14-1991 0
1844462 NA SUB SUBDIVISION BITTERSWEET 4TH RPLT 0.00 NA 0
3475156 05-10-2007 QCN BRIGHI POLLY F TRUSTEE BRIGHI POLLY F 0.00 05-02-2007 0
3475158 05-10-2007 QCN BRIGHI POLLY F BRIGHI POLLY F TRUST 0.00 05-02-2007 0
4177505 01-29-2016 SWDN BRIGHI POLLY F TRUST BRIGHI PAULINE F 0.00 01-25-2016 0
4232893 08-31-2016 DTHC BRIGHI LOUIS JUNIOR BRIGHI LOUIS JUNIOR 0.00 09-23-2015 0
4998862 12-09-2024 SURV SURVEY SURVEY 0.00 11-21-2024 0



Account Parcel Account Type Tax Year Buildings Actual Value Local Govt Assessed Value School Assessed Value
R2043686 095911121001 Residential 2026 2 914,152 57,130 64,450

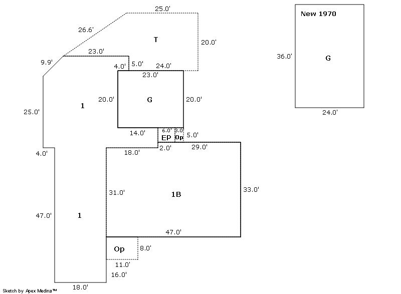
Building 1

AccountNo Building ID Occupancy
R2043686 1 Single Family Residential


ID Type NBHD Occupancy % Complete Bedrooms Baths
1 Residential 2G4012 Single Family Residential 100 5 3.00


ID Exterior Roof Cover Interior HVAC Perimeter Units Unit Type Make
1 Frame Masonry Veneer Wood Shake Drywall Central Air to Air 0 0 NA NA


ID Square Ft Condo SF Total Basement SF Finished Basement SF Garage SF Carport SF Balcony SF Porch SF
1 3,287 0 1,515 1,515 460 0 0 103


Built As Details for Building 1
ID Built As Square Ft Year Built Stories Length Width
1.00 Ranch 1 Story 3,287 1958 1 0 0


Additional Details for Building 1
ID Detail Type Description Units
1 Add On Fireplace Wood 2.00
1 Basement Finished 1515.00
1 Basement Total Basement SF 1515.00
1 Fixture Full Bath 2.00
1 Fixture Half Bath 1.00
1 Garage Attached 460.00
1 Garage Detached 864.00
1 Porch Encl Solid Wall 30.00
1 Porch Open Slab 660.00
1 Porch Slab Roof Ceil 103.00



Building 2

AccountNo Building ID Occupancy
R2043686 2 Shed - Cattle


ID Type NBHD Occupancy % Complete Bedrooms Baths
2 Out Building NA Shed - Cattle 100 0 0.00


ID Exterior Roof Cover Interior HVAC Perimeter Units Unit Type Make
2 NA NA NA None 80 0 NA NA


ID Square Ft Condo SF Total Basement SF Finished Basement SF Garage SF Carport SF Balcony SF Porch SF
2 800 0 0 0 0 0 0 0


Built As Details for Building 2
ID Built As Square Ft Year Built Stories Length Width
2.00 Shed - Cattle 800 1939 1 40 20


Additional Details for Building 2
ID Detail Type Description Units
2 Add On Shed Frame 242.00





Account Parcel Account Type Tax Year Buildings Actual Value Local Govt Assessed Value School Assessed Value
R2043686 095911121001 Residential 2026 2 914,152 57,130 64,450

Type Code Description Actual Value Local Govt Assessed Value School Assessed Value Acres Land SqFt
Improvement 1212 SINGLE FAMILY RESIDENTIAL IMPROVEMENTS 648,688 40,540 45,730 0.000 0
Land 1112 SINGLE FAMILY RESIDENTIAL-LAND 265,464 16,590 18,720 4.460 194,278
Totals - - 914,152 57,130 64,450 4.460 194,278


Account Parcel Account Type Tax Year Buildings Actual Value Local Govt Assessed Value School Assessed Value
R2043686 095911121001 Residential 2026 2 914,152 57,130 64,450

Tax Area District ID District Name Local Govt
Mill Levy
School
Mill Levy
Estimated
Taxes
0600 0700 AIMS JUNIOR COLLEGE 6.313 0.000 $360.66
0600 0411 GREELEY CITY 11.274 0.000 $644.08
0600 1050 HIGH PLAINS LIBRARY 3.044 0.000 $173.90
0600 0301 NORTHERN COLORADO WATER (NCW) 1.000 0.000 $57.13
0600 0206 SCHOOL DIST 6-GREELEY 0.000 47.615 $3,068.79
0600 0100 WELD COUNTY 15.956 0.000 $911.57
Total - - 37.587 47.615 $5,216.13


The estimate of tax is based on the prior year mill levy and the 2025 projected assessment rates. Mill levies and tax estimates will be updated yearly on December 22nd for the current year. Additional information can be found at https://assessor.weld.gov










Select Reports to Print: