Account: R2049103
April 4, 2026
| Account | Parcel | Account Type | Tax Year | Buildings | Actual Value | Local Govt Assessed Value | School Assessed Value |
|---|---|---|---|---|---|---|---|
| R2049103 | 095909316001 | Residential | 2026 | 1 | 430,000 | 26,870 | 30,310 |
| Legal |
|---|
| GR WVRA L1 BLK2 WESTRIDGE VILLAGE REPLAT A |
| Subdivision | Block | Lot | Land Economic Area |
|---|---|---|---|
| WESTRIDGE VILLAGE RPLT A | 2 | 1 | WESTRIDGE VILLAGE |
| Property Address | Property City | Section | Township | Range |
|---|---|---|---|---|
| 6552 18TH ST | GREELEY | 09 | 05 | 66 |
| Account | Parcel | Account Type | Tax Year | Buildings | Actual Value | Local Govt Assessed Value | School Assessed Value |
|---|---|---|---|---|---|---|---|
| R2049103 | 095909316001 | Residential | 2026 | 1 | 430,000 | 26,870 | 30,310 |
| Account | Owner Name | Address |
|---|---|---|
| R2049103 | JENSEN DIANA R | 1109 BELLEVIEW DR FORT COLLINS, CO 805263837 |
| Account | Parcel | Account Type | Tax Year | Buildings | Actual Value | Local Govt Assessed Value | School Assessed Value |
|---|---|---|---|---|---|---|---|
| R2049103 | 095909316001 | Residential | 2026 | 1 | 430,000 | 26,870 | 30,310 |
| Reception | Rec Date | Type | Grantor | Grantee | Doc Fee | Sale Date | Sale Price |
|---|---|---|---|---|---|---|---|
| 3054040 | NA | SUB | SUBDIVISION | WESTRIDGE VILLAGE RPLT A | 0.00 | NA | 0 |
| 3212627 | 08-25-2004 | WD | BOEDECKER POINTE LLC | FLINT QUALITY CONSTRUCTORS INCORPORATED | 5.40 | 08-24-2004 | 54,000 |
| 3254833 | 01-20-2005 | WD | FLINT QUALITY CONSTRUCTORS INCORPORATED | VAN SOEST LINDSAY J | 22.00 | 01-19-2005 | 220,000 |
| 3381853 | 04-25-2006 | QCN | VAN SOEST LINDSAY J | VAN SOEST LINDSAY J & | 0.00 | 04-24-2006 | 0 |
| 3449199 | 01-17-2007 | QCN | VAN SOEST LINDSAY J & | GENTLE LINDSAY J & | 0.00 | 01-09-2007 | 0 |
| 3526025 | 12-27-2007 | QCN | GENTLE LINDSAY J & | GENTLE LINDSAY J & | 0.00 | 12-20-2007 | 0 |
| 3809672 | 12-05-2011 | WD | GENTLE CHRISTOPHER RYAN | HARRISON WENDY ANNE | 20.40 | 12-02-2011 | 204,000 |
| 4323720 | 08-02-2017 | WD | HARRISON WENDY ANNE | YOUNG RANDY J | 32.60 | 07-31-2017 | 326,000 |
| 4655057 | 11-30-2020 | QCN | YOUNG RANDY J | YOUNG LISA L; YOUNG RANDY J | 0.00 | 11-20-2020 | 0 |
| 4894480 | 04-25-2023 | SWD | YOUNG RANDY J; YOUNG LISA L | ROSSMAN JENNA; HOFF DOROTHY | 49.80 | 04-21-2023 | 498,000 |
| 4935212 | 12-13-2023 | WD | ROSSMAN JENNA; HOFF DOROTHY | JENSEN DIANA R | 43.00 | 12-12-2023 | 430,000 |
*If the hyperlink for the reception number does not work, try a manual search in the Clerk and Recorder records. Use the Grantor or Grantee in your search.
| Account | Parcel | Account Type | Tax Year | Buildings | Actual Value | Local Govt Assessed Value | School Assessed Value |
|---|---|---|---|---|---|---|---|
| R2049103 | 095909316001 | Residential | 2026 | 1 | 430,000 | 26,870 | 30,310 |
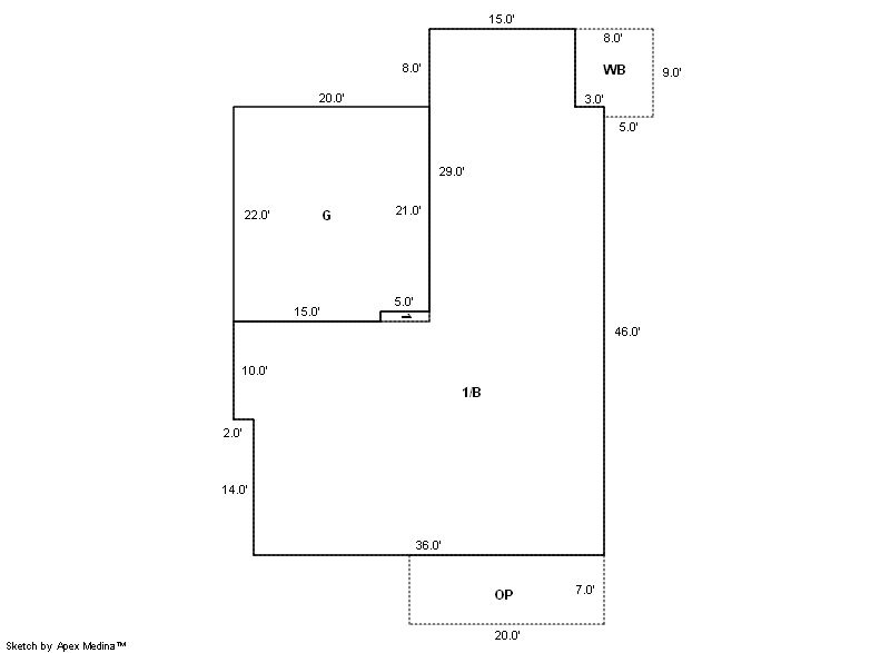
Building 1
| AccountNo | Building ID | Occupancy |
|---|---|---|
| R2049103 | 1 | Single Family Residential |
| ID | Type | NBHD | Occupancy | % Complete | Bedrooms | Baths |
|---|---|---|---|---|---|---|
| 1 | Residential | 2G4025 | Single Family Residential | 100 | 4 | 3.00 |
| ID | Exterior | Roof Cover | Interior | HVAC | Perimeter | Units | Unit Type | Make |
|---|---|---|---|---|---|---|---|---|
| 1 | Frame Siding | Composition Shingle | Drywall | Central Air to Air | 0 | 0 | NA | NA |
| ID | Square Ft | Condo SF | Total Basement SF | Finished Basement SF | Garage SF | Carport SF | Balcony SF | Porch SF |
|---|---|---|---|---|---|---|---|---|
| 1 | 1,405 | 0 | 1,400 | 1,400 | 435 | 0 | 69 | 140 |
| ID | Built As | Square Ft | Year Built | Stories | Length | Width |
|---|---|---|---|---|---|---|
| 1.00 | Ranch 1 Story | 1,405 | 2004 | 1 | 0 | 0 |
| ID | Detail Type | Description | Units |
|---|---|---|---|
| 1 | Add On | Fireplace Gas | 1.00 |
| 1 | Balcony | Wood Wood Fin | 69.00 |
| 1 | Basement | Finished | 1400.00 |
| 1 | Basement | Total Basement SF | 1400.00 |
| 1 | Fixture | Full Bath | 3.00 |
| 1 | Fixture | Wet Bar | 1.00 |
| 1 | Garage | Attached | 435.00 |
| 1 | Porch | Slab Roof Ceil | 140.00 |
| Account | Parcel | Account Type | Tax Year | Buildings | Actual Value | Local Govt Assessed Value | School Assessed Value |
|---|---|---|---|---|---|---|---|
| R2049103 | 095909316001 | Residential | 2026 | 1 | 430,000 | 26,870 | 30,310 |
| Type | Code | Description | Actual Value | Local Govt Assessed Value | School Assessed Value | Acres | Land SqFt |
|---|---|---|---|---|---|---|---|
| Improvement | 1212 | SINGLE FAMILY RESIDENTIAL IMPROVEMENTS | 365,000 | 22,810 | 25,730 | 0.000 | 0 |
| Land | 1112 | SINGLE FAMILY RESIDENTIAL-LAND | 65,000 | 4,060 | 4,580 | 0.073 | 3,196 |
| Totals | - | - | 430,000 | 26,870 | 30,310 | 0.073 | 3,196 |
Comparable sales for your Residential or Commercial property may be found using our SALES SEARCH TOOL
Values are updated annually on May 1st for Real Property and June 15th for Personal Property and Oil and Gas.
| Account | Parcel | Account Type | Tax Year | Buildings | Actual Value | Local Govt Assessed Value | School Assessed Value |
|---|---|---|---|---|---|---|---|
| R2049103 | 095909316001 | Residential | 2026 | 1 | 430,000 | 26,870 | 30,310 |
| Tax Area | District ID | District Name | Local Govt Mill Levy |
School Mill Levy |
Estimated Taxes |
|---|---|---|---|---|---|
| 0683 | 0700 | AIMS JUNIOR COLLEGE | 6.313 | 0.000 | $169.63 |
| 0683 | 0411 | GREELEY CITY | 11.274 | 0.000 | $302.93 |
| 0683 | 1050 | HIGH PLAINS LIBRARY | 3.044 | 0.000 | $81.79 |
| 0683 | 0301 | NORTHERN COLORADO WATER (NCW) | 1.000 | 0.000 | $26.87 |
| 0683 | 0206 | SCHOOL DIST 6-GREELEY | 0.000 | 47.615 | $1,443.21 |
| 0683 | 0100 | WELD COUNTY | 15.956 | 0.000 | $428.74 |
| 0683 | 1200 | WEST GREELEY CONSERVATION | 0.414 | 0.000 | $11.12 |
| Total | - | - | 38.001 | 47.615 | $2,464.30 |
The estimate of tax is based on the prior year mill levy and the 2025 projected assessment rates. Mill levies and tax estimates will be updated yearly on December 22nd for the current year. Additional information can be found at https://assessor.weld.gov



