Account: R2051503
April 5, 2026
| Account | Parcel | Account Type | Tax Year | Buildings | Actual Value | Local Govt Assessed Value | School Assessed Value |
|---|---|---|---|---|---|---|---|
| R2051503 | 095909317010 | Residential | 2026 | 1 | 492,857 | 30,800 | 34,740 |
| Legal |
|---|
| GR WVRA L10 BLK3 WESTRIDGE VILLAGE REPLAT A |
| Subdivision | Block | Lot | Land Economic Area |
|---|---|---|---|
| WESTRIDGE VILLAGE RPLT A | 3 | 10 | WESTRIDGE VILLAGE |
| Property Address | Property City | Section | Township | Range |
|---|---|---|---|---|
| 6513 18TH STREET RD | GREELEY | 09 | 05 | 66 |
| Account | Parcel | Account Type | Tax Year | Buildings | Actual Value | Local Govt Assessed Value | School Assessed Value |
|---|---|---|---|---|---|---|---|
| R2051503 | 095909317010 | Residential | 2026 | 1 | 492,857 | 30,800 | 34,740 |
| Account | Owner Name | Address |
|---|---|---|
| R2051503 | PARKER JACK L | 6513 18TH STREET RD GREELEY, CO 806347959 |
| R2051503 | PARKER SALLIE B |
| Account | Parcel | Account Type | Tax Year | Buildings | Actual Value | Local Govt Assessed Value | School Assessed Value |
|---|---|---|---|---|---|---|---|
| R2051503 | 095909317010 | Residential | 2026 | 1 | 492,857 | 30,800 | 34,740 |
| Reception | Rec Date | Type | Grantor | Grantee | Doc Fee | Sale Date | Sale Price |
|---|---|---|---|---|---|---|---|
| 3054040 | NA | SUB | SUBDIVISION | WESTRIDGE VILLAGE RPLT A | 0.00 | NA | 0 |
| 3220230 | 09-20-2004 | WD | BOEDECKER POINTE LLC | WBJP5 LLC | 5.30 | 09-15-2004 | 53,000 |
| 4238148 | 09-20-2016 | WD | WBJP5 LLC | YOUNG JEFF | 4.50 | 09-20-2016 | 45,000 |
| 4308871 | 06-08-2017 | WD | YOUNG JEFF | PARKER JACK L; PARKER SALLIE B | 34.44 | 06-06-2017 | 344,400 |
*If the hyperlink for the reception number does not work, try a manual search in the Clerk and Recorder records. Use the Grantor or Grantee in your search.
| Account | Parcel | Account Type | Tax Year | Buildings | Actual Value | Local Govt Assessed Value | School Assessed Value |
|---|---|---|---|---|---|---|---|
| R2051503 | 095909317010 | Residential | 2026 | 1 | 492,857 | 30,800 | 34,740 |
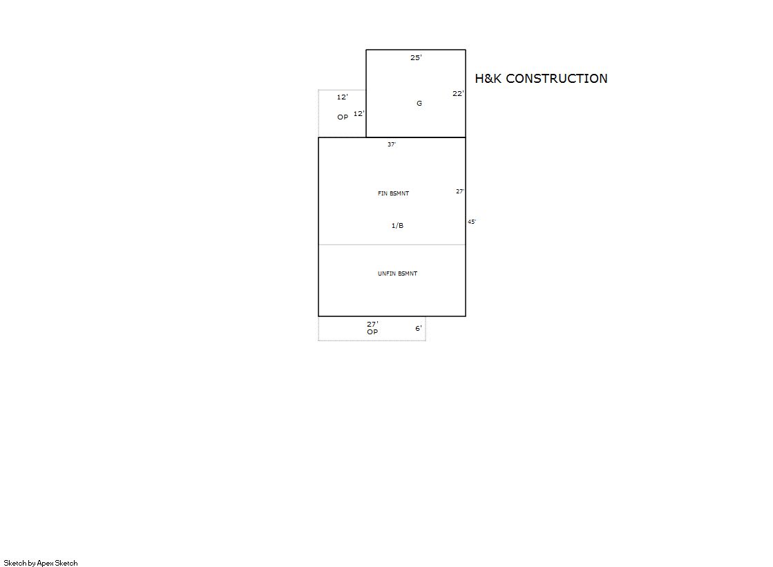
Building 1
| AccountNo | Building ID | Occupancy |
|---|---|---|
| R2051503 | 1 | Single Family Residential |
| ID | Type | NBHD | Occupancy | % Complete | Bedrooms | Baths |
|---|---|---|---|---|---|---|
| 1 | Residential | 2G4025 | Single Family Residential | 100 | 3 | 3.00 |
| ID | Exterior | Roof Cover | Interior | HVAC | Perimeter | Units | Unit Type | Make |
|---|---|---|---|---|---|---|---|---|
| 1 | Frame Siding | Composition Shingle | Drywall | Central Air to Air | 164 | 0 | NA | NA |
| ID | Square Ft | Condo SF | Total Basement SF | Finished Basement SF | Garage SF | Carport SF | Balcony SF | Porch SF |
|---|---|---|---|---|---|---|---|---|
| 1 | 1,665 | 0 | 1,665 | 999 | 550 | 0 | 0 | 306 |
| ID | Built As | Square Ft | Year Built | Stories | Length | Width |
|---|---|---|---|---|---|---|
| 1.00 | Ranch 1 Story | 1,665 | 2016 | 1 | 0 | 0 |
| ID | Detail Type | Description | Units |
|---|---|---|---|
| 1 | Add On | Fireplace Gas | 1.00 |
| 1 | Basement | Finished | 999.00 |
| 1 | Basement | Total Basement SF | 1665.00 |
| 1 | Fixture | Full Bath | 3.00 |
| 1 | Garage | Attached | 550.00 |
| 1 | Porch | Slab Roof Ceil | 306.00 |
| Account | Parcel | Account Type | Tax Year | Buildings | Actual Value | Local Govt Assessed Value | School Assessed Value |
|---|---|---|---|---|---|---|---|
| R2051503 | 095909317010 | Residential | 2026 | 1 | 492,857 | 30,800 | 34,740 |
| Type | Code | Description | Actual Value | Local Govt Assessed Value | School Assessed Value | Acres | Land SqFt |
|---|---|---|---|---|---|---|---|
| Improvement | 1212 | SINGLE FAMILY RESIDENTIAL IMPROVEMENTS | 427,857 | 26,740 | 30,160 | 0.000 | 0 |
| Land | 1112 | SINGLE FAMILY RESIDENTIAL-LAND | 65,000 | 4,060 | 4,580 | 0.073 | 3,196 |
| Totals | - | - | 492,857 | 30,800 | 34,740 | 0.073 | 3,196 |
Comparable sales for your Residential or Commercial property may be found using our SALES SEARCH TOOL
Values are updated annually on May 1st for Real Property and June 15th for Personal Property and Oil and Gas.
| Account | Parcel | Account Type | Tax Year | Buildings | Actual Value | Local Govt Assessed Value | School Assessed Value |
|---|---|---|---|---|---|---|---|
| R2051503 | 095909317010 | Residential | 2026 | 1 | 492,857 | 30,800 | 34,740 |
| Tax Area | District ID | District Name | Local Govt Mill Levy |
School Mill Levy |
Estimated Taxes |
|---|---|---|---|---|---|
| 0683 | 0700 | AIMS JUNIOR COLLEGE | 6.313 | 0.000 | $194.44 |
| 0683 | 0411 | GREELEY CITY | 11.274 | 0.000 | $347.24 |
| 0683 | 1050 | HIGH PLAINS LIBRARY | 3.044 | 0.000 | $93.76 |
| 0683 | 0301 | NORTHERN COLORADO WATER (NCW) | 1.000 | 0.000 | $30.80 |
| 0683 | 0206 | SCHOOL DIST 6-GREELEY | 0.000 | 47.615 | $1,654.15 |
| 0683 | 0100 | WELD COUNTY | 15.956 | 0.000 | $491.44 |
| 0683 | 1200 | WEST GREELEY CONSERVATION | 0.414 | 0.000 | $12.75 |
| Total | - | - | 38.001 | 47.615 | $2,824.58 |
The estimate of tax is based on the prior year mill levy and the 2025 projected assessment rates. Mill levies and tax estimates will be updated yearly on December 22nd for the current year. Additional information can be found at https://assessor.weld.gov


