Account: R2094486
April 4, 2026
| Account | Parcel | Account Type | Tax Year | Buildings | Actual Value | Local Govt Assessed Value | School Assessed Value |
|---|---|---|---|---|---|---|---|
| R2094486 | 095911328002 | Residential | 2026 | 1 | 480,474 | 30,030 | 33,880 |
| Legal |
|---|
| GR 5CC2-2 L2 BLK2 COUNTRY CLUB ESTATES FILING #5 |
| Subdivision | Block | Lot | Land Economic Area |
|---|---|---|---|
| COUNTRY CLUB ESTATES FG#5 | 2 | 2 | COUNTRY CLUB ESTATES |
| Property Address | Property City | Section | Township | Range |
|---|---|---|---|---|
| 4273 W 15TH STREET RD | GREELEY | 11 | 05 | 66 |
| Account | Parcel | Account Type | Tax Year | Buildings | Actual Value | Local Govt Assessed Value | School Assessed Value |
|---|---|---|---|---|---|---|---|
| R2094486 | 095911328002 | Residential | 2026 | 1 | 480,474 | 30,030 | 33,880 |
| Account | Owner Name | Address |
|---|---|---|
| R2094486 | CAMPBELL ERIC E | 4273 W 15TH STREET RD GREELEY, CO 806343129 |
| R2094486 | CAMPBELL BRANDIE R ARCHER |
| Account | Parcel | Account Type | Tax Year | Buildings | Actual Value | Local Govt Assessed Value | School Assessed Value |
|---|---|---|---|---|---|---|---|
| R2094486 | 095911328002 | Residential | 2026 | 1 | 480,474 | 30,030 | 33,880 |
| Reception | Rec Date | Type | Grantor | Grantee | Doc Fee | Sale Date | Sale Price |
|---|---|---|---|---|---|---|---|
| 02022504 | 08-27-1985 | WDN | 0.00 | 01-01-1900 | 0 | ||
| 1898858 | NA | SUB | SUBDIVISION | COUNTRY CLUB ESTATES 5TH | 0.00 | NA | 0 |
| 2088203 | 02-12-1987 | WD | ADJAC CONSTRUCTION CO | ESTRICK JACK D & MARJORIE A | 9.00 | 02-06-1987 | 90,000 |
| 2298640 | 08-03-1992 | WD | ESTRICK JACK D & MARJORIE A | ROCKY MOUNTAIN CONFERENCE UNIT | 14.49 | 07-31-1992 | 144,900 |
| 3888164 | 11-13-2012 | WD | ROCKY MOUNTAIN CONFERENCE UNITED METHODIST CHURCH | CAMPBELL ERIC E | 22.00 | 11-09-2012 | 220,000 |
*If the hyperlink for the reception number does not work, try a manual search in the Clerk and Recorder records. Use the Grantor or Grantee in your search.
| Account | Parcel | Account Type | Tax Year | Buildings | Actual Value | Local Govt Assessed Value | School Assessed Value |
|---|---|---|---|---|---|---|---|
| R2094486 | 095911328002 | Residential | 2026 | 1 | 480,474 | 30,030 | 33,880 |
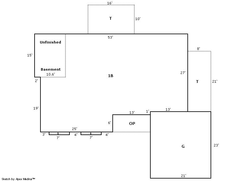
Building 1
| AccountNo | Building ID | Occupancy |
|---|---|---|
| R2094486 | 1 | Single Family Residential |
| ID | Type | NBHD | Occupancy | % Complete | Bedrooms | Baths |
|---|---|---|---|---|---|---|
| 1 | Residential | 2G4012 | Single Family Residential | 100 | 4 | 3.00 |
| ID | Exterior | Roof Cover | Interior | HVAC | Perimeter | Units | Unit Type | Make |
|---|---|---|---|---|---|---|---|---|
| 1 | Frame Siding | Comp Shingle Heavy | Drywall | Central Air to Air | 0 | 0 | NA | NA |
| ID | Square Ft | Condo SF | Total Basement SF | Finished Basement SF | Garage SF | Carport SF | Balcony SF | Porch SF |
|---|---|---|---|---|---|---|---|---|
| 1 | 1,609 | 0 | 1,595 | 1,436 | 483 | 0 | 0 | 78 |
| ID | Built As | Square Ft | Year Built | Stories | Length | Width |
|---|---|---|---|---|---|---|
| 1.00 | Ranch 1 Story | 1,609 | 1985 | 1 | 0 | 0 |
| ID | Detail Type | Description | Units |
|---|---|---|---|
| 1 | Add On | Fireplace Wood | 1.00 |
| 1 | Basement | Finished | 1436.00 |
| 1 | Basement | Total Basement SF | 1595.00 |
| 1 | Fixture | Full Bath | 3.00 |
| 1 | Garage | Attached | 483.00 |
| 1 | Porch | Open Slab | 328.00 |
| 1 | Porch | Slab Roof Ceil | 78.00 |
| Account | Parcel | Account Type | Tax Year | Buildings | Actual Value | Local Govt Assessed Value | School Assessed Value |
|---|---|---|---|---|---|---|---|
| R2094486 | 095911328002 | Residential | 2026 | 1 | 480,474 | 30,030 | 33,880 |
| Type | Code | Description | Actual Value | Local Govt Assessed Value | School Assessed Value | Acres | Land SqFt |
|---|---|---|---|---|---|---|---|
| Improvement | 1212 | SINGLE FAMILY RESIDENTIAL IMPROVEMENTS | 390,474 | 24,400 | 27,530 | 0.000 | 0 |
| Land | 1112 | SINGLE FAMILY RESIDENTIAL-LAND | 90,000 | 5,630 | 6,350 | 0.207 | 9,006 |
| Totals | - | - | 480,474 | 30,030 | 33,880 | 0.207 | 9,006 |
Comparable sales for your Residential or Commercial property may be found using our SALES SEARCH TOOL
Values are updated annually on May 1st for Real Property and June 15th for Personal Property and Oil and Gas.
| Account | Parcel | Account Type | Tax Year | Buildings | Actual Value | Local Govt Assessed Value | School Assessed Value |
|---|---|---|---|---|---|---|---|
| R2094486 | 095911328002 | Residential | 2026 | 1 | 480,474 | 30,030 | 33,880 |
| Tax Area | District ID | District Name | Local Govt Mill Levy |
School Mill Levy |
Estimated Taxes |
|---|---|---|---|---|---|
| 0600 | 0700 | AIMS JUNIOR COLLEGE | 6.313 | 0.000 | $189.58 |
| 0600 | 0411 | GREELEY CITY | 11.274 | 0.000 | $338.56 |
| 0600 | 1050 | HIGH PLAINS LIBRARY | 3.044 | 0.000 | $91.41 |
| 0600 | 0301 | NORTHERN COLORADO WATER (NCW) | 1.000 | 0.000 | $30.03 |
| 0600 | 0206 | SCHOOL DIST 6-GREELEY | 0.000 | 47.615 | $1,613.20 |
| 0600 | 0100 | WELD COUNTY | 15.956 | 0.000 | $479.16 |
| Total | - | - | 37.587 | 47.615 | $2,741.93 |
The estimate of tax is based on the prior year mill levy and the 2025 projected assessment rates. Mill levies and tax estimates will be updated yearly on December 22nd for the current year. Additional information can be found at https://assessor.weld.gov



