Account: R2150003
April 1, 2026
| Account | Parcel | Account Type | Tax Year | Buildings | Actual Value | Local Govt Assessed Value | School Assessed Value |
|---|---|---|---|---|---|---|---|
| R2150003 | 130524200035 | Residential | 2026 | 3 | 497,798 | 31,110 | 35,090 |
| Legal |
|---|
| PT NW4 24-2-64 LOT A REC EXEMPT RE-3278 (.12R) |
| Subdivision | Block | Lot | Land Economic Area |
|---|---|---|---|
| ECON 5 RURAL |
| Property Address | Property City | Section | Township | Range |
|---|---|---|---|---|
| 8730 COUNTY ROAD 59 | WELD | 24 | 02 | 64 |
| Account | Parcel | Account Type | Tax Year | Buildings | Actual Value | Local Govt Assessed Value | School Assessed Value |
|---|---|---|---|---|---|---|---|
| R2150003 | 130524200035 | Residential | 2026 | 3 | 497,798 | 31,110 | 35,090 |
| Account | Owner Name | Address |
|---|---|---|
| R2150003 | COEN COLBY SCOTT | 8730 COUNTY ROAD 59 KEENESBURG, CO 806439625 |
| R2150003 | COEN LINDSEY ANNE | |
| R2150003 | JENKS ALAN DAVID |
| Account | Parcel | Account Type | Tax Year | Buildings | Actual Value | Local Govt Assessed Value | School Assessed Value |
|---|---|---|---|---|---|---|---|
| R2150003 | 130524200035 | Residential | 2026 | 3 | 497,798 | 31,110 | 35,090 |
| Reception | Rec Date | Type | Grantor | Grantee | Doc Fee | Sale Date | Sale Price |
|---|---|---|---|---|---|---|---|
| 3002255 | 11-05-2002 | RE | RE-3278 | RE-3278 | 0.00 | 11-05-2002 | 0 |
| 3002255 | 11-05-2002 | RE | RECORDED EXEMPTION | RE-3278 | 0.00 | NA | 0 |
| 3011215 | 12-04-2002 | WD | ARNOLD DARYL L & | ARNOLD BOYD A & DWIGHT A | 6.50 | 11-27-2002 | 65,000 |
| 3129071 | 11-24-2003 | WD | ARNOLD BOYD A & | LEONARD GLEN A III & | 23.50 | 11-21-2003 | 235,000 |
| 4146127 | 09-30-2015 | PTD | LEONARD SHARON R; LEONARD GLEN A III | ROCKY MOUNTAIN INVESTMENT GROUP LLC | 0.00 | 09-29-2015 | 0 |
| 4179057 | 02-05-2016 | AFFD | AFFIDAVIT OF REAL PROPERTY | AFFIDAVIT OF REAL PROPERTY | 0.00 | 02-05-2016 | 0 |
| 4180141 | 02-11-2016 | WD | ROCKY MOUNTAIN INVESTMENT GROUP LLC | JENKS ALAN DAVID; JENKS SHARON ANNE; COEN COLBY SCOTT | 33.00 | 02-09-2016 | 330,000 |
| 4597862 | 06-10-2020 | QCN | JENKS SHARON ANNE | COEN LINDSEY ANNE | 0.00 | 06-02-2020 | 0 |
*If the hyperlink for the reception number does not work, try a manual search in the Clerk and Recorder records. Use the Grantor or Grantee in your search.
| Account | Parcel | Account Type | Tax Year | Buildings | Actual Value | Local Govt Assessed Value | School Assessed Value |
|---|---|---|---|---|---|---|---|
| R2150003 | 130524200035 | Residential | 2026 | 3 | 497,798 | 31,110 | 35,090 |
Building 1
| AccountNo | Building ID | Occupancy |
|---|---|---|
| R2150003 | 1 | Single Family Residential |
| ID | Type | NBHD | Occupancy | % Complete | Bedrooms | Baths |
|---|---|---|---|---|---|---|
| 1 | Manufactured Hm | 5R0006 | Single Family Residential | 100 | 3 | 2.00 |
| ID | Exterior | Roof Cover | Interior | HVAC | Perimeter | Units | Unit Type | Make |
|---|---|---|---|---|---|---|---|---|
| 1 | Vinyl Siding | Shingle Comp | Drywall | Central Air to Air | 200 | 0 | NA | NA |
| ID | Square Ft | Condo SF | Total Basement SF | Finished Basement SF | Garage SF | Carport SF | Balcony SF | Porch SF |
|---|---|---|---|---|---|---|---|---|
| 1 | 2,176 | 0 | 0 | 0 | 0 | 0 | 0 | 300 |
| ID | Built As | Square Ft | Year Built | Stories | Length | Width |
|---|---|---|---|---|---|---|
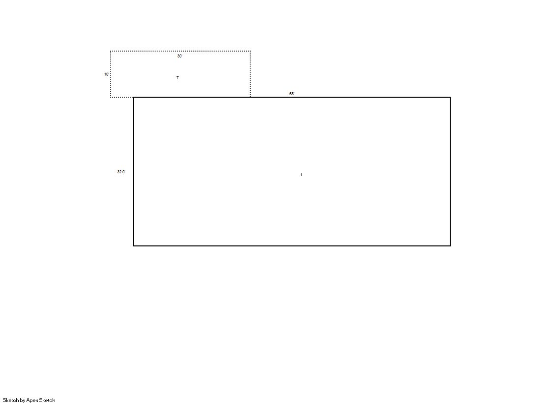
| 1.00 | Mnfctrd Home 1 Story | 2,176 | 2003 | 1 | 68 | 32 |
| ID | Detail Type | Description | Units |
|---|---|---|---|
| 1 | Fixture | Full Bath | 2.00 |
| 1 | Porch | Open Slab | 300.00 |
Building 2
| AccountNo | Building ID | Occupancy |
|---|---|---|
| R2150003 | 2 | Quonset |
| ID | Type | NBHD | Occupancy | % Complete | Bedrooms | Baths |
|---|---|---|---|---|---|---|
| 2 | Out Building | NA | Quonset | 100 | 0 | 0.00 |
| ID | Exterior | Roof Cover | Interior | HVAC | Perimeter | Units | Unit Type | Make |
|---|---|---|---|---|---|---|---|---|
| 2 | NA | NA | NA | None | NA | 0 | NA | NA |
| ID | Square Ft | Condo SF | Total Basement SF | Finished Basement SF | Garage SF | Carport SF | Balcony SF | Porch SF |
|---|---|---|---|---|---|---|---|---|
| 2 | 980 | 0 | 0 | 0 | 0 | 0 | 0 | 0 |
| ID | Built As | Square Ft | Year Built | Stories | Length | Width |
|---|---|---|---|---|---|---|
| 2.00 | Quonset | 980 | 2002 | 1 | 49 | 20 |
No Additional Details for Building 2
Building 3
| AccountNo | Building ID | Occupancy |
|---|---|---|
| R2150003 | 3 | Utility Building |
| ID | Type | NBHD | Occupancy | % Complete | Bedrooms | Baths |
|---|---|---|---|---|---|---|
| 3 | Out Building | NA | Utility Building | 100 | NA | 0.00 |
| ID | Exterior | Roof Cover | Interior | HVAC | Perimeter | Units | Unit Type | Make |
|---|---|---|---|---|---|---|---|---|
| 3 | NA | NA | NA | NA | 96 | 0 | NA | NA |
| ID | Square Ft | Condo SF | Total Basement SF | Finished Basement SF | Garage SF | Carport SF | Balcony SF | Porch SF |
|---|---|---|---|---|---|---|---|---|
| 3 | 576 | 0 | 0 | 0 | 0 | 0 | 0 | 0 |
| ID | Built As | Square Ft | Year Built | Stories | Length | Width |
|---|---|---|---|---|---|---|
| 3.00 | Utility Building | 576 | 2018 | 1 | 24 | 24 |
No Additional Details for Building 3
| Account | Parcel | Account Type | Tax Year | Buildings | Actual Value | Local Govt Assessed Value | School Assessed Value |
|---|---|---|---|---|---|---|---|
| R2150003 | 130524200035 | Residential | 2026 | 3 | 497,798 | 31,110 | 35,090 |
| Type | Code | Description | Actual Value | Local Govt Assessed Value | School Assessed Value | Acres | Land SqFt |
|---|---|---|---|---|---|---|---|
| Improvement | 1212 | SINGLE FAMILY RESIDENTIAL IMPROVEMENTS | 373,334 | 23,330 | 26,320 | 0.000 | 0 |
| Land | 1112 | SINGLE FAMILY RESIDENTIAL-LAND | 124,464 | 7,780 | 8,770 | 2.670 | 116,305 |
| Totals | - | - | 497,798 | 31,110 | 35,090 | 2.670 | 116,305 |
Comparable sales for your Residential or Commercial property may be found using our SALES SEARCH TOOL
Values are updated annually on May 1st for Real Property and June 15th for Personal Property and Oil and Gas.
| Account | Parcel | Account Type | Tax Year | Buildings | Actual Value | Local Govt Assessed Value | School Assessed Value |
|---|---|---|---|---|---|---|---|
| R2150003 | 130524200035 | Residential | 2026 | 3 | 497,798 | 31,110 | 35,090 |
| Tax Area | District ID | District Name | Local Govt Mill Levy |
School Mill Levy |
Estimated Taxes |
|---|---|---|---|---|---|
| 2445 | 0700 | AIMS JUNIOR COLLEGE | 6.313 | 0.000 | $196.40 |
| 2445 | 0302 | CENTRAL COLORADO WATER (CCW) | 0.980 | 0.000 | $30.49 |
| 2445 | 1050 | HIGH PLAINS LIBRARY | 3.044 | 0.000 | $94.70 |
| 2445 | 0518 | S. E. WELD FIRE | 10.470 | 0.000 | $325.72 |
| 2445 | 0203 | SCHOOL DIST RE3J-KEENESBURG | 0.000 | 15.822 | $555.19 |
| 2445 | 1208 | SOUTHEAST WELD CONSERVATION | 0.000 | 0.000 | $0.00 |
| 2445 | 0100 | WELD COUNTY | 15.956 | 0.000 | $496.39 |
| Total | - | - | 36.763 | 15.822 | $1,698.89 |
The estimate of tax is based on the prior year mill levy and the 2025 projected assessment rates. Mill levies and tax estimates will be updated yearly on December 22nd for the current year. Additional information can be found at https://assessor.weld.gov


