Account: R2151003
April 1, 2026
| Account | Parcel | Account Type | Tax Year | Buildings | Actual Value | Local Govt Assessed Value | School Assessed Value |
|---|---|---|---|---|---|---|---|
| R2151003 | 147316400016 | Agricultural | 2026 | 1 | 221,722 | 13,870 | 15,650 |
| Legal |
|---|
| PT SE4 16-1-65 SUB EXEMPT SE-935 |
| Subdivision | Block | Lot | Land Economic Area |
|---|---|---|---|
| ECON 5 RURAL |
| Property Address | Property City | Section | Township | Range |
|---|---|---|---|---|
| 20711 INTERSTATE 76 FRONTAGE RD | WELD | 16 | 01 | 65 |
| Account | Parcel | Account Type | Tax Year | Buildings | Actual Value | Local Govt Assessed Value | School Assessed Value |
|---|---|---|---|---|---|---|---|
| R2151003 | 147316400016 | Agricultural | 2026 | 1 | 221,722 | 13,870 | 15,650 |
| Account | Owner Name | Address |
|---|---|---|
| R2151003 | ALVAREZ-DOMINGUEZ JORGE STEVE | 20711 INTERSTATE 76 # FRONTAGE RD LOCHBUIE, CO 806034000 |
| Account | Parcel | Account Type | Tax Year | Buildings | Actual Value | Local Govt Assessed Value | School Assessed Value |
|---|---|---|---|---|---|---|---|
| R2151003 | 147316400016 | Agricultural | 2026 | 1 | 221,722 | 13,870 | 15,650 |
| Reception | Rec Date | Type | Grantor | Grantee | Doc Fee | Sale Date | Sale Price |
|---|---|---|---|---|---|---|---|
| 2998381 | NA | SE | SUBDIVISION EXEMPTION | SE-935 | 0.00 | NA | 0 |
| 3000098 | 10-29-2002 | WD | SIMPSON LEWIS E TRUST (1/2 INT) & | CASE FAMILY TRUST | 10.00 | 10-24-2002 | 100,000 |
| 4260269 | 12-08-2016 | SWDN | CASE FAMILY TRUST | CASE SURVIVOR A TRUST; CASE BYPASS B TRUST | 0.00 | 12-03-2016 | 0 |
| 4720243 | 05-28-2021 | SURV | LAND SURVEY PLAT | LAND SURVEY PLAT | 0.00 | 05-13-2021 | 0 |
| 4767670 | 10-20-2021 | SWD | CASE SURVIVOR A TRUST; CASE BYPASS B TRUST | ALVAREZ-DOMINGUEZ JORGE STEVE | 50.00 | 10-13-2021 | 500,000 |
*If the hyperlink for the reception number does not work, try a manual search in the Clerk and Recorder records. Use the Grantor or Grantee in your search.
| Account | Parcel | Account Type | Tax Year | Buildings | Actual Value | Local Govt Assessed Value | School Assessed Value |
|---|---|---|---|---|---|---|---|
| R2151003 | 147316400016 | Agricultural | 2026 | 1 | 221,722 | 13,870 | 15,650 |
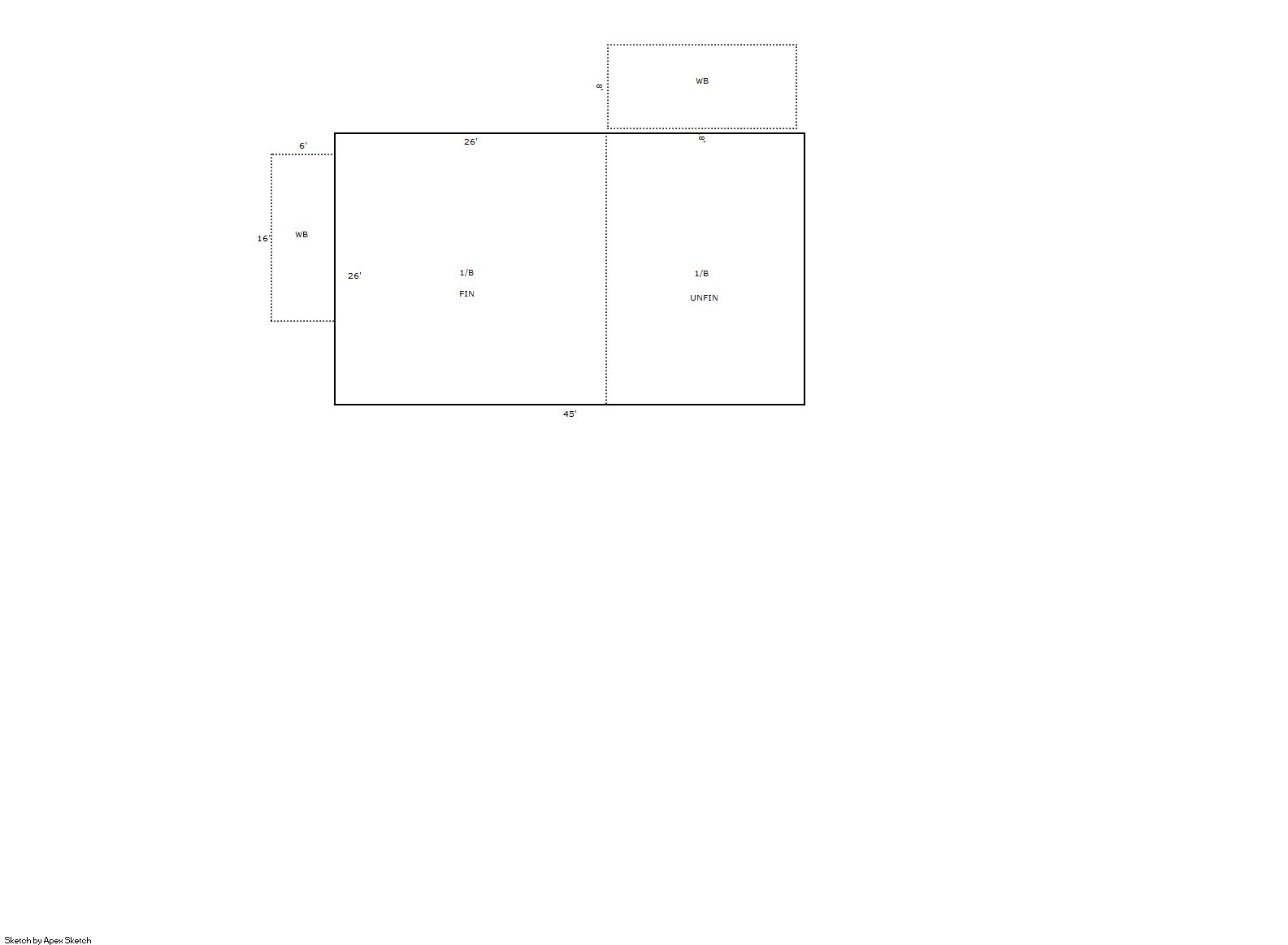
Building 1
| AccountNo | Building ID | Occupancy |
|---|---|---|
| R2151003 | 1 | Single Family Residential on Ag |
| ID | Type | NBHD | Occupancy | % Complete | Bedrooms | Baths |
|---|---|---|---|---|---|---|
| 1 | Residential | 5R0008 | Single Family Residential on Ag | 100 | 2 | 2.00 |
| ID | Exterior | Roof Cover | Interior | HVAC | Perimeter | Units | Unit Type | Make |
|---|---|---|---|---|---|---|---|---|
| 1 | Frame Hardboard | Composition Shingle | Drywall | Forced Air | 142 | 0 | NA | NA |
| ID | Square Ft | Condo SF | Total Basement SF | Finished Basement SF | Garage SF | Carport SF | Balcony SF | Porch SF |
|---|---|---|---|---|---|---|---|---|
| 1 | 1,170 | 0 | 1,170 | 676 | 0 | 0 | 240 | 0 |
| ID | Built As | Square Ft | Year Built | Stories | Length | Width |
|---|---|---|---|---|---|---|
| 1.00 | Ranch 1 Story | 1,170 | 1909 | 1 | 0 | 0 |
| ID | Detail Type | Description | Units |
|---|---|---|---|
| 1 | Balcony | Wood Wood Fin | 240.00 |
| 1 | Basement | Finished | 676.00 |
| 1 | Basement | Total Basement SF | 1170.00 |
| 1 | Fixture | Full Bath | 2.00 |
| 1 | Rough In | Rough In | 1.00 |
| Account | Parcel | Account Type | Tax Year | Buildings | Actual Value | Local Govt Assessed Value | School Assessed Value |
|---|---|---|---|---|---|---|---|
| R2151003 | 147316400016 | Agricultural | 2026 | 1 | 221,722 | 13,870 | 15,650 |
| Type | Code | Description | Actual Value | Local Govt Assessed Value | School Assessed Value | Acres | Land SqFt |
|---|---|---|---|---|---|---|---|
| Improvement | 4277 | FARM/RANCH RESIDENCE-IMPS | 221,662 | 13,850 | 15,630 | 0.000 | 0 |
| Land | 4147 | GRAZING LAND-AGRICULTURAL | 60 | 20 | 20 | 2.500 | 108,900 |
| Totals | - | - | 221,722 | 13,870 | 15,650 | 2.500 | 108,900 |
Comparable sales for your Residential or Commercial property may be found using our SALES SEARCH TOOL
Values are updated annually on May 1st for Real Property and June 15th for Personal Property and Oil and Gas.
| Account | Parcel | Account Type | Tax Year | Buildings | Actual Value | Local Govt Assessed Value | School Assessed Value |
|---|---|---|---|---|---|---|---|
| R2151003 | 147316400016 | Agricultural | 2026 | 1 | 221,722 | 13,870 | 15,650 |
| Tax Area | District ID | District Name | Local Govt Mill Levy |
School Mill Levy |
Estimated Taxes |
|---|---|---|---|---|---|
| 2214 | 0700 | AIMS JUNIOR COLLEGE | 6.313 | 0.000 | $87.56 |
| 2214 | 0302 | CENTRAL COLORADO WATER (CCW) | 0.980 | 0.000 | $13.59 |
| 2214 | 0309 | CENTRAL COLORADO WATER SUBDISTRICT (CCS) | 1.462 | 0.000 | $20.28 |
| 2214 | 1050 | HIGH PLAINS LIBRARY | 3.044 | 0.000 | $42.22 |
| 2214 | 0509 | HUDSON FIRE | 12.237 | 0.000 | $169.73 |
| 2214 | 1201 | PLATTE VALLEY CONSERVATION | 0.000 | 0.000 | $0.00 |
| 2214 | 0203 | SCHOOL DIST RE3J-KEENESBURG | 0.000 | 15.822 | $247.61 |
| 2214 | 0100 | WELD COUNTY | 15.956 | 0.000 | $221.31 |
| Total | - | - | 39.992 | 15.822 | $802.30 |
The estimate of tax is based on the prior year mill levy and the 2025 projected assessment rates. Mill levies and tax estimates will be updated yearly on December 22nd for the current year. Additional information can be found at https://assessor.weld.gov


