Account: R2153386

April 1, 2026

Account Parcel Account Type Tax Year Buildings Actual Value Local Govt Assessed Value School Assessed Value
R2153386 095912114060 Residential 2026 1 354,104 22,130 24,970

Legal
GR 3W8-44 L44BLK8 3RD WESTVIEW

Subdivision Block Lot Land Economic Area
WESTVIEW 3RD ADD 8 44 WEST 23RD AVE NORTH OF 16TH ST CORRIDOR

Property Address Property City Section Township Range
2444 W 13TH ST GREELEY 12 05 66




Account Parcel Account Type Tax Year Buildings Actual Value Local Govt Assessed Value School Assessed Value
R2153386 095912114060 Residential 2026 1 354,104 22,130 24,970

Account Owner Name Address
R2153386 HENDRIKSON LEE 2444 W 13TH ST GREELEY, CO 806346402


Account Parcel Account Type Tax Year Buildings Actual Value Local Govt Assessed Value School Assessed Value
R2153386 095912114060 Residential 2026 1 354,104 22,130 24,970

Reception Rec Date Type Grantor Grantee Doc Fee Sale Date Sale Price
1360771 NA SUB SUBDIVISION WESTVIEW 3RD ADD 0.00 NA 0
3527098 01-03-2008 AFFD KUHLMANN LEO H D & KUHLMANN MARILYN E 0.00 01-02-2007 0
3559057 06-05-2008 PRD KUHLMANN MARILYN E CROTEAU SOLON M & 10.00 06-02-2008 100,000
3699846 06-16-2010 QCN CROTEAU SOLON M CROTEAU SOLON M 0.00 06-16-2010 0
3870381 09-04-2012 QCNE CROTEAU SOLON M; CROTEAU CHRISTINE M HENDRICKSON TERESA; HENDRIKSON LEE 0.00 08-27-2012 0
5033500 06-04-2025 DTHC HENDRIKSON TERESA HENDRIKSON LEE 0.00 05-25-2025 0



Account Parcel Account Type Tax Year Buildings Actual Value Local Govt Assessed Value School Assessed Value
R2153386 095912114060 Residential 2026 1 354,104 22,130 24,970

Building 1

AccountNo Building ID Occupancy
R2153386 1 Single Family Residential


ID Type NBHD Occupancy % Complete Bedrooms Baths
1 Residential 6G2034 Single Family Residential 100 3 1.00


ID Exterior Roof Cover Interior HVAC Perimeter Units Unit Type Make
1 Frame Masonry Veneer Composition Shingle Drywall Central Air to Air 0 0 NA NA


ID Square Ft Condo SF Total Basement SF Finished Basement SF Garage SF Carport SF Balcony SF Porch SF
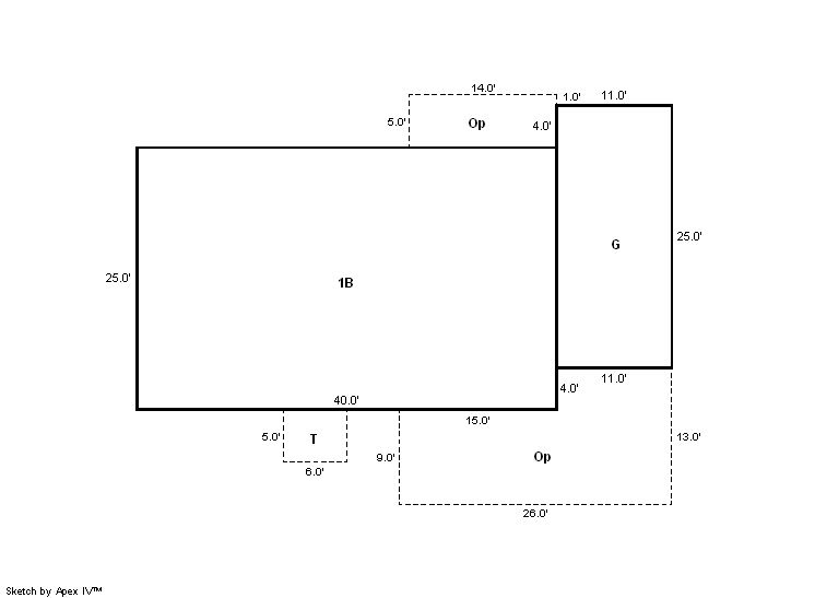
1 1,000 0 1,000 1,000 275 0 0 30


Built As Details for Building 1
ID Built As Square Ft Year Built Stories Length Width
1.00 Ranch 1 Story 1,000 1963 1 0 0


Additional Details for Building 1
ID Detail Type Description Units
1 Basement Finished 1000.00
1 Basement Total Basement SF 1000.00
1 Fixture Full Bath 2.00
1 Garage Attached 275.00
1 Porch Open Slab 30.00
1 Porch Slab Roof Ceil 348.00





Account Parcel Account Type Tax Year Buildings Actual Value Local Govt Assessed Value School Assessed Value
R2153386 095912114060 Residential 2026 1 354,104 22,130 24,970

Type Code Description Actual Value Local Govt Assessed Value School Assessed Value Acres Land SqFt
Improvement 1212 SINGLE FAMILY RESIDENTIAL IMPROVEMENTS 303,104 18,940 21,370 0.000 0
Land 1112 SINGLE FAMILY RESIDENTIAL-LAND 51,000 3,190 3,600 0.190 8,260
Totals - - 354,104 22,130 24,970 0.190 8,260


Account Parcel Account Type Tax Year Buildings Actual Value Local Govt Assessed Value School Assessed Value
R2153386 095912114060 Residential 2026 1 354,104 22,130 24,970

Tax Area District ID District Name Local Govt
Mill Levy
School
Mill Levy
Estimated
Taxes
0600 0700 AIMS JUNIOR COLLEGE 6.313 0.000 $139.71
0600 0411 GREELEY CITY 11.274 0.000 $249.49
0600 1050 HIGH PLAINS LIBRARY 3.044 0.000 $67.36
0600 0301 NORTHERN COLORADO WATER (NCW) 1.000 0.000 $22.13
0600 0206 SCHOOL DIST 6-GREELEY 0.000 47.615 $1,188.95
0600 0100 WELD COUNTY 15.956 0.000 $353.11
Total - - 37.587 47.615 $2,020.75


The estimate of tax is based on the prior year mill levy and the 2025 projected assessment rates. Mill levies and tax estimates will be updated yearly on December 22nd for the current year. Additional information can be found at https://assessor.weld.gov










Select Reports to Print: