Account: R2180486
April 1, 2026
| Account | Parcel | Account Type | Tax Year | Buildings | Actual Value | Local Govt Assessed Value | School Assessed Value |
|---|---|---|---|---|---|---|---|
| R2180486 | 095912204008 | Residential | 2026 | 1 | 351,751 | 21,990 | 24,800 |
| Legal |
|---|
| GR 2WS6-9 L9 BLK6 2ND ADD WILSHIRE |
| Subdivision | Block | Lot | Land Economic Area |
|---|---|---|---|
| WILSHIRE 2ND ADD | 6 | 9 | 35TH AVE SOUTH 10TH ST |
| Property Address | Property City | Section | Township | Range |
|---|---|---|---|---|
| 1039 30TH AVE | GREELEY | 12 | 05 | 66 |
| Account | Parcel | Account Type | Tax Year | Buildings | Actual Value | Local Govt Assessed Value | School Assessed Value |
|---|---|---|---|---|---|---|---|
| R2180486 | 095912204008 | Residential | 2026 | 1 | 351,751 | 21,990 | 24,800 |
| Account | Owner Name | Address |
|---|---|---|
| R2180486 | WELSH DONALD WILLIAM | 1039 30TH AVE GREELEY, CO 806345417 |
| R2180486 | FRANKLIN PEGGY A |
| Account | Parcel | Account Type | Tax Year | Buildings | Actual Value | Local Govt Assessed Value | School Assessed Value |
|---|---|---|---|---|---|---|---|
| R2180486 | 095912204008 | Residential | 2026 | 1 | 351,751 | 21,990 | 24,800 |
| Reception | Rec Date | Type | Grantor | Grantee | Doc Fee | Sale Date | Sale Price |
|---|---|---|---|---|---|---|---|
| 02016462 | 07-10-1985 | WD | BERRY RICHARD LEE; BERRY BONNIE LEIGH | GARRISON R BRUCE; GARRISON VIANN R | 5.06 | 07-05-1985 | 50,600 |
| 1255406 | NA | SUB | SUBDIVISION | WILSHIRE 2ND ADD | 0.00 | NA | 0 |
| 2286572 | 05-01-1992 | WD | GARRISON R BRUCE & VIANN R | CRISLIP LINDA B | 5.39 | 04-29-1992 | 53,900 |
| 2698605 | 06-07-1999 | WD | CRISLIP LINDA B | KOLLAR JASON A & AMEY L | 9.19 | 06-04-1999 | 91,900 |
| 2833629 | 03-20-2001 | WD | KOLLAR JASON A & AMEY L | DURAN ANTHONY K & ROBYN R | 11.20 | 03-19-2001 | 112,000 |
| 3113007 | 10-03-2003 | WD | DURAN ANTHONY K & ROBYN R | KEATON KELLY & | 14.15 | 09-22-2003 | 141,500 |
| 3602793 | 02-02-2009 | QCN | KEATON KELLY | SCHWINDT TODD J | 0.00 | 01-26-2009 | 0 |
| 3916932 | 03-14-2013 | PTDE | SCHWINDT TODD J | EVERBANK | 0.00 | 03-13-2013 | 0 |
| 3920784 | 03-29-2013 | SWDNE | EVERBANK | USA HUD | 0.00 | 03-06-2013 | 0 |
| 3939364 | 06-11-2013 | SWD | SECRETARY OF HOUSING AND URBAN DEVELOPMENT | CODY BRIAN P | 0.00 | 06-10-2013 | 109,100 |
| 4210790 | 06-13-2016 | WD | CODY BRIAN P | PRESTIGE COATING INC | 19.33 | 06-10-2016 | 193,300 |
| 4282660 | 03-02-2017 | WD | PRESTIGE COATING INC | THOMPSON ALLEN | 20.00 | 02-28-2017 | 200,000 |
| 4296524 | 04-25-2017 | WD | THOMPSON ALLEN | WELSH DONALD WILLIAM | 21.20 | 04-24-2017 | 212,000 |
| 4607794 | 07-14-2020 | QCN | WELSH DONALD WILLIAM | FRANKLIN PEGGY H | 0.00 | 07-14-2020 | 0 |
| 4676685 | 01-28-2021 | SWDN | FRANKLIN PEGGY H | FRANKLIN PEGGY A | 0.00 | 11-03-2020 | 0 |
| X0005741 | 07-10-1985 | CON | GARRISON R BRUCE & VIANN R | 5.06 | 07-10-1985 | 50,600 |
*If the hyperlink for the reception number does not work, try a manual search in the Clerk and Recorder records. Use the Grantor or Grantee in your search.
| Account | Parcel | Account Type | Tax Year | Buildings | Actual Value | Local Govt Assessed Value | School Assessed Value |
|---|---|---|---|---|---|---|---|
| R2180486 | 095912204008 | Residential | 2026 | 1 | 351,751 | 21,990 | 24,800 |
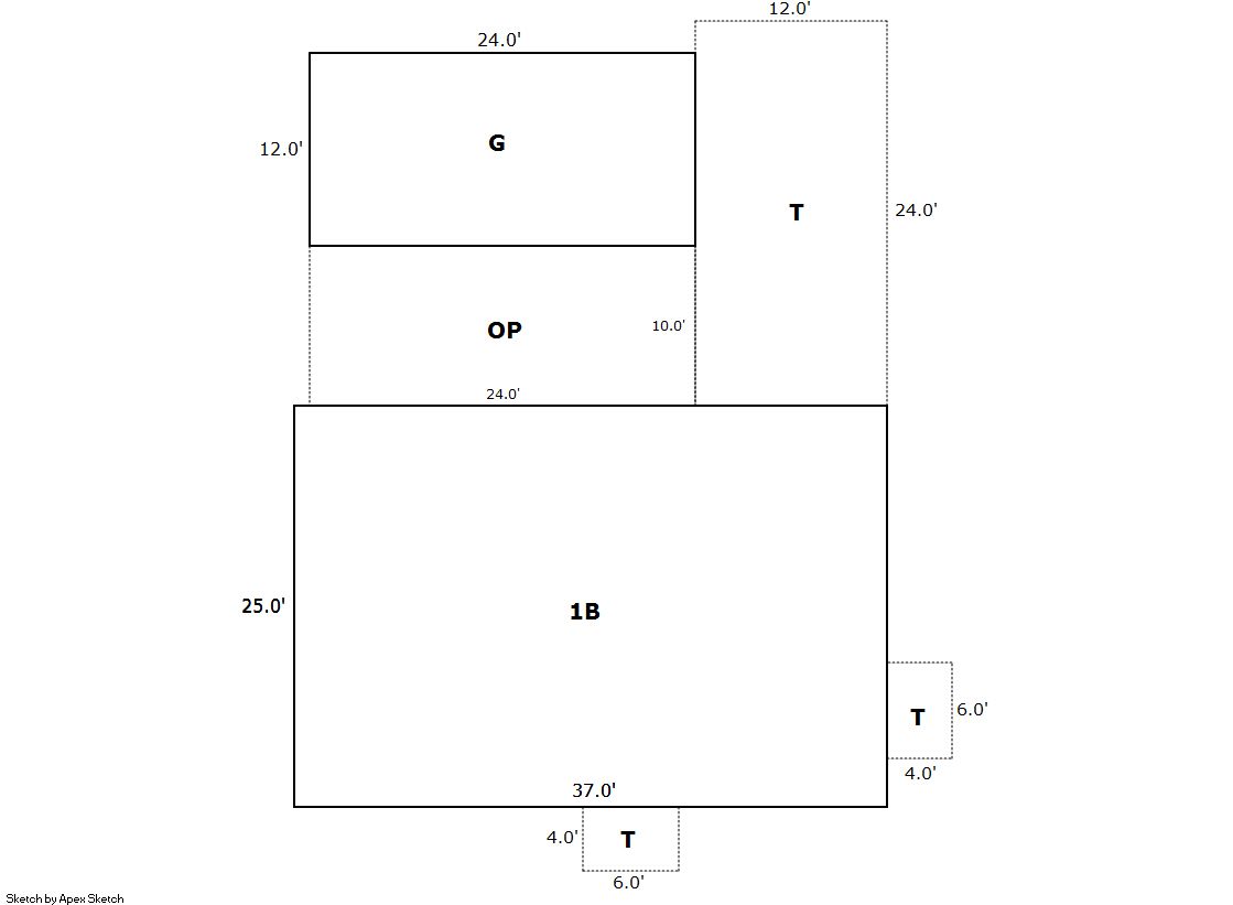
Building 1
| AccountNo | Building ID | Occupancy |
|---|---|---|
| R2180486 | 1 | Single Family Residential |
| ID | Type | NBHD | Occupancy | % Complete | Bedrooms | Baths |
|---|---|---|---|---|---|---|
| 1 | Residential | 6G2034 | Single Family Residential | 100 | 4 | 2.00 |
| ID | Exterior | Roof Cover | Interior | HVAC | Perimeter | Units | Unit Type | Make |
|---|---|---|---|---|---|---|---|---|
| 1 | Frame Masonry Veneer | Composition Shingle | Drywall | Central Air to Air | 0 | 0 | NA | NA |
| ID | Square Ft | Condo SF | Total Basement SF | Finished Basement SF | Garage SF | Carport SF | Balcony SF | Porch SF |
|---|---|---|---|---|---|---|---|---|
| 1 | 925 | 0 | 925 | 833 | 288 | 0 | 0 | 240 |
| ID | Built As | Square Ft | Year Built | Stories | Length | Width |
|---|---|---|---|---|---|---|
| 1.00 | Ranch 1 Story | 925 | 1960 | 1 | 0 | 0 |
| ID | Detail Type | Description | Units |
|---|---|---|---|
| 1 | Basement | Finished | 833.00 |
| 1 | Basement | Total Basement SF | 925.00 |
| 1 | Fixture | Full Bath | 2.00 |
| 1 | Garage | Detached | 288.00 |
| 1 | Porch | Open Slab | 336.00 |
| 1 | Porch | Slab Roof Ceil | 240.00 |
| Account | Parcel | Account Type | Tax Year | Buildings | Actual Value | Local Govt Assessed Value | School Assessed Value |
|---|---|---|---|---|---|---|---|
| R2180486 | 095912204008 | Residential | 2026 | 1 | 351,751 | 21,990 | 24,800 |
| Type | Code | Description | Actual Value | Local Govt Assessed Value | School Assessed Value | Acres | Land SqFt |
|---|---|---|---|---|---|---|---|
| Improvement | 1212 | SINGLE FAMILY RESIDENTIAL IMPROVEMENTS | 300,751 | 18,800 | 21,200 | 0.000 | 0 |
| Land | 1112 | SINGLE FAMILY RESIDENTIAL-LAND | 51,000 | 3,190 | 3,600 | 0.157 | 6,825 |
| Totals | - | - | 351,751 | 21,990 | 24,800 | 0.157 | 6,825 |
Comparable sales for your Residential or Commercial property may be found using our SALES SEARCH TOOL
Values are updated annually on May 1st for Real Property and June 15th for Personal Property and Oil and Gas.
| Account | Parcel | Account Type | Tax Year | Buildings | Actual Value | Local Govt Assessed Value | School Assessed Value |
|---|---|---|---|---|---|---|---|
| R2180486 | 095912204008 | Residential | 2026 | 1 | 351,751 | 21,990 | 24,800 |
| Tax Area | District ID | District Name | Local Govt Mill Levy |
School Mill Levy |
Estimated Taxes |
|---|---|---|---|---|---|
| 0600 | 0700 | AIMS JUNIOR COLLEGE | 6.313 | 0.000 | $138.82 |
| 0600 | 0411 | GREELEY CITY | 11.274 | 0.000 | $247.92 |
| 0600 | 1050 | HIGH PLAINS LIBRARY | 3.044 | 0.000 | $66.94 |
| 0600 | 0301 | NORTHERN COLORADO WATER (NCW) | 1.000 | 0.000 | $21.99 |
| 0600 | 0206 | SCHOOL DIST 6-GREELEY | 0.000 | 47.615 | $1,180.85 |
| 0600 | 0100 | WELD COUNTY | 15.956 | 0.000 | $350.87 |
| Total | - | - | 37.587 | 47.615 | $2,007.39 |
The estimate of tax is based on the prior year mill levy and the 2025 projected assessment rates. Mill levies and tax estimates will be updated yearly on December 22nd for the current year. Additional information can be found at https://assessor.weld.gov



