Account: R2208286
April 1, 2026
| Account | Parcel | Account Type | Tax Year | Buildings | Actual Value | Local Govt Assessed Value | School Assessed Value |
|---|---|---|---|---|---|---|---|
| R2208286 | 095912217028 | Residential | 2026 | 1 | 342,735 | 21,420 | 24,170 |
| Legal |
|---|
| GR 3WS10-1 L1BLK10 3RD WILSHIRE SUB |
| Subdivision | Block | Lot | Land Economic Area |
|---|---|---|---|
| WILSHIRE 3RD ADD | 10 | 1 | 35TH AVE SOUTH 10TH ST |
| Property Address | Property City | Section | Township | Range |
|---|---|---|---|---|
| 2928 W 12TH ST | GREELEY | 12 | 05 | 66 |
| Account | Parcel | Account Type | Tax Year | Buildings | Actual Value | Local Govt Assessed Value | School Assessed Value |
|---|---|---|---|---|---|---|---|
| R2208286 | 095912217028 | Residential | 2026 | 1 | 342,735 | 21,420 | 24,170 |
| Account | Owner Name | Address |
|---|---|---|
| R2208286 | FONSETH STARR DAWN | 2928 W 12TH ST GREELEY, CO 806345307 |
| Account | Parcel | Account Type | Tax Year | Buildings | Actual Value | Local Govt Assessed Value | School Assessed Value |
|---|---|---|---|---|---|---|---|
| R2208286 | 095912217028 | Residential | 2026 | 1 | 342,735 | 21,420 | 24,170 |
| Reception | Rec Date | Type | Grantor | Grantee | Doc Fee | Sale Date | Sale Price |
|---|---|---|---|---|---|---|---|
| 01874538 | 11-13-1981 | WDN | 0.00 | 01-01-1900 | 0 | ||
| 02448017 | 07-25-1995 | QCN | 0.00 | 07-19-1995 | 0 | ||
| 1303297 | NA | SUB | SUBDIVISION | WILSHIRE 3RD ADD | 0.00 | NA | 0 |
*If the hyperlink for the reception number does not work, try a manual search in the Clerk and Recorder records. Use the Grantor or Grantee in your search.
| Account | Parcel | Account Type | Tax Year | Buildings | Actual Value | Local Govt Assessed Value | School Assessed Value |
|---|---|---|---|---|---|---|---|
| R2208286 | 095912217028 | Residential | 2026 | 1 | 342,735 | 21,420 | 24,170 |
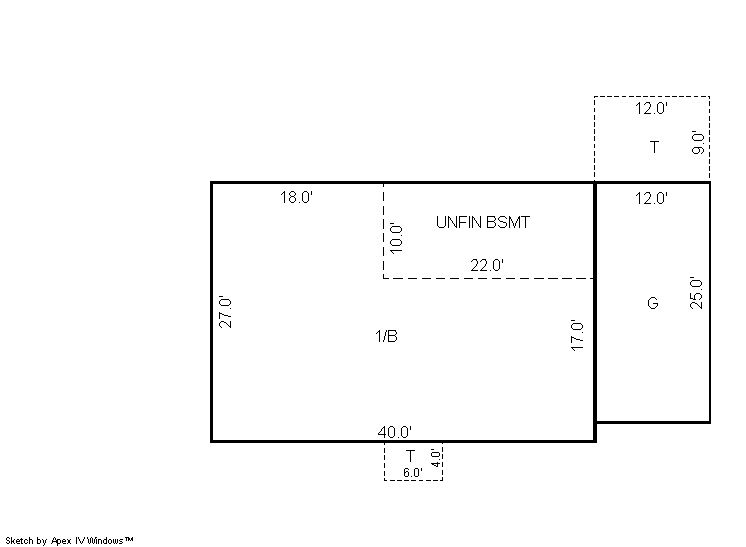
Building 1
| AccountNo | Building ID | Occupancy |
|---|---|---|
| R2208286 | 1 | Single Family Residential |
| ID | Type | NBHD | Occupancy | % Complete | Bedrooms | Baths |
|---|---|---|---|---|---|---|
| 1 | Residential | 6G2034 | Single Family Residential | 100 | 5 | 1.00 |
| ID | Exterior | Roof Cover | Interior | HVAC | Perimeter | Units | Unit Type | Make |
|---|---|---|---|---|---|---|---|---|
| 1 | Frame Masonry Veneer | Composition Shingle | Drywall | Forced Air | 0 | 0 | NA | NA |
| ID | Square Ft | Condo SF | Total Basement SF | Finished Basement SF | Garage SF | Carport SF | Balcony SF | Porch SF |
|---|---|---|---|---|---|---|---|---|
| 1 | 1,080 | 0 | 1,080 | 860 | 300 | 0 | 0 | 132 |
| ID | Built As | Square Ft | Year Built | Stories | Length | Width |
|---|---|---|---|---|---|---|
| 1.00 | Ranch 1 Story | 1,080 | 1961 | 1 | 0 | 0 |
| ID | Detail Type | Description | Units |
|---|---|---|---|
| 1 | Basement | Fair Finish | 860.00 |
| 1 | Basement | Total Basement SF | 1080.00 |
| 1 | Fixture | Full Bath | 1.00 |
| 1 | Garage | Attached | 300.00 |
| 1 | Porch | Open Slab | 132.00 |
| 1 | Rough In | Rough In | 1.00 |
| Account | Parcel | Account Type | Tax Year | Buildings | Actual Value | Local Govt Assessed Value | School Assessed Value |
|---|---|---|---|---|---|---|---|
| R2208286 | 095912217028 | Residential | 2026 | 1 | 342,735 | 21,420 | 24,170 |
| Type | Code | Description | Actual Value | Local Govt Assessed Value | School Assessed Value | Acres | Land SqFt |
|---|---|---|---|---|---|---|---|
| Improvement | 1212 | SINGLE FAMILY RESIDENTIAL IMPROVEMENTS | 291,735 | 18,230 | 20,570 | 0.000 | 0 |
| Land | 1112 | SINGLE FAMILY RESIDENTIAL-LAND | 51,000 | 3,190 | 3,600 | 0.147 | 6,423 |
| Totals | - | - | 342,735 | 21,420 | 24,170 | 0.147 | 6,423 |
Comparable sales for your Residential or Commercial property may be found using our SALES SEARCH TOOL
Values are updated annually on May 1st for Real Property and June 15th for Personal Property and Oil and Gas.
| Account | Parcel | Account Type | Tax Year | Buildings | Actual Value | Local Govt Assessed Value | School Assessed Value |
|---|---|---|---|---|---|---|---|
| R2208286 | 095912217028 | Residential | 2026 | 1 | 342,735 | 21,420 | 24,170 |
| Tax Area | District ID | District Name | Local Govt Mill Levy |
School Mill Levy |
Estimated Taxes |
|---|---|---|---|---|---|
| 0600 | 0700 | AIMS JUNIOR COLLEGE | 6.313 | 0.000 | $135.22 |
| 0600 | 0411 | GREELEY CITY | 11.274 | 0.000 | $241.49 |
| 0600 | 1050 | HIGH PLAINS LIBRARY | 3.044 | 0.000 | $65.20 |
| 0600 | 0301 | NORTHERN COLORADO WATER (NCW) | 1.000 | 0.000 | $21.42 |
| 0600 | 0206 | SCHOOL DIST 6-GREELEY | 0.000 | 47.615 | $1,150.85 |
| 0600 | 0100 | WELD COUNTY | 15.956 | 0.000 | $341.78 |
| Total | - | - | 37.587 | 47.615 | $1,955.97 |
The estimate of tax is based on the prior year mill levy and the 2025 projected assessment rates. Mill levies and tax estimates will be updated yearly on December 22nd for the current year. Additional information can be found at https://assessor.weld.gov



