Account: R2257986

April 1, 2026

Account Parcel Account Type Tax Year Buildings Actual Value Local Govt Assessed Value School Assessed Value
R2257986 095912318006 Residential 2026 1 426,505 26,660 30,070

Legal
GR 2WB9-6 L6 BLK9 1ST REPLAT WOODBRIAR 2ND FILING

Subdivision Block Lot Land Economic Area
WOODBRIAR 2ND FG 1ST RPLT 9 6 EAST OF 35TH AVE AND SOUTH OF 16TH ST

Property Address Property City Section Township Range
1731 33RD AVE GREELEY 12 05 66




Account Parcel Account Type Tax Year Buildings Actual Value Local Govt Assessed Value School Assessed Value
R2257986 095912318006 Residential 2026 1 426,505 26,660 30,070

Account Owner Name Address
R2257986 CARRION VALENTINA 1731 33RD AVE GREELEY, CO 806346836
R2257986 CARRION ARMANDO JR


Account Parcel Account Type Tax Year Buildings Actual Value Local Govt Assessed Value School Assessed Value
R2257986 095912318006 Residential 2026 1 426,505 26,660 30,070

Reception Rec Date Type Grantor Grantee Doc Fee Sale Date Sale Price
01955264 02-03-1984 QCN KOPSA ARLENE J; KOPSA WILLIAM JR KOPSA ARLENE J; KOPSA WILLIAM JR 0.00 02-03-1984 0
1570274 NA SUB SUBDIVISION WOODBRIAR 2ND FG 0.00 NA 0
1740515 01-03-1978 WD ROOT CHESTER E; ROOT VICKI J KOPSA ARLENE J; KOPSA WILLIAM JR 4.49 12-28-1977 44,900
2131911 02-24-1988 PRD KOPSA WILLIAM JR & ARLENE J KOPSA WILLIAM JR 2.38 02-08-1988 23,800
2270412 11-26-1991 WD KOPSA WILLIAM JR WERNER CRAIG A & BRENDA M 7.19 11-25-1991 71,900
2473705 01-29-1996 QCN WERNER CRAIG A & BRENDA M WERNER BRENDA M & 0.00 01-29-1996 0
2848931 05-16-2001 QCN WERNER BRENDA M & HARMS ORVIL E WERNER BRENDA M 0.00 05-09-2001 0
3158450 03-02-2004 QCN WERNER BRENDA M MAJOR INVESTMENTS LLC 0.00 03-02-2004 0
3397008 06-19-2006 QCN MAJOR INVESTMENTS LLC STROH THOMAS H 0.00 06-16-2006 0
3400076 06-30-2006 QCN STROH THOMAS H MAJOR INVESTMENTS LLC 0.00 06-29-2006 0
3401646 07-10-2006 WD MAJOR INVESTMENTS LLC PALOMINO FRANK & 19.20 06-29-2006 192,000
3639956 08-03-2009 PTD WELD CO PUBLIC TRUSTEE SOUNDVIEW HOME LOAN TRUST 0.00 07-31-2009 0
3652703 10-06-2009 SWD SOUNDVIEW HOME LOAN TRUST LOPEZ EFRAIN & GONZALEZ YOLANDA 11.50 09-30-2009 115,000
3944942 07-02-2013 WDE LOPEZ EFRAIN BUSEKRUS JACOB A 16.90 07-01-2013 169,000
4990589 10-25-2024 SWD BUSEKRUS JACOB A CARRION VALENTINA; CARRION ARMANDO JR 41.50 10-16-2024 415,000



Account Parcel Account Type Tax Year Buildings Actual Value Local Govt Assessed Value School Assessed Value
R2257986 095912318006 Residential 2026 1 426,505 26,660 30,070

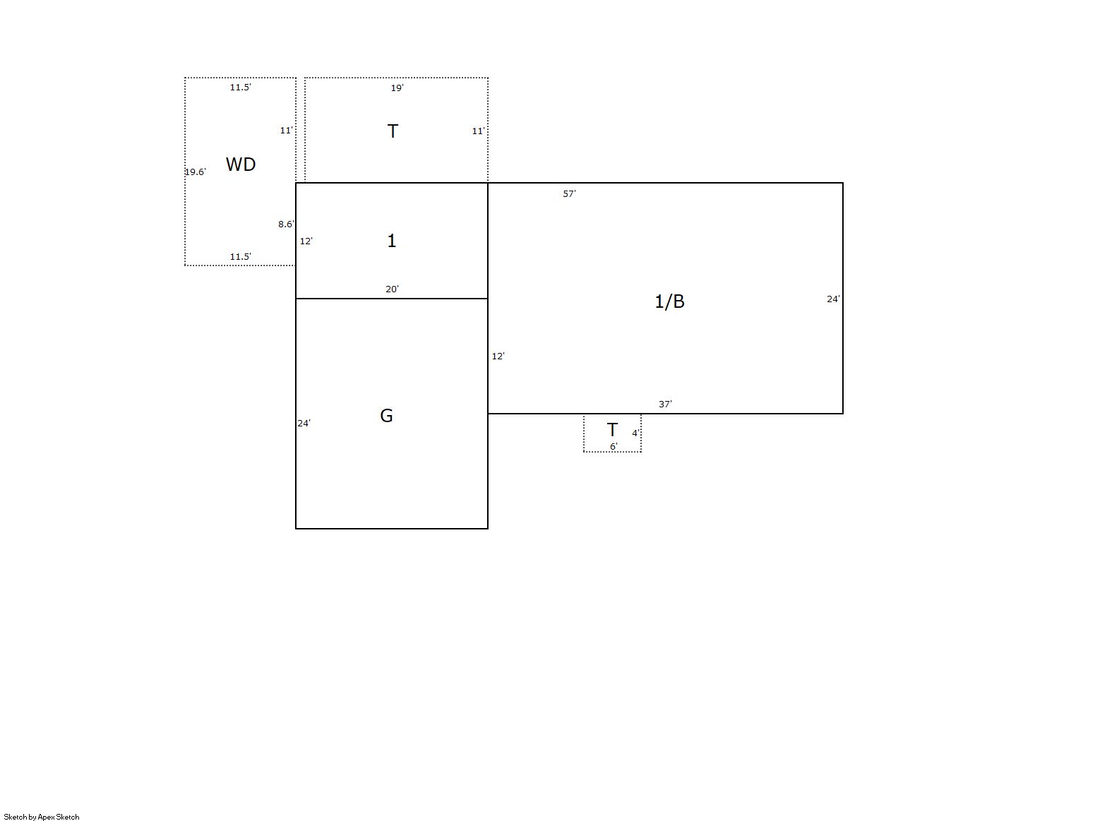
Building 1

AccountNo Building ID Occupancy
R2257986 1 Single Family Residential


ID Type NBHD Occupancy % Complete Bedrooms Baths
1 Residential 6G2031 Single Family Residential 100 4 2.00


ID Exterior Roof Cover Interior HVAC Perimeter Units Unit Type Make
1 Frame Vinyl Composition Shingle Drywall Central Air to Air 162 0 NA NA


ID Square Ft Condo SF Total Basement SF Finished Basement SF Garage SF Carport SF Balcony SF Porch SF
1 1,128 0 888 888 480 0 0 225


Built As Details for Building 1
ID Built As Square Ft Year Built Stories Length Width
1.00 Bi Level 1,128 1973 3 0 0


Additional Details for Building 1
ID Detail Type Description Units
1 Add On Fireplace Wood 1.00
1 Basement Finished 888.00
1 Basement Total Basement SF 888.00
1 Fixture Full Bath 2.00
1 Garage Attached 480.00
1 Porch Open Slab 233.00
1 Porch Wood Deck 225.00





Account Parcel Account Type Tax Year Buildings Actual Value Local Govt Assessed Value School Assessed Value
R2257986 095912318006 Residential 2026 1 426,505 26,660 30,070

Type Code Description Actual Value Local Govt Assessed Value School Assessed Value Acres Land SqFt
Improvement 1212 SINGLE FAMILY RESIDENTIAL IMPROVEMENTS 366,505 22,910 25,840 0.000 0
Land 1112 SINGLE FAMILY RESIDENTIAL-LAND 60,000 3,750 4,230 0.199 8,653
Totals - - 426,505 26,660 30,070 0.199 8,653


Account Parcel Account Type Tax Year Buildings Actual Value Local Govt Assessed Value School Assessed Value
R2257986 095912318006 Residential 2026 1 426,505 26,660 30,070

Tax Area District ID District Name Local Govt
Mill Levy
School
Mill Levy
Estimated
Taxes
0600 0700 AIMS JUNIOR COLLEGE 6.313 0.000 $168.30
0600 0411 GREELEY CITY 11.274 0.000 $300.56
0600 1050 HIGH PLAINS LIBRARY 3.044 0.000 $81.15
0600 0301 NORTHERN COLORADO WATER (NCW) 1.000 0.000 $26.66
0600 0206 SCHOOL DIST 6-GREELEY 0.000 47.615 $1,431.78
0600 0100 WELD COUNTY 15.956 0.000 $425.39
Total - - 37.587 47.615 $2,433.85


The estimate of tax is based on the prior year mill levy and the 2025 projected assessment rates. Mill levies and tax estimates will be updated yearly on December 22nd for the current year. Additional information can be found at https://assessor.weld.gov










Select Reports to Print: