Account: R2264286
April 2, 2026
| Account | Parcel | Account Type | Tax Year | Buildings | Actual Value | Local Govt Assessed Value | School Assessed Value |
|---|---|---|---|---|---|---|---|
| R2264286 | 095912322006 | Residential | 2026 | 1 | 406,582 | 25,410 | 28,660 |
| Legal |
|---|
| GR 2WB8-29 L29 BLK8 1ST REPLAT WOODBRIAR 2ND FILING |
| Subdivision | Block | Lot | Land Economic Area |
|---|---|---|---|
| WOODBRIAR 2ND FG 1ST RPLT | 8 | 29 | EAST OF 35TH AVE AND SOUTH OF 16TH ST |
| Property Address | Property City | Section | Township | Range |
|---|---|---|---|---|
| 1801 30TH AVE | GREELEY | 12 | 05 | 66 |
| Account | Parcel | Account Type | Tax Year | Buildings | Actual Value | Local Govt Assessed Value | School Assessed Value |
|---|---|---|---|---|---|---|---|
| R2264286 | 095912322006 | Residential | 2026 | 1 | 406,582 | 25,410 | 28,660 |
| Account | Owner Name | Address |
|---|---|---|
| R2264286 | BELL FAMILY REVOCABLE TRUST | 1801 30TH AVE GREELEY, CO 806346825 |
| Account | Parcel | Account Type | Tax Year | Buildings | Actual Value | Local Govt Assessed Value | School Assessed Value |
|---|---|---|---|---|---|---|---|
| R2264286 | 095912322006 | Residential | 2026 | 1 | 406,582 | 25,410 | 28,660 |
| Reception | Rec Date | Type | Grantor | Grantee | Doc Fee | Sale Date | Sale Price |
|---|---|---|---|---|---|---|---|
| 01963025 | 04-13-1984 | WD | PILE R KATHRYN; PILE BENJAMIN L | MISKIMINS SHARON I; MISKIMINS JOHN K | 6.80 | 04-13-1984 | 68,000 |
| 02128613 | 01-21-1988 | PTD | MISKIMINS SHARON I; MISKIMINS JOHN K | KISSELL COMPANY | 0.00 | 01-20-1988 | 0 |
| 1570274 | NA | SUB | SUBDIVISION | WOODBRIAR 2ND FG | 0.00 | NA | 0 |
| 2162332 | 11-17-1988 | WD | KISSELL CO | ARREGUIN LEONARD L & JOYCE A | 6.15 | 11-10-1988 | 61,500 |
| 3046664 | 03-28-2003 | WD | ARREGUIN LEONARD L & JOYCE A | VANSICKLE ARTHUR D & MADER THEODORA J | 16.80 | 03-26-2003 | 168,000 |
| 3481511 | 06-06-2007 | DTHC | VANSICKLE ARTHUR D & | VANSICKLE ARTHUR D | 0.00 | 05-07-2007 | 0 |
| 4262778 | 12-19-2016 | WDE | VANSICKLE ARTHUR D | DOMINGUEZ KEVIN M; DOMINGUEZ BRITTANY | 22.75 | 12-15-2016 | 227,500 |
| 4682234 | 02-12-2021 | SWD | DOMINGUEZ BRITTANY; DOMINGUEZ KEVIN M | BELL CARA L | 31.70 | 02-08-2021 | 317,000 |
| 4984689 | 09-26-2024 | QCN | BELL CARA L | BELL FAMILY REVOCABLE TRUST | 0.00 | 08-08-2024 | 0 |
*If the hyperlink for the reception number does not work, try a manual search in the Clerk and Recorder records. Use the Grantor or Grantee in your search.
| Account | Parcel | Account Type | Tax Year | Buildings | Actual Value | Local Govt Assessed Value | School Assessed Value |
|---|---|---|---|---|---|---|---|
| R2264286 | 095912322006 | Residential | 2026 | 1 | 406,582 | 25,410 | 28,660 |
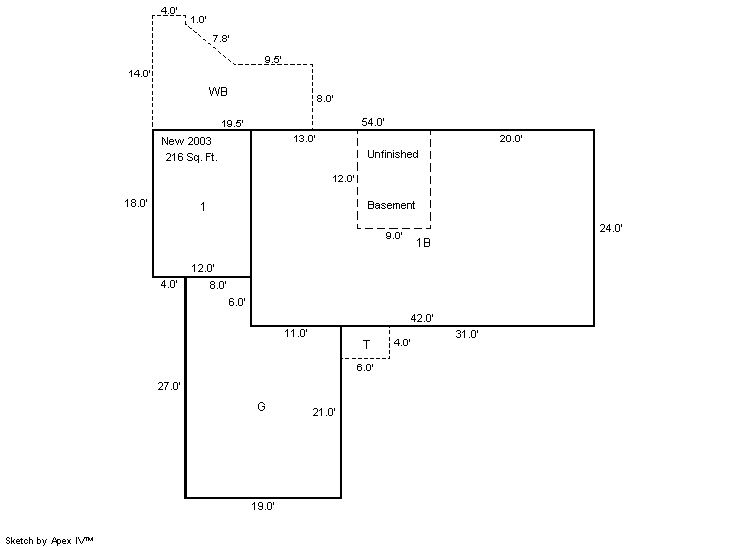
Building 1
| AccountNo | Building ID | Occupancy |
|---|---|---|
| R2264286 | 1 | Single Family Residential |
| ID | Type | NBHD | Occupancy | % Complete | Bedrooms | Baths |
|---|---|---|---|---|---|---|
| 1 | Residential | 6G2031 | Single Family Residential | 100 | 4 | 2.00 |
| ID | Exterior | Roof Cover | Interior | HVAC | Perimeter | Units | Unit Type | Make |
|---|---|---|---|---|---|---|---|---|
| 1 | Frame Hardboard | Composition Shingle | Drywall | Forced Air | 0 | 0 | NA | NA |
| ID | Square Ft | Condo SF | Total Basement SF | Finished Basement SF | Garage SF | Carport SF | Balcony SF | Porch SF |
|---|---|---|---|---|---|---|---|---|
| 1 | 1,224 | 0 | 1,008 | 900 | 447 | 0 | 195 | 24 |
| ID | Built As | Square Ft | Year Built | Stories | Length | Width |
|---|---|---|---|---|---|---|
| 1.00 | Ranch 1 Story | 1,224 | 1974 | 1 | 0 | 0 |
| ID | Detail Type | Description | Units |
|---|---|---|---|
| 1 | Add On | Fireplace Wood | 1.00 |
| 1 | Add On | Flue Only | 1.00 |
| 1 | Add On | MH Evaporative Cooler | 1.00 |
| 1 | Balcony | Wood Wood Fin | 195.00 |
| 1 | Basement | Finished | 900.00 |
| 1 | Basement | Total Basement SF | 1008.00 |
| 1 | Fixture | Full Bath | 2.00 |
| 1 | Garage | Attached | 447.00 |
| 1 | Porch | Open Slab | 24.00 |
| Account | Parcel | Account Type | Tax Year | Buildings | Actual Value | Local Govt Assessed Value | School Assessed Value |
|---|---|---|---|---|---|---|---|
| R2264286 | 095912322006 | Residential | 2026 | 1 | 406,582 | 25,410 | 28,660 |
| Type | Code | Description | Actual Value | Local Govt Assessed Value | School Assessed Value | Acres | Land SqFt |
|---|---|---|---|---|---|---|---|
| Improvement | 1212 | SINGLE FAMILY RESIDENTIAL IMPROVEMENTS | 346,582 | 21,660 | 24,430 | 0.000 | 0 |
| Land | 1112 | SINGLE FAMILY RESIDENTIAL-LAND | 60,000 | 3,750 | 4,230 | 0.177 | 7,700 |
| Totals | - | - | 406,582 | 25,410 | 28,660 | 0.177 | 7,700 |
Comparable sales for your Residential or Commercial property may be found using our SALES SEARCH TOOL
Values are updated annually on May 1st for Real Property and June 15th for Personal Property and Oil and Gas.
| Account | Parcel | Account Type | Tax Year | Buildings | Actual Value | Local Govt Assessed Value | School Assessed Value |
|---|---|---|---|---|---|---|---|
| R2264286 | 095912322006 | Residential | 2026 | 1 | 406,582 | 25,410 | 28,660 |
| Tax Area | District ID | District Name | Local Govt Mill Levy |
School Mill Levy |
Estimated Taxes |
|---|---|---|---|---|---|
| 0600 | 0700 | AIMS JUNIOR COLLEGE | 6.313 | 0.000 | $160.41 |
| 0600 | 0411 | GREELEY CITY | 11.274 | 0.000 | $286.47 |
| 0600 | 1050 | HIGH PLAINS LIBRARY | 3.044 | 0.000 | $77.35 |
| 0600 | 0301 | NORTHERN COLORADO WATER (NCW) | 1.000 | 0.000 | $25.41 |
| 0600 | 0206 | SCHOOL DIST 6-GREELEY | 0.000 | 47.615 | $1,364.65 |
| 0600 | 0100 | WELD COUNTY | 15.956 | 0.000 | $405.44 |
| Total | - | - | 37.587 | 47.615 | $2,319.73 |
The estimate of tax is based on the prior year mill levy and the 2025 projected assessment rates. Mill levies and tax estimates will be updated yearly on December 22nd for the current year. Additional information can be found at https://assessor.weld.gov



