Account: R2268086
April 1, 2026
| Account | Parcel | Account Type | Tax Year | Buildings | Actual Value | Local Govt Assessed Value | School Assessed Value |
|---|---|---|---|---|---|---|---|
| R2268086 | 095912323014 | Residential | 2026 | 1 | 410,265 | 25,640 | 28,920 |
| Legal |
|---|
| GR 2WB5-14 L14 BLK5 REPLAT OF 1ST REPLAT WOODBRIAR 2ND FILING |
| Subdivision | Block | Lot | Land Economic Area |
|---|---|---|---|
| WOODBRIAR 2ND FG 1ST RPLT | 5 | 14 | EAST OF 35TH AVE AND SOUTH OF 16TH ST |
| Property Address | Property City | Section | Township | Range |
|---|---|---|---|---|
| 1709 30TH AVENUE CT | GREELEY | 12 | 05 | 66 |
| Account | Parcel | Account Type | Tax Year | Buildings | Actual Value | Local Govt Assessed Value | School Assessed Value |
|---|---|---|---|---|---|---|---|
| R2268086 | 095912323014 | Residential | 2026 | 1 | 410,265 | 25,640 | 28,920 |
| Account | Owner Name | Address |
|---|---|---|
| R2268086 | LANG NICHOLAS T | 1709 30TH AVENUE CT GREELEY, CO 806346826 |
| Account | Parcel | Account Type | Tax Year | Buildings | Actual Value | Local Govt Assessed Value | School Assessed Value |
|---|---|---|---|---|---|---|---|
| R2268086 | 095912323014 | Residential | 2026 | 1 | 410,265 | 25,640 | 28,920 |
| Reception | Rec Date | Type | Grantor | Grantee | Doc Fee | Sale Date | Sale Price |
|---|---|---|---|---|---|---|---|
| 01991563 | 12-10-1984 | QC | HINMAN HEDWIG; HINMAN ROBERT | SEARS NANCY J | 7.50 | 10-22-1984 | 75,000 |
| 1610270 | NA | SUB | SUBDIVISION | WOODBRIAR 1ST FG & 2ND FG RPLT | 0.00 | NA | 0 |
| 2159770 | 10-25-1988 | WD | SEARS NANCY J | MASKELL LOYD A & PATRICIA J | 6.85 | 10-21-1988 | 68,500 |
| 2985829 | 09-09-2002 | WD | MASKELL LOYD A & PATRICIA J | HOAGLAND RICHARD D & GAIL H | 16.95 | 09-03-2002 | 169,500 |
| 3541583 | 03-14-2008 | QCN | HOAGLAND RICHARD D & | HOAGLAND GAIL H | 0.00 | 03-14-2008 | 0 |
| 3979744 | 11-21-2013 | QCN | HOAGLAND RICHARD D | HOAGLAND GAIL H | 0.00 | 11-08-2013 | 0 |
| 3979745 | 11-21-2013 | WD | HOAGLAND GAIL H | MILLER KINDRA M | 15.92 | 11-20-2013 | 159,200 |
| 4216610 | 07-06-2016 | WD | MILLER KINDRA M | CHRISTENSEN JUSTIN; CHRISTENSEN CAITLIN | 22.80 | 07-01-2016 | 228,000 |
| 4952441 | 04-02-2024 | WD | CHRISTENSEN JUSTIN; CHRISTENSEN CAITLIN | LANG NICHOLAS T | 42.00 | 03-29-2024 | 420,000 |
*If the hyperlink for the reception number does not work, try a manual search in the Clerk and Recorder records. Use the Grantor or Grantee in your search.
| Account | Parcel | Account Type | Tax Year | Buildings | Actual Value | Local Govt Assessed Value | School Assessed Value |
|---|---|---|---|---|---|---|---|
| R2268086 | 095912323014 | Residential | 2026 | 1 | 410,265 | 25,640 | 28,920 |
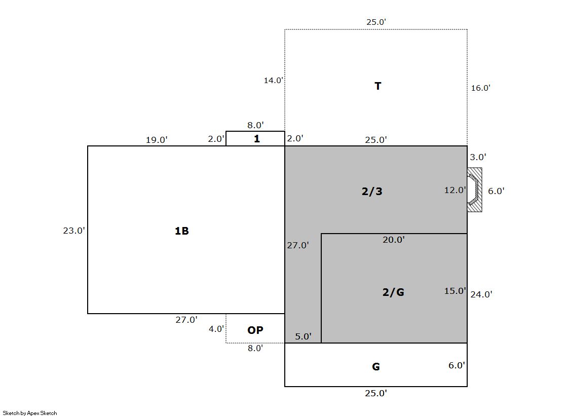
Building 1
| AccountNo | Building ID | Occupancy |
|---|---|---|
| R2268086 | 1 | Single Family Residential |
| ID | Type | NBHD | Occupancy | % Complete | Bedrooms | Baths |
|---|---|---|---|---|---|---|
| 1 | Residential | 6G2031 | Single Family Residential | 100 | 3 | 3.00 |
| ID | Exterior | Roof Cover | Interior | HVAC | Perimeter | Units | Unit Type | Make |
|---|---|---|---|---|---|---|---|---|
| 1 | Frame Hardboard | Composition Shingle | Drywall | Forced Air | 0 | 0 | NA | NA |
| ID | Square Ft | Condo SF | Total Basement SF | Finished Basement SF | Garage SF | Carport SF | Balcony SF | Porch SF |
|---|---|---|---|---|---|---|---|---|
| 1 | 1,687 | 0 | 621 | 470 | 450 | 0 | 0 | 400 |
| ID | Built As | Square Ft | Year Built | Stories | Length | Width |
|---|---|---|---|---|---|---|
| 1.00 | Split Level | 1,687 | 1974 | 3 | 0 | 0 |
| ID | Detail Type | Description | Units |
|---|---|---|---|
| 1 | Add On | Fireplace Wood | 1.00 |
| 1 | Basement | Finished | 470.00 |
| 1 | Basement | Total Basement SF | 621.00 |
| 1 | Fixture | Full Bath | 2.00 |
| 1 | Fixture | Half Bath | 1.00 |
| 1 | Garage | Attached | 450.00 |
| 1 | Porch | Open Slab | 400.00 |
| 1 | Porch | Slab Roof Ceil | 32.00 |
| Account | Parcel | Account Type | Tax Year | Buildings | Actual Value | Local Govt Assessed Value | School Assessed Value |
|---|---|---|---|---|---|---|---|
| R2268086 | 095912323014 | Residential | 2026 | 1 | 410,265 | 25,640 | 28,920 |
| Type | Code | Description | Actual Value | Local Govt Assessed Value | School Assessed Value | Acres | Land SqFt |
|---|---|---|---|---|---|---|---|
| Improvement | 1212 | SINGLE FAMILY RESIDENTIAL IMPROVEMENTS | 350,265 | 21,890 | 24,690 | 0.000 | 0 |
| Land | 1112 | SINGLE FAMILY RESIDENTIAL-LAND | 60,000 | 3,750 | 4,230 | 0.185 | 8,064 |
| Totals | - | - | 410,265 | 25,640 | 28,920 | 0.185 | 8,064 |
Comparable sales for your Residential or Commercial property may be found using our SALES SEARCH TOOL
Values are updated annually on May 1st for Real Property and June 15th for Personal Property and Oil and Gas.
| Account | Parcel | Account Type | Tax Year | Buildings | Actual Value | Local Govt Assessed Value | School Assessed Value |
|---|---|---|---|---|---|---|---|
| R2268086 | 095912323014 | Residential | 2026 | 1 | 410,265 | 25,640 | 28,920 |
| Tax Area | District ID | District Name | Local Govt Mill Levy |
School Mill Levy |
Estimated Taxes |
|---|---|---|---|---|---|
| 0600 | 0700 | AIMS JUNIOR COLLEGE | 6.313 | 0.000 | $161.87 |
| 0600 | 0411 | GREELEY CITY | 11.274 | 0.000 | $289.07 |
| 0600 | 1050 | HIGH PLAINS LIBRARY | 3.044 | 0.000 | $78.05 |
| 0600 | 0301 | NORTHERN COLORADO WATER (NCW) | 1.000 | 0.000 | $25.64 |
| 0600 | 0206 | SCHOOL DIST 6-GREELEY | 0.000 | 47.615 | $1,377.03 |
| 0600 | 0100 | WELD COUNTY | 15.956 | 0.000 | $409.11 |
| Total | - | - | 37.587 | 47.615 | $2,340.76 |
The estimate of tax is based on the prior year mill levy and the 2025 projected assessment rates. Mill levies and tax estimates will be updated yearly on December 22nd for the current year. Additional information can be found at https://assessor.weld.gov



