Account: R2269086

April 1, 2026

Account Parcel Account Type Tax Year Buildings Actual Value Local Govt Assessed Value School Assessed Value
R2269086 095912324009 Residential 2026 1 352,800 22,050 24,870

Legal
GR 1WB1-9 L9 BLK1 1ST REPLAT WOODBRIAR 1ST FILING

Subdivision Block Lot Land Economic Area
WOODBRIAR 1ST FG 1ST RPLT 1 9 EAST OF 35TH AVE AND SOUTH OF 16TH ST

Property Address Property City Section Township Range
1648 31ST AVE GREELEY 12 05 66




Account Parcel Account Type Tax Year Buildings Actual Value Local Govt Assessed Value School Assessed Value
R2269086 095912324009 Residential 2026 1 352,800 22,050 24,870

Account Owner Name Address
R2269086 BASSETT RANDY A 1648 31ST AVE GREELEY, CO 806346829


Account Parcel Account Type Tax Year Buildings Actual Value Local Govt Assessed Value School Assessed Value
R2269086 095912324009 Residential 2026 1 352,800 22,050 24,870

Reception Rec Date Type Grantor Grantee Doc Fee Sale Date Sale Price
01635615 05-01-1974 WDN 0.00 01-01-1900 0
1569269 NA SUB SUBDIVISION WOODBRIAR 1ST FG 0.00 NA 0
3566795 07-16-2008 DTHC BASSETT CHARLES WAYNE & BASSETT CHARLES WAYNE (HEIRS OF) & 0.00 06-24-2008 0
4145469 09-28-2015 AFFD BASSETT CHARLES BASSETT CHARLES 0.00 09-22-2015 0
4145470 09-28-2015 WDE BASSETT JUDY J BASSETT RANDY A 18.40 09-25-2015 184,000



Account Parcel Account Type Tax Year Buildings Actual Value Local Govt Assessed Value School Assessed Value
R2269086 095912324009 Residential 2026 1 352,800 22,050 24,870

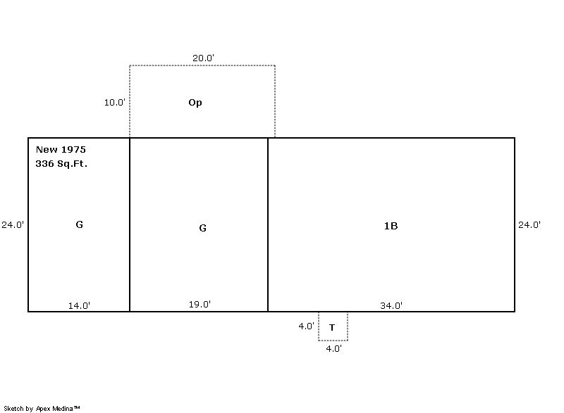
Building 1

AccountNo Building ID Occupancy
R2269086 1 Single Family Residential


ID Type NBHD Occupancy % Complete Bedrooms Baths
1 Residential 6G2031 Single Family Residential 100 3 2.00


ID Exterior Roof Cover Interior HVAC Perimeter Units Unit Type Make
1 Frame Hardboard Composition Shingle Drywall Central Air to Air 0 0 NA NA


ID Square Ft Condo SF Total Basement SF Finished Basement SF Garage SF Carport SF Balcony SF Porch SF
1 816 0 816 816 792 0 0 200


Built As Details for Building 1
ID Built As Square Ft Year Built Stories Length Width
1.00 Ranch 1 Story 816 1972 1 0 0


Additional Details for Building 1
ID Detail Type Description Units
1 Basement Fair Finish 816.00
1 Basement Total Basement SF 816.00
1 Fixture Full Bath 2.00
1 Garage Attached 792.00
1 Porch Open Slab 16.00
1 Porch Slab Roof Ceil 200.00





Account Parcel Account Type Tax Year Buildings Actual Value Local Govt Assessed Value School Assessed Value
R2269086 095912324009 Residential 2026 1 352,800 22,050 24,870

Type Code Description Actual Value Local Govt Assessed Value School Assessed Value Acres Land SqFt
Improvement 1212 SINGLE FAMILY RESIDENTIAL IMPROVEMENTS 292,800 18,300 20,640 0.000 0
Land 1112 SINGLE FAMILY RESIDENTIAL-LAND 60,000 3,750 4,230 0.255 11,095
Totals - - 352,800 22,050 24,870 0.255 11,095


Account Parcel Account Type Tax Year Buildings Actual Value Local Govt Assessed Value School Assessed Value
R2269086 095912324009 Residential 2026 1 352,800 22,050 24,870

Tax Area District ID District Name Local Govt
Mill Levy
School
Mill Levy
Estimated
Taxes
0600 0700 AIMS JUNIOR COLLEGE 6.313 0.000 $139.20
0600 0411 GREELEY CITY 11.274 0.000 $248.59
0600 1050 HIGH PLAINS LIBRARY 3.044 0.000 $67.12
0600 0301 NORTHERN COLORADO WATER (NCW) 1.000 0.000 $22.05
0600 0206 SCHOOL DIST 6-GREELEY 0.000 47.615 $1,184.19
0600 0100 WELD COUNTY 15.956 0.000 $351.83
Total - - 37.587 47.615 $2,012.98


The estimate of tax is based on the prior year mill levy and the 2025 projected assessment rates. Mill levies and tax estimates will be updated yearly on December 22nd for the current year. Additional information can be found at https://assessor.weld.gov










Select Reports to Print: