Account: R2272586
April 4, 2026
| Account | Parcel | Account Type | Tax Year | Buildings | Actual Value | Local Govt Assessed Value | School Assessed Value |
|---|---|---|---|---|---|---|---|
| R2272586 | 095912326015 | Residential | 2026 | 1 | 369,305 | 23,080 | 26,040 |
| Legal |
|---|
| GR 2WB6-3 L3 BLK6 2ND REPLAT WOODBRIAR 2ND FG |
| Subdivision | Block | Lot | Land Economic Area |
|---|---|---|---|
| WOODBRIAR 2ND FG 2ND RPLT | 6 | 3 | EAST OF 35TH AVE AND SOUTH OF 16TH ST |
| Property Address | Property City | Section | Township | Range |
|---|---|---|---|---|
| 1700 29TH AVENUE PL | GREELEY | 12 | 05 | 66 |
| Account | Parcel | Account Type | Tax Year | Buildings | Actual Value | Local Govt Assessed Value | School Assessed Value |
|---|---|---|---|---|---|---|---|
| R2272586 | 095912326015 | Residential | 2026 | 1 | 369,305 | 23,080 | 26,040 |
| Account | Owner Name | Address |
|---|---|---|
| R2272586 | RAMOS JOHNATHAN GARCIA | 1700 29TH AVENUE PL GREELEY, CO 806346824 |
| R2272586 | RETANA RUBEN GARCIA |
| Account | Parcel | Account Type | Tax Year | Buildings | Actual Value | Local Govt Assessed Value | School Assessed Value |
|---|---|---|---|---|---|---|---|
| R2272586 | 095912326015 | Residential | 2026 | 1 | 369,305 | 23,080 | 26,040 |
| Reception | Rec Date | Type | Grantor | Grantee | Doc Fee | Sale Date | Sale Price |
|---|---|---|---|---|---|---|---|
| 01645708 | 09-27-1974 | WDN | 0.00 | 01-01-1900 | 0 | ||
| 1640319 | NA | SUB | SUBDIVISION | WOODBRIAR 2ND FG 2ND RPLT | 0.00 | NA | 0 |
| 4776936 | 11-17-2021 | DTHC | MARTINDALE SHIRLEY B | MARTINDALE JOHN H | 0.00 | 08-02-2013 | 0 |
| 4776937 | 11-17-2021 | AFFD | MARTINDALE SHIRLEY B | MARTINDALE JOHN H | 0.00 | 11-17-2021 | 0 |
| 4856605 | 09-21-2022 | PRD | MARTINDALE JOHN H | RAMOS JOHNATHAN GARCIA; RETANA RUBEN GARCIA | 35.70 | 09-20-2022 | 357,000 |
*If the hyperlink for the reception number does not work, try a manual search in the Clerk and Recorder records. Use the Grantor or Grantee in your search.
| Account | Parcel | Account Type | Tax Year | Buildings | Actual Value | Local Govt Assessed Value | School Assessed Value |
|---|---|---|---|---|---|---|---|
| R2272586 | 095912326015 | Residential | 2026 | 1 | 369,305 | 23,080 | 26,040 |
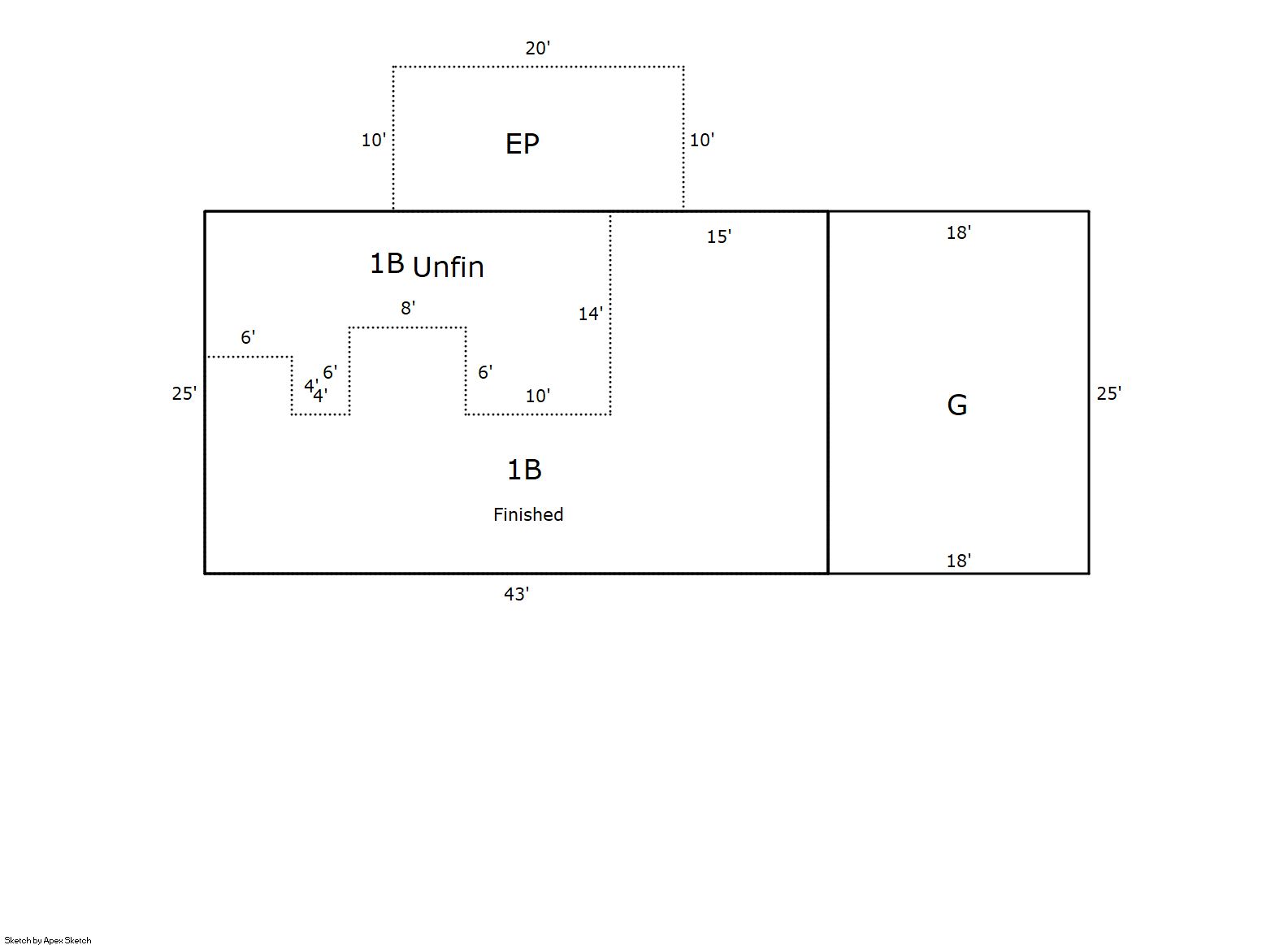
Building 1
| AccountNo | Building ID | Occupancy |
|---|---|---|
| R2272586 | 1 | Single Family Residential |
| ID | Type | NBHD | Occupancy | % Complete | Bedrooms | Baths |
|---|---|---|---|---|---|---|
| 1 | Residential | 6G2031 | Single Family Residential | 100 | 4 | 2.00 |
| ID | Exterior | Roof Cover | Interior | HVAC | Perimeter | Units | Unit Type | Make |
|---|---|---|---|---|---|---|---|---|
| 1 | Frame Hardboard | Composition Shingle | Drywall | Central Air to Air | 136 | 0 | NA | NA |
| ID | Square Ft | Condo SF | Total Basement SF | Finished Basement SF | Garage SF | Carport SF | Balcony SF | Porch SF |
|---|---|---|---|---|---|---|---|---|
| 1 | 1,075 | 0 | 1,075 | 755 | 450 | 0 | 0 | 200 |
| ID | Built As | Square Ft | Year Built | Stories | Length | Width |
|---|---|---|---|---|---|---|
| 1.00 | Ranch 1 Story | 1,075 | 1973 | 1 | 0 | 0 |
| ID | Detail Type | Description | Units |
|---|---|---|---|
| 1 | Add On | Shed Frame | 292.00 |
| 1 | Basement | Finished | 755.00 |
| 1 | Basement | Total Basement SF | 1075.00 |
| 1 | Fixture | Full Bath | 2.00 |
| 1 | Garage | Attached | 450.00 |
| 1 | Porch | Encl Solid Wall | 200.00 |
| Account | Parcel | Account Type | Tax Year | Buildings | Actual Value | Local Govt Assessed Value | School Assessed Value |
|---|---|---|---|---|---|---|---|
| R2272586 | 095912326015 | Residential | 2026 | 1 | 369,305 | 23,080 | 26,040 |
| Type | Code | Description | Actual Value | Local Govt Assessed Value | School Assessed Value | Acres | Land SqFt |
|---|---|---|---|---|---|---|---|
| Improvement | 1212 | SINGLE FAMILY RESIDENTIAL IMPROVEMENTS | 309,305 | 19,330 | 21,810 | 0.000 | 0 |
| Land | 1112 | SINGLE FAMILY RESIDENTIAL-LAND | 60,000 | 3,750 | 4,230 | 0.215 | 9,375 |
| Totals | - | - | 369,305 | 23,080 | 26,040 | 0.215 | 9,375 |
Comparable sales for your Residential or Commercial property may be found using our SALES SEARCH TOOL
Values are updated annually on May 1st for Real Property and June 15th for Personal Property and Oil and Gas.
| Account | Parcel | Account Type | Tax Year | Buildings | Actual Value | Local Govt Assessed Value | School Assessed Value |
|---|---|---|---|---|---|---|---|
| R2272586 | 095912326015 | Residential | 2026 | 1 | 369,305 | 23,080 | 26,040 |
| Tax Area | District ID | District Name | Local Govt Mill Levy |
School Mill Levy |
Estimated Taxes |
|---|---|---|---|---|---|
| 0600 | 0700 | AIMS JUNIOR COLLEGE | 6.313 | 0.000 | $145.70 |
| 0600 | 0411 | GREELEY CITY | 11.274 | 0.000 | $260.20 |
| 0600 | 1050 | HIGH PLAINS LIBRARY | 3.044 | 0.000 | $70.26 |
| 0600 | 0301 | NORTHERN COLORADO WATER (NCW) | 1.000 | 0.000 | $23.08 |
| 0600 | 0206 | SCHOOL DIST 6-GREELEY | 0.000 | 47.615 | $1,239.89 |
| 0600 | 0100 | WELD COUNTY | 15.956 | 0.000 | $368.26 |
| Total | - | - | 37.587 | 47.615 | $2,107.40 |
The estimate of tax is based on the prior year mill levy and the 2025 projected assessment rates. Mill levies and tax estimates will be updated yearly on December 22nd for the current year. Additional information can be found at https://assessor.weld.gov


