Account: R2308703

April 1, 2026

Account Parcel Account Type Tax Year Buildings Actual Value Local Govt Assessed Value School Assessed Value
R2308703 120703101104 Residential 2026 1 437,652 27,360 30,860

Legal
MEA 2MF L104 MARGIL FARMS 2ND FG

Subdivision Block Lot Land Economic Area
MARGIL FARMS 2ND FG 104 MARGIL FARMS 2ND

Property Address Property City Section Township Range
3627 SETTLER RIDGE DR MEAD 03 03 68




Account Parcel Account Type Tax Year Buildings Actual Value Local Govt Assessed Value School Assessed Value
R2308703 120703101104 Residential 2026 1 437,652 27,360 30,860

Account Owner Name Address
R2308703 ADLER PAM 3627 SETTLER RIDGE DR MEAD, CO 805424527


Account Parcel Account Type Tax Year Buildings Actual Value Local Govt Assessed Value School Assessed Value
R2308703 120703101104 Residential 2026 1 437,652 27,360 30,860

Reception Rec Date Type Grantor Grantee Doc Fee Sale Date Sale Price
3030541 NA SUB SUBDIVISION MARGIL FARMS 2ND FG 0.00 NA 0
3032182 02-12-2003 WD 247 LLC WILLOWBROOK DEVELOPMENT LLC 300.00 02-06-2003 3,000,000
3088749 07-29-2003 WD WILLOWBROOK DEVELOPMENT LLC JOURNEY HOMES LLC 166.75 07-24-2003 1,667,500
3138145 12-22-2003 QCN JOURNEY HOMES LLC J & J CONSTRUCTION OF NO CO LLC 0.00 12-19-2003 0
3158141 03-02-2004 WD J & J CONSTRUCTION OF NO CO LLC ADLER PAM 18.48 02-26-2004 184,800



Account Parcel Account Type Tax Year Buildings Actual Value Local Govt Assessed Value School Assessed Value
R2308703 120703101104 Residential 2026 1 437,652 27,360 30,860

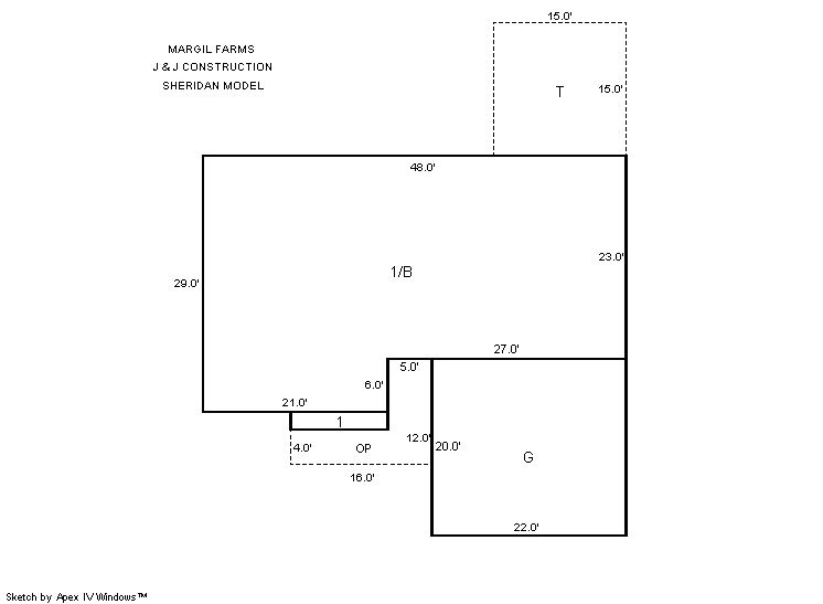
Building 1

AccountNo Building ID Occupancy
R2308703 1 Single Family Residential


ID Type NBHD Occupancy % Complete Bedrooms Baths
1 Residential 3M5052 Single Family Residential 100 3 2.00


ID Exterior Roof Cover Interior HVAC Perimeter Units Unit Type Make
1 Frame Hardboard Composition Shingle Drywall Central Air to Air 0 0 NA NA


ID Square Ft Condo SF Total Basement SF Finished Basement SF Garage SF Carport SF Balcony SF Porch SF
1 1,252 0 1,230 0 440 0 0 225


Built As Details for Building 1
ID Built As Square Ft Year Built Stories Length Width
1.00 Ranch 1 Story 1,252 2004 1 0 0


Additional Details for Building 1
ID Detail Type Description Units
1 Basement Total Basement SF 1230.00
1 Fixture Full Bath 2.00
1 Garage Attached 440.00
1 Porch Open Slab 225.00
1 Porch Slab Roof Ceil 104.00
1 Rough In Rough In 1.00





Account Parcel Account Type Tax Year Buildings Actual Value Local Govt Assessed Value School Assessed Value
R2308703 120703101104 Residential 2026 1 437,652 27,360 30,860

Type Code Description Actual Value Local Govt Assessed Value School Assessed Value Acres Land SqFt
Improvement 1212 SINGLE FAMILY RESIDENTIAL IMPROVEMENTS 299,652 18,730 21,130 0.000 0
Land 1112 SINGLE FAMILY RESIDENTIAL-LAND 138,000 8,630 9,730 0.164 7,124
Totals - - 437,652 27,360 30,860 0.164 7,124


Account Parcel Account Type Tax Year Buildings Actual Value Local Govt Assessed Value School Assessed Value
R2308703 120703101104 Residential 2026 1 437,652 27,360 30,860

Tax Area District ID District Name Local Govt
Mill Levy
School
Mill Levy
Estimated
Taxes
1361 1050 HIGH PLAINS LIBRARY 3.044 0.000 $83.28
1361 0306 LITTLE THOMPSON WATER (LTW) 0.000 0.000 $0.00
1361 0420 MEAD TOWN 11.522 0.000 $315.24
1361 0512 MOUNTAIN VIEW FIRE PROTECTION DISTRICT 16.342 0.000 $447.12
1361 0301 NORTHERN COLORADO WATER (NCW) 1.000 0.000 $27.36
1361 0213 SCHOOL DIST RE1J-LONGMONT 0.000 57.717 $1,781.15
1361 0303 ST VRAIN LEFT HAND WATER (SVW) 1.406 0.000 $38.47
1361 0100 WELD COUNTY 15.956 0.000 $436.56
Total - - 49.27 57.717 $3,129.17


The estimate of tax is based on the prior year mill levy and the 2025 projected assessment rates. Mill levies and tax estimates will be updated yearly on December 22nd for the current year. Additional information can be found at https://assessor.weld.gov










Select Reports to Print: