Account: R2313286

April 5, 2026

Account Parcel Account Type Tax Year Buildings Actual Value Local Govt Assessed Value School Assessed Value
R2313286 095912412008 Residential 2026 1 378,335 23,650 26,670

Legal
GR RH9-15 L15 BLK9 ROLLING HILLS

Subdivision Block Lot Land Economic Area
ROLLING HILLS 9 15 EAST OF 35TH AVE AND SOUTH OF 16TH ST

Property Address Property City Section Township Range
1847 24TH AVENUE CT GREELEY 12 05 66




Account Parcel Account Type Tax Year Buildings Actual Value Local Govt Assessed Value School Assessed Value
R2313286 095912412008 Residential 2026 1 378,335 23,650 26,670

Account Owner Name Address
R2313286 BURSON KAILA M 1847 24TH AVENUE CT GREELEY, CO 806346029
R2313286 BURSON JAMES PAUL


Account Parcel Account Type Tax Year Buildings Actual Value Local Govt Assessed Value School Assessed Value
R2313286 095912412008 Residential 2026 1 378,335 23,650 26,670

Reception Rec Date Type Grantor Grantee Doc Fee Sale Date Sale Price
01594806 08-02-1972 WDN 0.00 01-01-1900 0
1502980 NA SUB SUBDIVISION ROLLING HILLS AMD PLAT 0.00 NA 0
2999449 10-25-2002 DTHC FADNER WILLARD L FADNER ALICE J 0.00 05-16-2002 0
3393852 06-06-2006 WD FADNER ALICE J CAMPBELL ERIC E & 15.90 05-31-2006 159,000
3736391 12-03-2010 QCN CAMPBELL ERIC E CAMPBELL ERIC E 0.00 11-24-2010 0
3887664 11-09-2012 WDE CAMPBELL ERIC E O REILLY RICHARD J D 16.40 11-09-2012 164,000
4560031 01-21-2020 SWD OREILLY SARAH M; OREILLY RICHARD J D SIGNORELLO MARCUS ANTHONY 30.30 01-17-2020 303,000
4858540 09-30-2022 WD SIGNORELLO MARCUS ANTHONY BURSON KAILA M 36.98 09-28-2022 369,800
4861614 10-17-2022 QCN BURSON KAILA M BURSON KAILA M; BURSON JAMES PAUL 0.00 09-28-2022 0



Account Parcel Account Type Tax Year Buildings Actual Value Local Govt Assessed Value School Assessed Value
R2313286 095912412008 Residential 2026 1 378,335 23,650 26,670

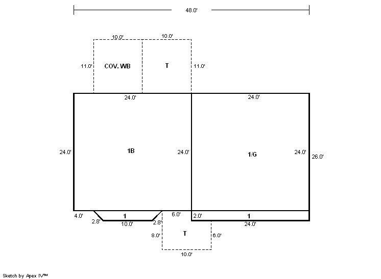
Building 1

AccountNo Building ID Occupancy
R2313286 1 Single Family Residential


ID Type NBHD Occupancy % Complete Bedrooms Baths
1 Residential 6G2031 Single Family Residential 100 4 2.00


ID Exterior Roof Cover Interior HVAC Perimeter Units Unit Type Make
1 Frame Hardboard Composition Shingle Drywall Central Air to Air 0 0 NA NA


ID Square Ft Condo SF Total Basement SF Finished Basement SF Garage SF Carport SF Balcony SF Porch SF
1 1,224 0 576 576 576 0 110 182


Built As Details for Building 1
ID Built As Square Ft Year Built Stories Length Width
1.00 Bi Level 1,224 1966 1 0 0


Additional Details for Building 1
ID Detail Type Description Units
1 Add On Fireplace Wood 1.00
1 Balcony Cover Wood Balc 110.00
1 Basement Finished 576.00
1 Basement Outside Entrance 1.00
1 Basement Total Basement SF 576.00
1 Fixture Full Bath 1.00
1 Fixture Half Bath 1.00
1 Garage Built In 576.00
1 Porch Open Slab 182.00





Account Parcel Account Type Tax Year Buildings Actual Value Local Govt Assessed Value School Assessed Value
R2313286 095912412008 Residential 2026 1 378,335 23,650 26,670

Type Code Description Actual Value Local Govt Assessed Value School Assessed Value Acres Land SqFt
Improvement 1212 SINGLE FAMILY RESIDENTIAL IMPROVEMENTS 318,335 19,900 22,440 0.000 0
Land 1112 SINGLE FAMILY RESIDENTIAL-LAND 60,000 3,750 4,230 0.220 9,567
Totals - - 378,335 23,650 26,670 0.220 9,567


Account Parcel Account Type Tax Year Buildings Actual Value Local Govt Assessed Value School Assessed Value
R2313286 095912412008 Residential 2026 1 378,335 23,650 26,670

Tax Area District ID District Name Local Govt
Mill Levy
School
Mill Levy
Estimated
Taxes
0600 0700 AIMS JUNIOR COLLEGE 6.313 0.000 $149.30
0600 0411 GREELEY CITY 11.274 0.000 $266.63
0600 1050 HIGH PLAINS LIBRARY 3.044 0.000 $71.99
0600 0301 NORTHERN COLORADO WATER (NCW) 1.000 0.000 $23.65
0600 0206 SCHOOL DIST 6-GREELEY 0.000 47.615 $1,269.89
0600 0100 WELD COUNTY 15.956 0.000 $377.36
Total - - 37.587 47.615 $2,158.82


The estimate of tax is based on the prior year mill levy and the 2025 projected assessment rates. Mill levies and tax estimates will be updated yearly on December 22nd for the current year. Additional information can be found at https://assessor.weld.gov










Select Reports to Print: