Account: R2332686

April 5, 2026

Account Parcel Account Type Tax Year Buildings Actual Value Local Govt Assessed Value School Assessed Value
R2332686 095912420011 Residential 2026 1 466,873 29,180 32,920

Legal
GR CW13-11 L11 BLK13 COTTONWOOD VILLAGE

Subdivision Block Lot Land Economic Area
COTTONWOOD VILLAGE 13 11 COTTONWOOD VILLAGE

Property Address Property City Section Township Range
1959 26TH AVENUE CT GREELEY 12 05 66




Account Parcel Account Type Tax Year Buildings Actual Value Local Govt Assessed Value School Assessed Value
R2332686 095912420011 Residential 2026 1 466,873 29,180 32,920

Account Owner Name Address
R2332686 ALLES JAMES G 1959 26TH AVENUE CT GREELEY, CO 806344933
R2332686 ALLES PHYLLIS J


Account Parcel Account Type Tax Year Buildings Actual Value Local Govt Assessed Value School Assessed Value
R2332686 095912420011 Residential 2026 1 466,873 29,180 32,920

Reception Rec Date Type Grantor Grantee Doc Fee Sale Date Sale Price
01648625 11-15-1974 WDN 0.00 01-01-1900 0
1343506 NA SUB SUBDIVISION COTTONWOOD VILLAGE 0.00 NA 0



Account Parcel Account Type Tax Year Buildings Actual Value Local Govt Assessed Value School Assessed Value
R2332686 095912420011 Residential 2026 1 466,873 29,180 32,920

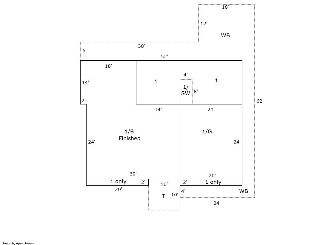
Building 1

AccountNo Building ID Occupancy
R2332686 1 Single Family Residential


ID Type NBHD Occupancy % Complete Bedrooms Baths
1 Residential 6G3031 Single Family Residential 100 3 3.00


ID Exterior Roof Cover Interior HVAC Perimeter Units Unit Type Make
1 Frame Hardboard Composition Shingle Drywall Central Air to Air 0 0 NA NA


ID Square Ft Condo SF Total Basement SF Finished Basement SF Garage SF Carport SF Balcony SF Porch SF
1 2,008 0 972 972 480 0 808 32


Built As Details for Building 1
ID Built As Square Ft Year Built Stories Length Width
1.00 Bi Level 2,008 1968 1 0 0


Additional Details for Building 1
ID Detail Type Description Units
1 Add On Fireplace Gas 1.00
1 Add On Fireplace Wood 1.00
1 Balcony Wood Wood Fin 808.00
1 Basement Finished 972.00
1 Basement Outside Entrance 1.00
1 Basement Total Basement SF 972.00
1 Fixture Full Bath 3.00
1 Garage Built In 480.00
1 Porch Open Slab 100.00
1 Porch Slab w/Steps 32.00





Account Parcel Account Type Tax Year Buildings Actual Value Local Govt Assessed Value School Assessed Value
R2332686 095912420011 Residential 2026 1 466,873 29,180 32,920

Type Code Description Actual Value Local Govt Assessed Value School Assessed Value Acres Land SqFt
Improvement 1212 SINGLE FAMILY RESIDENTIAL IMPROVEMENTS 388,873 24,300 27,420 0.000 0
Land 1112 SINGLE FAMILY RESIDENTIAL-LAND 78,000 4,880 5,500 0.365 15,895
Totals - - 466,873 29,180 32,920 0.365 15,895


Account Parcel Account Type Tax Year Buildings Actual Value Local Govt Assessed Value School Assessed Value
R2332686 095912420011 Residential 2026 1 466,873 29,180 32,920

Tax Area District ID District Name Local Govt
Mill Levy
School
Mill Levy
Estimated
Taxes
0600 0700 AIMS JUNIOR COLLEGE 6.313 0.000 $184.21
0600 0411 GREELEY CITY 11.274 0.000 $328.98
0600 1050 HIGH PLAINS LIBRARY 3.044 0.000 $88.82
0600 0301 NORTHERN COLORADO WATER (NCW) 1.000 0.000 $29.18
0600 0206 SCHOOL DIST 6-GREELEY 0.000 47.615 $1,567.49
0600 0100 WELD COUNTY 15.956 0.000 $465.60
Total - - 37.587 47.615 $2,664.27


The estimate of tax is based on the prior year mill levy and the 2025 projected assessment rates. Mill levies and tax estimates will be updated yearly on December 22nd for the current year. Additional information can be found at https://assessor.weld.gov










Select Reports to Print: