Account: R2334203

April 5, 2026

Account Parcel Account Type Tax Year Buildings Actual Value Local Govt Assessed Value School Assessed Value
R2334203 131301404016 Residential 2026 1 620,729 38,800 43,760

Legal
FIR 1MS L16 BLK4 MOUNTAIN SHADOWS FG #1

Subdivision Block Lot Land Economic Area
MOUNTAIN SHADOWS SUB FG#1 4 16 MOUNTAIN SHADOWS

Property Address Property City Section Township Range
11318 COAL MINE ST FIRESTONE 01 02 68




Account Parcel Account Type Tax Year Buildings Actual Value Local Govt Assessed Value School Assessed Value
R2334203 131301404016 Residential 2026 1 620,729 38,800 43,760

Account Owner Name Address
R2334203 BREWER RALPH 11318 COAL MINE ST FIRESTONE, CO 805045780
R2334203 MUNCH GEORGANNA


Account Parcel Account Type Tax Year Buildings Actual Value Local Govt Assessed Value School Assessed Value
R2334203 131301404016 Residential 2026 1 620,729 38,800 43,760

Reception Rec Date Type Grantor Grantee Doc Fee Sale Date Sale Price
3037982 NA SUB SUBDIVISION MOUNTAIN SHADOWS FG #1 0.00 NA 0
3308370 08-01-2005 SWD NEUMANN HOMES COLORADO LLC STEFFENSON GARY G 25.00 07-29-2005 250,000
3692895 05-13-2010 QCN STEFFENSON GARY G SZYMANSKI JUDI M 0.00 04-30-2010 0
4416782 07-20-2018 WD STEFFENSON GARY G; SZYMANSKI JUDI M VAZZANO MICHAEL J; VAZZANO DEBORAH A 50.95 07-18-2018 509,500
4784357 12-13-2021 WD VAZZANO MICHAEL J; VAZZANO DEBORAH A BREWER RALPH; MUNCH GEORGANNA 62.26 12-08-2021 622,600



Account Parcel Account Type Tax Year Buildings Actual Value Local Govt Assessed Value School Assessed Value
R2334203 131301404016 Residential 2026 1 620,729 38,800 43,760

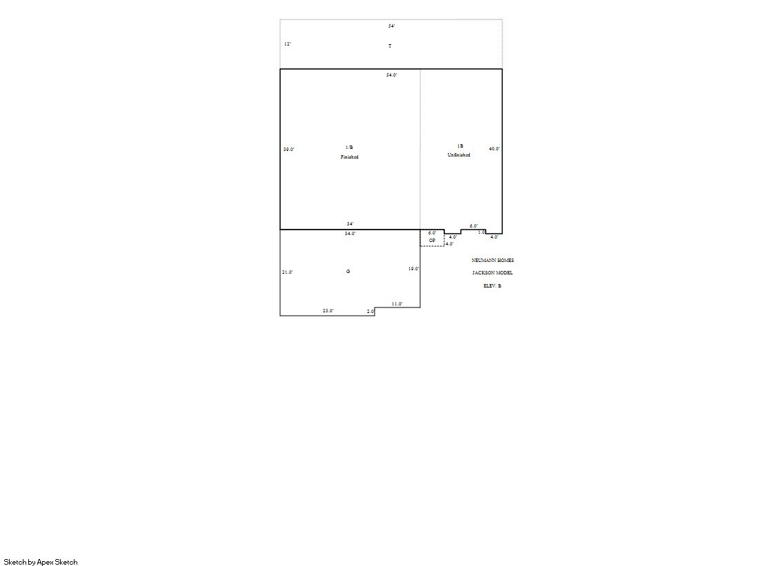
Building 1

AccountNo Building ID Occupancy
R2334203 1 Single Family Residential


ID Type NBHD Occupancy % Complete Bedrooms Baths
1 Residential 3F0037 Single Family Residential 100 3 3.00


ID Exterior Roof Cover Interior HVAC Perimeter Units Unit Type Make
1 Frame Hardboard Composition Shingle Drywall Central Air to Air 190 0 NA NA


ID Square Ft Condo SF Total Basement SF Finished Basement SF Garage SF Carport SF Balcony SF Porch SF
1 2,114 0 2,114 1,326 692 0 0 648


Built As Details for Building 1
ID Built As Square Ft Year Built Stories Length Width
1.00 Ranch 1 Story 2,114 2004 1 0 0


Additional Details for Building 1
ID Detail Type Description Units
1 Basement Finished 1326.00
1 Basement Total Basement SF 2114.00
1 Fixture Full Bath 2.00
1 Garage Attached 692.00
1 Porch Open Slab 648.00
1 Porch Slab Roof Ceil 24.00





Account Parcel Account Type Tax Year Buildings Actual Value Local Govt Assessed Value School Assessed Value
R2334203 131301404016 Residential 2026 1 620,729 38,800 43,760

Type Code Description Actual Value Local Govt Assessed Value School Assessed Value Acres Land SqFt
Improvement 1212 SINGLE FAMILY RESIDENTIAL IMPROVEMENTS 502,729 31,420 35,440 0.000 0
Land 1112 SINGLE FAMILY RESIDENTIAL-LAND 118,000 7,380 8,320 0.398 17,344
Totals - - 620,729 38,800 43,760 0.398 17,344


Account Parcel Account Type Tax Year Buildings Actual Value Local Govt Assessed Value School Assessed Value
R2334203 131301404016 Residential 2026 1 620,729 38,800 43,760

Tax Area District ID District Name Local Govt
Mill Levy
School
Mill Levy
Estimated
Taxes
2084 0900 CARBON VALLEY REC 4.427 0.000 $171.77
2084 0305 CENTRAL WELD COUNTY WATER (CWC) 0.000 0.000 $0.00
2084 0406 FIRESTONE TOWN 6.805 0.000 $264.03
2084 0507 FREDERICK-FIRESTONE FIRE 15.559 0.000 $603.69
2084 1050 HIGH PLAINS LIBRARY 3.044 0.000 $118.11
2084 0301 NORTHERN COLORADO WATER (NCW) 1.000 0.000 $38.80
2084 0213 SCHOOL DIST RE1J-LONGMONT 0.000 57.717 $2,525.70
2084 0620 ST VRAIN SANITATION 0.316 0.000 $12.26
2084 0100 WELD COUNTY 15.956 0.000 $619.09
Total - - 47.107 57.717 $4,353.45


The estimate of tax is based on the prior year mill levy and the 2025 projected assessment rates. Mill levies and tax estimates will be updated yearly on December 22nd for the current year. Additional information can be found at https://assessor.weld.gov










Select Reports to Print: