Account: R2337286
April 4, 2026
| Account | Parcel | Account Type | Tax Year | Buildings | Actual Value | Local Govt Assessed Value | School Assessed Value |
|---|---|---|---|---|---|---|---|
| R2337286 | 095912425011 | Residential | 2026 | 1 | 292,875 | 18,300 | 20,650 |
| Legal |
|---|
| GR CWS-R11 UNIT R-11 COTTONWOOD PARK SOUTH CONDO PT NE4SE4 12 5 66 |
| Subdivision | Block | Lot | Land Economic Area |
|---|---|---|---|
| COTTONWOOD PARK SOUTH CONDO | R-11 |
| Property Address | Property City | Section | Township | Range |
|---|---|---|---|---|
| 2409 W 18TH ST 11 | GREELEY | 12 | 05 | 66 |
| Account | Parcel | Account Type | Tax Year | Buildings | Actual Value | Local Govt Assessed Value | School Assessed Value |
|---|---|---|---|---|---|---|---|
| R2337286 | 095912425011 | Residential | 2026 | 1 | 292,875 | 18,300 | 20,650 |
| Account | Owner Name | Address |
|---|---|---|
| R2337286 | BAR4 PROPERTIES LLC | 1573 PLAINS DR EATON, CO 806158104 |
| Account | Parcel | Account Type | Tax Year | Buildings | Actual Value | Local Govt Assessed Value | School Assessed Value |
|---|---|---|---|---|---|---|---|
| R2337286 | 095912425011 | Residential | 2026 | 1 | 292,875 | 18,300 | 20,650 |
| Reception | Rec Date | Type | Grantor | Grantee | Doc Fee | Sale Date | Sale Price |
|---|---|---|---|---|---|---|---|
| 01771743 | 11-03-1978 | WDN | 0.00 | 01-01-1900 | 0 | ||
| 02238391 | 01-14-1991 | QCN | 0.00 | 12-03-1990 | 0 | ||
| 02314997 | 12-17-1992 | QCN | 0.00 | 12-16-1992 | 0 | ||
| 02314998 | 12-17-1992 | QCN | 0.00 | 12-16-1992 | 0 | ||
| 02316748 | 01-04-1993 | QCN | 0.00 | 01-04-1993 | 0 | ||
| 02370000 | 01-20-1994 | QCN | 0.00 | 01-14-1994 | 0 | ||
| 02423348 | 01-18-1995 | QCN | 0.00 | 01-13-1995 | 0 | ||
| 1771343 | NA | SUB | SUBDIVISION | COTTONWOOD PARK SOUTH CONDO | 0.00 | NA | 0 |
| 2472452 | 01-19-1996 | QCN | LEE ELMER J TRUST 5/9 INT & | LEE ELMER J TRUST 4/9 INT & | 0.00 | 01-19-1996 | 0 |
| 2530130 | 01-21-1997 | QCN | LEE ELMER J TRUST 4/9 INT & | LEE ELMER J TRUST 3/9 INT & | 0.00 | 01-21-1997 | 0 |
| 2588701 | 01-09-1998 | QCN | LEE ELMER J TRUST 3/9 INT & | LEE ELMER J TRUST 2/9 INT & | 0.00 | 01-07-1998 | 0 |
| 2667763 | 01-19-1999 | QCN | LEE ELMER J TRUST 2/9 INT & | LEE ELMER J TRUST 1/9 INT & | 0.00 | 01-13-1999 | 0 |
| 2742229 | 01-04-2000 | QCN | LEE ELMER J TRUST 1/9 INT & | KATZEN CONSTANCE J | 0.00 | 01-03-2000 | 0 |
| 3964479 | 09-18-2013 | WD | KATZEN CONSTANCE JEAN TRUST | BARBER DAVID M | 10.00 | 09-17-2013 | 100,000 |
| 4053872 | 10-14-2014 | QCN | BARBER DAVID M; BARBER MARILYN K | BAR4 PROPERTIES LLC | 0.00 | 10-14-2014 | 0 |
*If the hyperlink for the reception number does not work, try a manual search in the Clerk and Recorder records. Use the Grantor or Grantee in your search.
| Account | Parcel | Account Type | Tax Year | Buildings | Actual Value | Local Govt Assessed Value | School Assessed Value |
|---|---|---|---|---|---|---|---|
| R2337286 | 095912425011 | Residential | 2026 | 1 | 292,875 | 18,300 | 20,650 |
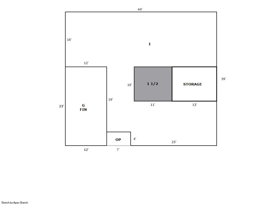
Building 1
| AccountNo | Building ID | Occupancy |
|---|---|---|
| R2337286 | 1 | Condominium unit |
| ID | Type | NBHD | Occupancy | % Complete | Bedrooms | Baths |
|---|---|---|---|---|---|---|
| 1 | Condo | 6G2072 | Condominium unit | 100 | 2 | 2.00 |
| ID | Exterior | Roof Cover | Interior | HVAC | Perimeter | Units | Unit Type | Make |
|---|---|---|---|---|---|---|---|---|
| 1 | Frame Masonry Veneer | Composition Shingle | Drywall | Forced Air | 208 | 0 | Inside | NA |
| ID | Square Ft | Condo SF | Total Basement SF | Finished Basement SF | Garage SF | Carport SF | Balcony SF | Porch SF |
|---|---|---|---|---|---|---|---|---|
| 1 | 1,522 | 0 | 0 | 0 | 276 | 0 | 0 | 28 |
| ID | Built As | Square Ft | Year Built | Stories | Length | Width |
|---|---|---|---|---|---|---|
| 1.00 | Condo <= 3 Stories | 1,522 | 1979 | 2 | 0 | 0 |
| ID | Detail Type | Description | Units |
|---|---|---|---|
| 1 | Add On | Fireplace Wood | 1.00 |
| 1 | Fixture | Full Bath | 2.00 |
| 1 | Garage | Attached | 276.00 |
| 1 | Porch | Slab Roof Ceil | 28.00 |
| Account | Parcel | Account Type | Tax Year | Buildings | Actual Value | Local Govt Assessed Value | School Assessed Value |
|---|---|---|---|---|---|---|---|
| R2337286 | 095912425011 | Residential | 2026 | 1 | 292,875 | 18,300 | 20,650 |
| Type | Code | Description | Actual Value | Local Govt Assessed Value | School Assessed Value | Acres | Land SqFt |
|---|---|---|---|---|---|---|---|
| Improvement | 1230 | CONDOS | 292,875 | 18,300 | 20,650 | 0.000 | 0 |
| Totals | - | - | 292,875 | 18,300 | 20,650 | 0.000 | 0 |
Comparable sales for your Residential or Commercial property may be found using our SALES SEARCH TOOL
Values are updated annually on May 1st for Real Property and June 15th for Personal Property and Oil and Gas.
| Account | Parcel | Account Type | Tax Year | Buildings | Actual Value | Local Govt Assessed Value | School Assessed Value |
|---|---|---|---|---|---|---|---|
| R2337286 | 095912425011 | Residential | 2026 | 1 | 292,875 | 18,300 | 20,650 |
| Tax Area | District ID | District Name | Local Govt Mill Levy |
School Mill Levy |
Estimated Taxes |
|---|---|---|---|---|---|
| 0600 | 0700 | AIMS JUNIOR COLLEGE | 6.313 | 0.000 | $115.53 |
| 0600 | 0411 | GREELEY CITY | 11.274 | 0.000 | $206.31 |
| 0600 | 1050 | HIGH PLAINS LIBRARY | 3.044 | 0.000 | $55.71 |
| 0600 | 0301 | NORTHERN COLORADO WATER (NCW) | 1.000 | 0.000 | $18.30 |
| 0600 | 0206 | SCHOOL DIST 6-GREELEY | 0.000 | 47.615 | $983.25 |
| 0600 | 0100 | WELD COUNTY | 15.956 | 0.000 | $291.99 |
| Total | - | - | 37.587 | 47.615 | $1,671.09 |
The estimate of tax is based on the prior year mill levy and the 2025 projected assessment rates. Mill levies and tax estimates will be updated yearly on December 22nd for the current year. Additional information can be found at https://assessor.weld.gov


