Account: R2361886
April 1, 2026
| Account | Parcel | Account Type | Tax Year | Buildings | Actual Value | Local Govt Assessed Value | School Assessed Value |
|---|---|---|---|---|---|---|---|
| R2361886 | 095913116010 | Residential | 2026 | 1 | 390,554 | 24,410 | 27,530 |
| Legal |
|---|
| GR 3CP7-10 L10 BLK7 2ND REPLAT 3RD ADD CASCADE PARK |
| Subdivision | Block | Lot | Land Economic Area |
|---|---|---|---|
| CASCADE PARK 3RD ADD 2ND RPLT | 7 | 10 | CASCADE PARK AND SUMMIT VIEW |
| Property Address | Property City | Section | Township | Range |
|---|---|---|---|---|
| 2057 27TH AVE | GREELEY | 13 | 05 | 66 |
| Account | Parcel | Account Type | Tax Year | Buildings | Actual Value | Local Govt Assessed Value | School Assessed Value |
|---|---|---|---|---|---|---|---|
| R2361886 | 095913116010 | Residential | 2026 | 1 | 390,554 | 24,410 | 27,530 |
| Account | Owner Name | Address |
|---|---|---|
| R2361886 | ADAMSON BRANDON | 2057 27TH AVE GREELEY, CO 806346620 |
| R2361886 | ADAMSON HANNAH |
| Account | Parcel | Account Type | Tax Year | Buildings | Actual Value | Local Govt Assessed Value | School Assessed Value |
|---|---|---|---|---|---|---|---|
| R2361886 | 095913116010 | Residential | 2026 | 1 | 390,554 | 24,410 | 27,530 |
| Reception | Rec Date | Type | Grantor | Grantee | Doc Fee | Sale Date | Sale Price |
|---|---|---|---|---|---|---|---|
| 01961140 | 03-30-1984 | WDN | 0.00 | 01-01-1900 | 0 | ||
| 02106659 | 07-10-1987 | QCN | 0.00 | 07-10-1987 | 0 | ||
| 02157588 | 10-04-1988 | QCN | 0.00 | 07-10-1987 | 0 | ||
| 1575730 | NA | SUB | SUBDIVISION | CASCADE PARK 3RD ADD 2ND RPLT | 0.00 | NA | 0 |
| 2318361 | 01-14-1993 | WD | KAPPAN DONNA L | CURRY BONNIE J | 11.40 | 01-14-1993 | 114,000 |
| 2388036 | 05-11-1994 | WD | CURRY BONNIE J | STUART TODD M & AMY P | 11.40 | 04-28-1994 | 114,000 |
| 2572008 | 10-01-1997 | WD | STUART TODD M & AMY P | DEMELLO KAREN | 13.30 | 09-29-1997 | 133,000 |
| 4350418 | 11-07-2017 | PRD | DEMELLO KAREN | LEMUS CLARISSA; VILLAGRANA ULISES | 22.70 | 11-03-2017 | 227,000 |
| 5077719 | 01-15-2026 | WD | LEMUS CLARISSA; VILLAGRANA ULISES | ADAMSON BRANDON; ADAMSON HANNAH | 42.00 | 01-15-2026 | 420,000 |
| X0006199 | 03-30-1984 | CON | KAPPAN DONNA L | 6.10 | 03-30-1984 | 61,000 |
*If the hyperlink for the reception number does not work, try a manual search in the Clerk and Recorder records. Use the Grantor or Grantee in your search.
| Account | Parcel | Account Type | Tax Year | Buildings | Actual Value | Local Govt Assessed Value | School Assessed Value |
|---|---|---|---|---|---|---|---|
| R2361886 | 095913116010 | Residential | 2026 | 1 | 390,554 | 24,410 | 27,530 |
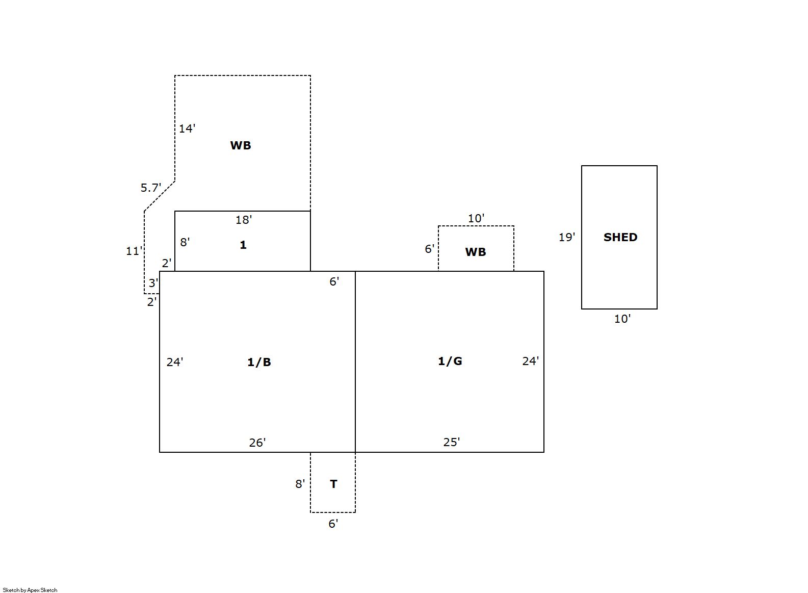
Building 1
| AccountNo | Building ID | Occupancy |
|---|---|---|
| R2361886 | 1 | Single Family Residential |
| ID | Type | NBHD | Occupancy | % Complete | Bedrooms | Baths |
|---|---|---|---|---|---|---|
| 1 | Residential | 6G2031 | Single Family Residential | 100 | 3 | 2.00 |
| ID | Exterior | Roof Cover | Interior | HVAC | Perimeter | Units | Unit Type | Make |
|---|---|---|---|---|---|---|---|---|
| 1 | Frame Hardboard | Wood Shake | Drywall | Hot Water Baseboard | 166 | 0 | NA | NA |
| ID | Square Ft | Condo SF | Total Basement SF | Finished Basement SF | Garage SF | Carport SF | Balcony SF | Porch SF |
|---|---|---|---|---|---|---|---|---|
| 1 | 1,368 | 0 | 624 | 624 | 600 | 0 | 430 | 48 |
| ID | Built As | Square Ft | Year Built | Stories | Length | Width |
|---|---|---|---|---|---|---|
| 1.00 | Bi Level | 1,368 | 1972 | 1 | 0 | 0 |
| ID | Detail Type | Description | Units |
|---|---|---|---|
| 1 | Add On | Fireplace Wood | 1.00 |
| 1 | Balcony | Wood Wood Fin | 430.00 |
| 1 | Basement | Finished | 624.00 |
| 1 | Basement | Outside Entrance | 1.00 |
| 1 | Basement | Total Basement SF | 624.00 |
| 1 | Fixture | Full Bath | 2.00 |
| 1 | Garage | Attached | 600.00 |
| 1 | Porch | Open Slab | 48.00 |
| 1 | Storage | Wood | 190.00 |
| Account | Parcel | Account Type | Tax Year | Buildings | Actual Value | Local Govt Assessed Value | School Assessed Value |
|---|---|---|---|---|---|---|---|
| R2361886 | 095913116010 | Residential | 2026 | 1 | 390,554 | 24,410 | 27,530 |
| Type | Code | Description | Actual Value | Local Govt Assessed Value | School Assessed Value | Acres | Land SqFt |
|---|---|---|---|---|---|---|---|
| Improvement | 1212 | SINGLE FAMILY RESIDENTIAL IMPROVEMENTS | 325,554 | 20,350 | 22,950 | 0.000 | 0 |
| Land | 1112 | SINGLE FAMILY RESIDENTIAL-LAND | 65,000 | 4,060 | 4,580 | 0.233 | 10,133 |
| Totals | - | - | 390,554 | 24,410 | 27,530 | 0.233 | 10,133 |
Comparable sales for your Residential or Commercial property may be found using our SALES SEARCH TOOL
Values are updated annually on May 1st for Real Property and June 15th for Personal Property and Oil and Gas.
| Account | Parcel | Account Type | Tax Year | Buildings | Actual Value | Local Govt Assessed Value | School Assessed Value |
|---|---|---|---|---|---|---|---|
| R2361886 | 095913116010 | Residential | 2026 | 1 | 390,554 | 24,410 | 27,530 |
| Tax Area | District ID | District Name | Local Govt Mill Levy |
School Mill Levy |
Estimated Taxes |
|---|---|---|---|---|---|
| 0600 | 0700 | AIMS JUNIOR COLLEGE | 6.313 | 0.000 | $154.10 |
| 0600 | 0411 | GREELEY CITY | 11.274 | 0.000 | $275.20 |
| 0600 | 1050 | HIGH PLAINS LIBRARY | 3.044 | 0.000 | $74.30 |
| 0600 | 0301 | NORTHERN COLORADO WATER (NCW) | 1.000 | 0.000 | $24.41 |
| 0600 | 0206 | SCHOOL DIST 6-GREELEY | 0.000 | 47.615 | $1,310.84 |
| 0600 | 0100 | WELD COUNTY | 15.956 | 0.000 | $389.49 |
| Total | - | - | 37.587 | 47.615 | $2,228.34 |
The estimate of tax is based on the prior year mill levy and the 2025 projected assessment rates. Mill levies and tax estimates will be updated yearly on December 22nd for the current year. Additional information can be found at https://assessor.weld.gov


