Account: R2369186

April 5, 2026

Account Parcel Account Type Tax Year Buildings Actual Value Local Govt Assessed Value School Assessed Value
R2369186 095913201002 Residential 2026 2 1,267,200 79,200 89,340

Legal
GR CW-2 L2 CASCADE WEST

Subdivision Block Lot Land Economic Area
CASCADE WEST SUB 2 APARTMENT AT SANBORN

Property Address Property City Section Township Range
2010 28TH AVE GREELEY 13 05 66




Account Parcel Account Type Tax Year Buildings Actual Value Local Govt Assessed Value School Assessed Value
R2369186 095913201002 Residential 2026 2 1,267,200 79,200 89,340

Account Owner Name Address
R2369186 ADOLPH DAVID L 720 40TH AVE GREELEY, CO 806341503


Account Parcel Account Type Tax Year Buildings Actual Value Local Govt Assessed Value School Assessed Value
R2369186 095913201002 Residential 2026 2 1,267,200 79,200 89,340

Reception Rec Date Type Grantor Grantee Doc Fee Sale Date Sale Price
1551514 NA SUB SUBDIVISION CASCADE WEST 0.00 NA 0
2749537 02-14-2000 QCN ERWIN WILLIAM R JR & LILLIE ERWIN INVESTMENTS LLC 0.00 02-03-2000 0
2749540 02-14-2000 QCN ERWIN WILLIAM R JR & LILLIE ERWIN INVESTMENTS LLC 0.00 02-10-2000 0
2865142 07-12-2001 WD ERWIN INVESTMENTS LLC ADOLPH DAVID L & CAROL A 195.00 06-29-2001 1,950,000
4484915 04-29-2019 DTHC ADOLPH CAROL A ADOLPH CAROL A 0.00 04-23-2019 0



Account Parcel Account Type Tax Year Buildings Actual Value Local Govt Assessed Value School Assessed Value
R2369186 095913201002 Residential 2026 2 1,267,200 79,200 89,340

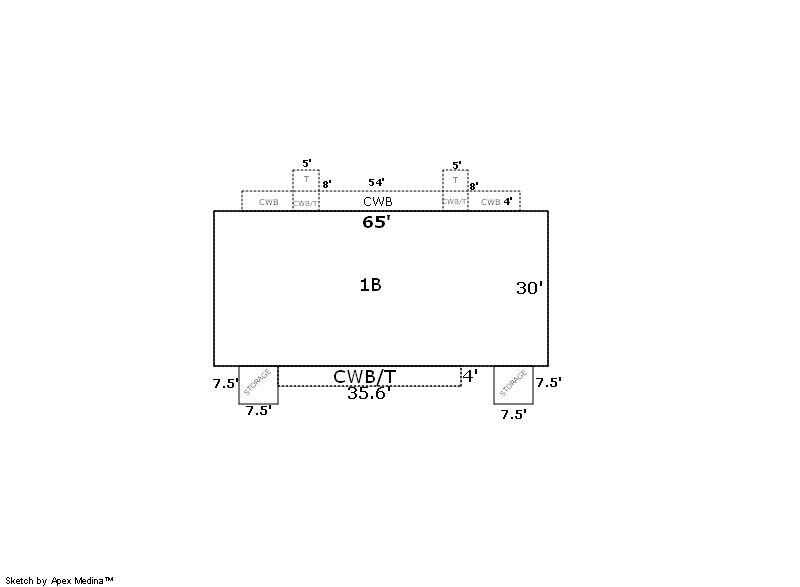
Building 1

AccountNo Building ID Occupancy
R2369186 1 Apartment w/4-8 Units


ID Type NBHD Occupancy % Complete Bedrooms Baths
1 Multiple Unit 6G2031 Apartment w/4-8 Units 100 0 4.00


ID Exterior Roof Cover Interior HVAC Perimeter Units Unit Type Make
1 Frame Shingle Built Up Rock Drywall Forced Air 0 4 NA NA


ID Square Ft Condo SF Total Basement SF Finished Basement SF Garage SF Carport SF Balcony SF Porch SF
1 1,950 0 1,950 1,950 0 0 358 222


Built As Details for Building 1
ID Built As Square Ft Year Built Stories Length Width
1.00 Apartment <= 3 Stories 1,950 1971 1 0 0


Additional Details for Building 1
ID Detail Type Description Units
1 Add On Asphalt 3500.00
1 Balcony Cover Wood Balc 358.00
1 Basement Finished 1950.00
1 Basement Total Basement SF 1950.00
1 Fixture Full Bath 4.00
1 Porch Open Slab 222.00
1 Stairway Stair Cement Exterior Fin 2.00
1 Stairway Stair Wood Exterior Fin 2.00



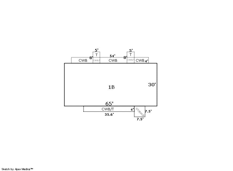
Building 2

AccountNo Building ID Occupancy
R2369186 2 Apartment w/4-8 Units


ID Type NBHD Occupancy % Complete Bedrooms Baths
2 Multiple Unit 6G2031 Apartment w/4-8 Units 100 0 4.00


ID Exterior Roof Cover Interior HVAC Perimeter Units Unit Type Make
2 Frame Shingle Built Up Rock Drywall Forced Air 0 4 NA NA


ID Square Ft Condo SF Total Basement SF Finished Basement SF Garage SF Carport SF Balcony SF Porch SF
2 1,950 0 1,950 1,950 0 0 358 222


Built As Details for Building 2
ID Built As Square Ft Year Built Stories Length Width
2.00 Apartment <= 3 Stories 1,950 1971 1 0 0


Additional Details for Building 2
ID Detail Type Description Units
2 Add On Asphalt 3500.00
2 Balcony Cover Wood Balc 358.00
2 Basement Finished 1950.00
2 Basement Total Basement SF 1950.00
2 Fixture Full Bath 4.00
2 Porch Open Slab 222.00
2 Stairway Stair Cement Exterior Fin 2.00
2 Stairway Stair Wood Exterior Fin 2.00





Account Parcel Account Type Tax Year Buildings Actual Value Local Govt Assessed Value School Assessed Value
R2369186 095913201002 Residential 2026 2 1,267,200 79,200 89,340

Type Code Description Actual Value Local Govt Assessed Value School Assessed Value Acres Land SqFt
Improvement 1220 MULTI-UNITS(4-8)-IMPRVMTS 1,145,474 71,590 80,760 0.000 0
Land 1120 MULTI-UNITS(4-8)-LAND 121,726 7,610 8,580 0.508 22,132
Totals - - 1,267,200 79,200 89,340 0.508 22,132


Account Parcel Account Type Tax Year Buildings Actual Value Local Govt Assessed Value School Assessed Value
R2369186 095913201002 Residential 2026 2 1,267,200 79,200 89,340

Tax Area District ID District Name Local Govt
Mill Levy
School
Mill Levy
Estimated
Taxes
0600 0700 AIMS JUNIOR COLLEGE 6.313 0.000 $499.99
0600 0411 GREELEY CITY 11.274 0.000 $892.90
0600 1050 HIGH PLAINS LIBRARY 3.044 0.000 $241.08
0600 0301 NORTHERN COLORADO WATER (NCW) 1.000 0.000 $79.20
0600 0206 SCHOOL DIST 6-GREELEY 0.000 47.615 $4,253.92
0600 0100 WELD COUNTY 15.956 0.000 $1,263.72
Total - - 37.587 47.615 $7,230.81


The estimate of tax is based on the prior year mill levy and the 2025 projected assessment rates. Mill levies and tax estimates will be updated yearly on December 22nd for the current year. Additional information can be found at https://assessor.weld.gov










Select Reports to Print: