Account: R2374286

April 5, 2026

Account Parcel Account Type Tax Year Buildings Actual Value Local Govt Assessed Value School Assessed Value
R2374286 095913207003 Residential 2026 1 467,724 29,230 32,970

Legal
GR BP-21 L21 BELAIR PARK

Subdivision Block Lot Land Economic Area
BELAIR PARK 21 BELAIR PARK AND LEADBETTER SUB

Property Address Property City Section Township Range
2323 SUNSET LN GREELEY 13 05 66




Account Parcel Account Type Tax Year Buildings Actual Value Local Govt Assessed Value School Assessed Value
R2374286 095913207003 Residential 2026 1 467,724 29,230 32,970

Account Owner Name Address
R2374286 CAMPBELL MELISSA 2323 SUNSET LN GREELEY, CO 806347607
R2374286 CAMPBELL LARRY


Account Parcel Account Type Tax Year Buildings Actual Value Local Govt Assessed Value School Assessed Value
R2374286 095913207003 Residential 2026 1 467,724 29,230 32,970

Reception Rec Date Type Grantor Grantee Doc Fee Sale Date Sale Price
1156461 NA SUB SUBDIVISION BELAIR PARK AM 0.00 NA 0
2070593 09-23-1986 WD MILLER JAMES EARL & ALYCE LUCI FRANTZ DANIEL A 11.20 09-19-1986 112,000
3510672 10-12-2007 BSDN FRANTZ DANIEL A & FRANTZ DANIEL A LIVING TRUST & 0.00 09-06-2007 0
3967156 09-30-2013 WDE FRANTZ DANIEL A LIVING TRUST CAMPBELL MELISSA 26.50 09-27-2013 265,000



Account Parcel Account Type Tax Year Buildings Actual Value Local Govt Assessed Value School Assessed Value
R2374286 095913207003 Residential 2026 1 467,724 29,230 32,970

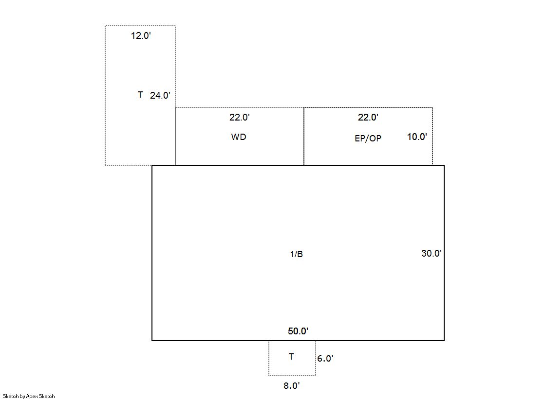
Building 1

AccountNo Building ID Occupancy
R2374286 1 Single Family Residential


ID Type NBHD Occupancy % Complete Bedrooms Baths
1 Residential 6G2031 Single Family Residential 100 4 3.00


ID Exterior Roof Cover Interior HVAC Perimeter Units Unit Type Make
1 Frame Masonry Veneer Composition Shingle Drywall Hot Water Baseboard 0 0 NA NA


ID Square Ft Condo SF Total Basement SF Finished Basement SF Garage SF Carport SF Balcony SF Porch SF
1 1,500 0 1,500 1,500 520 0 0 220


Built As Details for Building 1
ID Built As Square Ft Year Built Stories Length Width
1.00 Ranch 1 Story 1,500 1956 1 0 0


Additional Details for Building 1
ID Detail Type Description Units
1 Add On Fireplace Gas Converted 1.00
1 Add On Fireplace Wood 1.00
1 Basement Finished 1500.00
1 Basement Total Basement SF 1500.00
1 Fixture Full Bath 3.00
1 Garage Detached 520.00
1 Porch Encl Screen 220.00
1 Porch Open Slab 336.00
1 Porch Slab Roof Ceil 220.00
1 Porch Wood Deck 220.00





Account Parcel Account Type Tax Year Buildings Actual Value Local Govt Assessed Value School Assessed Value
R2374286 095913207003 Residential 2026 1 467,724 29,230 32,970

Type Code Description Actual Value Local Govt Assessed Value School Assessed Value Acres Land SqFt
Improvement 1212 SINGLE FAMILY RESIDENTIAL IMPROVEMENTS 398,724 24,920 28,110 0.000 0
Land 1112 SINGLE FAMILY RESIDENTIAL-LAND 69,000 4,310 4,860 0.450 19,600
Totals - - 467,724 29,230 32,970 0.450 19,600


Account Parcel Account Type Tax Year Buildings Actual Value Local Govt Assessed Value School Assessed Value
R2374286 095913207003 Residential 2026 1 467,724 29,230 32,970

Tax Area District ID District Name Local Govt
Mill Levy
School
Mill Levy
Estimated
Taxes
0600 0700 AIMS JUNIOR COLLEGE 6.313 0.000 $184.53
0600 0411 GREELEY CITY 11.274 0.000 $329.54
0600 1050 HIGH PLAINS LIBRARY 3.044 0.000 $88.98
0600 0301 NORTHERN COLORADO WATER (NCW) 1.000 0.000 $29.23
0600 0206 SCHOOL DIST 6-GREELEY 0.000 47.615 $1,569.87
0600 0100 WELD COUNTY 15.956 0.000 $466.39
Total - - 37.587 47.615 $2,668.53


The estimate of tax is based on the prior year mill levy and the 2025 projected assessment rates. Mill levies and tax estimates will be updated yearly on December 22nd for the current year. Additional information can be found at https://assessor.weld.gov










Select Reports to Print: